Version: 8.24.0Navigation ĂĽberspringen
349.000 €
16 Zimmer  â€˘  477 m²  â€˘  350 m² GrundstĂĽck
Immowelt logo

Mehrfamilienhaus zum Kauf
349000 €
732 €/m²
16 Zimmer  â€˘  477 m²  â€˘  350 m² GrundstĂĽck

Gepflegtes Mehrfamilienhaus mit Potenzial

Willkommen in diesem gut gepflegten Mehrfamilienhaus mit Potenzial im Herzen von Döbeln!

Das denkmalgeschützte Objekt aus dem Jahr 1920 wurde im Jahr 2000 kernsaniert und wird in 2026 mit einer neuen Heizungsanlage weiter aufgewertet, sodass es sich in einem ansprechenden Zustand mit guter Bausubstanz präsentiert.

Vor dem Haus befindet sich neben einer Schule ebenso ein kleiner Park, der zum Verweilen und Entspannen einlädt.

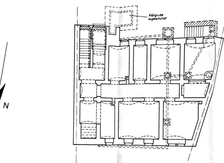
Das Haus verfĂĽgt ĂĽber insgesamt 8 Wohnungen mit 16 Zimmern, davon 10 Schlafzimmer und 8 Badezimmer, die auf drei Etagen verteilt sind. Zudem gibt es 3 Balkone, die einen Blick in den kleinen Garten mit Hangneigung hinter dem Haus bieten.

Zum 31.12 sowie 01.01 werden zwei Wohnungen leer, die individuell gestaltet und vermietet werden können.

Der sehr trockene Keller sowie ein leerer Dachboden bieten zusätzlichen Stauraum für die Bewohner, kann aber auch auf Grund seiner Beschaffenheit als Lager oder Archiv genutzt werden.

Das Objekt wurde von den EigentĂĽmern immer selbst verwaltet und hatte auĂźer einem externen Hausmeisterdienst somit keine nennenswerten Kosten.

Nutzen Sie die Chance und werden Sie Eigentümer dieses schönen Objektes in Döbeln!

wirtschaftliche Kennzahlen:
- 477 qm vermietbare Fläche
- 6x 2-Raum Wohnungen
- 2x 3- Raum Wohnungen
- 25.066,80 € Ist- Kaltmiete p.a.
- 4,37 € Durschnittsmiete pro qm

bautechnisch:
- neue Heizung in 2026
- 2000 komplett kernsaniert
- 2016 Erdgeschossumbau von Gewerbe zu Wohnen
- 2018 neue Wasserleitungen im Keller
- Gastherme mit Warmwasserspeicher im Dachboden mit regelmäßiger Wartung und Instandsetzung

Merkmale

  • 350 m² GrundstĂĽck
  • Keller
  • Balkon
  • Garten
  • Denkmalschutz-Afa
wirtschaftliche Kennzahlen:
- 477 qm vermietbare Fläche
- 6x 2-Raum Wohnungen
- 2x 3- Raum Wohnungen
- 25.066,80 € Ist- Kaltmiete p.a.
- 4,37 € Durschnittsmiete pro qm

bautechnisch:
- 2000 komplett kernsaniert
- 2016 Erdgeschossumbau von Gewerbe zu Wohnen
- 2018 neue Wasserleitungen im Keller
- Gastherme mit Warmwasserspeicher im Dachboden mit regelmäßiger Wartung und Instandsetzung

Grundrisse

Grundrisse
1 / 4

Realisiere Dein Projekt

Bausubstanz und Energie

Energieausweis

Ein Energieausweis ist für diesen Gebäudetyp nicht notwendig.
  • Baujahr1920
  • Zustand der ImmobilieGepflegt
  • EnergieträgerGas
Immowelt logo

Preisdetails

Kaufpreis
349000 €
731,66 €/m²
Provision für Käufer
7.14 inkl. MwSt.
Bei Abschluss eines notariellen Kaufvertrages ist eine Käuferprovision vom Käufer in Höhe von 7.14 % inkl. MwSt. aus dem Kaufpreis fällig.
Geschätzte Gesamtkosten
387.634 €1
Kaufpreis
349.000 €
Notarkosten (1,5%)
5.235 €
Grunderwerbsteuer (5,5%)
19.195 €
Provision für Käufer (3,57%)
12.459 €
Grundbucheintrag (0,5%)
1.745 €
1Der angezeigte Wert ist eine automatisch berechnete Schätzung von immowelt.
2Bei den Angaben handelt es sich um ortsübliche Werte. Individuelle Kosten können abweichen.

Lage

address-icon
Döbeln (04720)
Der Anbieter hat die genaue Adresse nicht freigegeben
Das angebotene Mehrfamilienhaus befindet sich in zentraler und gut erreichbarer Lage der Großen Kreisstadt Döbeln im sächsischen Landkreis Mittelsachsen.
Die Stadt Döbeln liegt im Mittelsächsischen Hügelland im weiten Talkessel der Freiberger Mulde, etwa gleich weit entfernt von den Metropolregionen Dresden (ca. 50 km), Leipzig (ca. 70 km) sowie Chemnitz (ca. 40 km).
Döbeln zählt rund 24.000 Einwohner und ist die zweitgrößte Stadt im Landkreis Mittelsachsen.
Dank seiner verkehrsgünstigen Lage in der Mitte Sachsens bietet die Stadt eine solide Anbindung an das überregionale Verkehrsnetz: So sind zwei Autobahnanschlüsse der A 14 ("Döbeln-Nord" und "Döbeln-Ost") vorhanden.

Das städtische Zentrum liegt auf einer Insel zwischen zwei Armen der Freiberger Mulde, wodurch eine attraktive Innenstadtlage entsteht.
Zudem hält am Haltepunkt "Körnerplatz" des ÖPNV Linien des Regional- und Stadtbusverkehrs (z. B. Linie 750, 922) an.
Auch die Nähe zum Lessing-Gymnasium Döbeln ist gegeben: Das Schulgebäude befindet sich im Bereich Körnerplatz/­Straße des Friedens.

Zentral gelegen - das Haus profitiert von der Nähe zur Innenstadt mit Einkaufsmöglichkeiten, Gastronomie und Dienstleistungsangeboten. Gute Verkehrsanbindung sowohl lokal (ÖPNV) als auch regional (Autobahn). Sehr gute Sichtbarkeit und Repräsentativität durch die Platzlage am markanten Stadtplatz "Körnerplatz" - das wirkt sich positiv auf Wohnqualität und Werthaltigkeit aus.

Attraktives Umfeld: Döbeln mit gut erhaltener Innenstadtstruktur bietet urbanes Wohnen in einem mittleren städtischen Umfeld - nicht eine Metropole, aber lebendig und funktional.

Weitere Informationen

Stichworte Anzahl der Schlafzimmer: 10, Anzahl der Badezimmer: 8, Anzahl Balkone: 3, 3 Etagen

Weitere Services

Lust auf eine Besichtigung?
Eine Frage zur Immobilie?
Nachricht hinzufĂĽgen
Mit der Nutzung der oben angegebenen Telefonnummer oder durch Klicken auf „Kontaktieren“ akzeptierst Du die Allgemeinen Nutzungsbedingungen, denen Du jederzeit widersprechen kannst. Weitere Informationen zum Datenschutz

Ăśber den Anbieter

Evernest GmbH
Evernest GmbHMaklerbĂĽro
Mönkedamm 9-11, 20457 Hamburg
partner badge
Partnerschaft
Jonas RendlerDein Kontakt
Online-ID: 2mbjm5e
Referenznummer: L-YZCGMNF
Evernest GmbH
Evernest GmbH
Bewertung: 4,5 von 5 Sternen
Nachricht hinzufĂĽgen
Mit der Nutzung der oben angegebenen Telefonnummer oder durch Klicken auf „Kontaktieren“ akzeptierst Du die Allgemeinen Nutzungsbedingungen, denen Du jederzeit widersprechen kannst. Weitere Informationen zum Datenschutz
Wie zufrieden bist du mit dieser Seite (nicht mit der Immobilie selbst)?