Version: 8.25.1Navigation überspringen
ohne-makler.net - Immobilien selbst vermarkten
588 €
2 Zimmer  •  49 m²  •  1. Geschoss

Wohnung zur Miete
588 €
2 Zimmer  •  49 m²  •  1. Geschoss

Moderne, helle 2-RW in Uni-Nähe Ilmenau

Ideale Kombination aus modernem Wohnkomfort und praktischer Lage.
Angeboten wird eine hochwertig sanierte und sonnige 2-Zimmer-Wohnung, die
sich in einem gepflegten Mehrfamilienhaus nur 3 km entfernt von Ilmenau und der
Universität befindet.

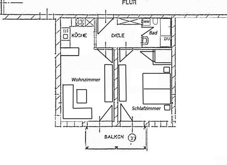
Die Wohnung ist schön aufgeteilt, umfasst ein einladendes Wohnzimmer mit dem offenen Küchenbereich und ein großes Schlafzimmer sowie einen Flur mit Platz. Sie wurde 2021 grundsaniert (Bad, Elektrik, Türen, Böden, Küche) und befindet sich in einem sehr guten Gesamtzustand.
Ein besonderes Highlight dieser Wohnung ist der großzügige, sonnige Balkon, der sowohl vom Wohnzimmer als auch vom Schlafzimmer aus betreten werden kann. Ein zusätzlicher Abstellraum sorgt für ausreichend Stauraum.
Ein Kfz-Stellplatz direkt vor der Tür rundet das Angebot ab und ist bereits in der Miete enthalten.
Diese Eigentumswohnung eignet sich perfekt für Studenten und Personal der TU als natürlich auch andere (Singles, Paare), die außerhalb von Ilmenau ruhig und modern wohnen wollen.
Die Wohnung ist vorauss. ab 1. April 2025 zu beziehen.

Merkmale

  • Bezug: sofort
  • 1. Geschoss
  • Einbauküche
  • Badewanne
  • Bodenbelag: Fliesen, Laminat
  • Balkon
  • Außen-Stellplatz
Balkon, Vollbad, Einbauküche, Laminat, Fliesen

Bemerkungen:
- umfassend ausgestattete Einbauküche (mit z.T. neuen Geräten)
- hochwertiges Badezimmer mit Wanne, Dusche und Waschmaschinenanschluss
- kleiner Abstellraum
- Flur
- großer Balkon
- Laminat (Zimmer) und Fliesenboden (Bad)
- Kfz-Stellplatz
- gemeinsamer Waschmaschinenraum im Keller

Grundrisse

Grundrisse
1 / 1

Realisiere Dein Projekt

Bausubstanz und Energie

Energieausweis

C
  • Baujahr1994
  • Zustand der Immobilieneuwertig
  • HeizungsartZentralheizung
  • EnergieträgerGas
MediumRectangleTop

Mietkosten

geschätzte Warmmiete
~826,40 €
Kaltmiete
12 €/m²
588 €
Nebenkosten
160 €
Heizkosten
in Warmmiete enthalten
Kaution
keine Angabe
Weitere Preisinformationen
1 Stellplatz
Nettokaltmiete: 588,00 EUR

Lage

address-icon
Langewiesen (98603)
Der Anbieter hat die genaue Adresse nicht freigegeben
Ruhige, sonnige Wohnlage nur wenige Kilometer von Ilmenau entfernt. Einkaufsmöglichkeiten und Geschäfte des täglichen Bedarfs befinden sich direkt am Ort.
Infrastruktur (im Umkreis von 5 km):
Apotheke, Lebensmittel-Discount, Allgemeinmediziner, Kindergarten, Grundschule, Realschule, Gymnasium, Öffentliche Verkehrsmittel

Weitere Informationen

Sonstiges Heizungsart: Zentralheizung
Energieträger: Gas


Makleranfragen nicht erwünscht. Nach § 7 UWG sind unaufgeforderte Kontaktaufnahmen durch Makler ohne ausdrückliche Einwilligung des Empfängers verboten!

ohne-makler (OM) ist weder Anbieter noch Vermittler der Immobilie. OM betreibt eine Plattform für Immobilieneigentümer, die unter anderem die gleichzeitige Veröffentlichung einzelner Inserate auf mehreren Immobilienportalen ermöglicht. Die Inhalte dieser Inserate werden ausschließlich von Dritten verantwortet. Für die Richtigkeit, Vollständigkeit oder Rechtmäßigkeit der Angaben übernimmt OM keine Haftung. Hinweise auf mögliche Rechtsverstöße können jederzeit gemeldet werden und werden nach Prüfung umgehend bearbeitet. Stichworte Stellplatz vorhanden, Anzahl der Badezimmer: 1, Anzahl Balkone: 1, Bundesland: Thüringen

Weitere Services

Lust auf eine Besichtigung?
Eine Frage zur Immobilie?
Mit einer persönlichen Nachricht hast du bessere Chancen auf eine Antwort.
Mit der Nutzung der oben angegebenen Telefonnummer oder durch Klicken auf „Kontaktieren“ akzeptierst Du die Allgemeinen Nutzungsbedingungen, denen Du jederzeit widersprechen kannst. Weitere Informationen zum Datenschutz

Über den Anbieter

Humboldtstr. 25 A, 21509 Glinde
partner badge
Partnerschaft
Privat von T. HüfnerDein Kontakt
Keine Telefonnummer hinterlegt
Keine Telefonnummer hinterlegt
Online-ID: 26AV1M5U47GI
Referenznummer: 336418
ohne-makler.net - Immobilien selbst vermarkten
ohne-makler.net - Immobilien selbst vermarkten
Mit einer persönlichen Nachricht hast du bessere Chancen auf eine Antwort.
Mit der Nutzung der oben angegebenen Telefonnummer oder durch Klicken auf „Kontaktieren“ akzeptierst Du die Allgemeinen Nutzungsbedingungen, denen Du jederzeit widersprechen kannst. Weitere Informationen zum Datenschutz
MediumRectangleTop
MediumRectangleBottom
MediumRectangleTop
Wie zufrieden bist du mit dieser Seite (nicht mit der Immobilie selbst)?