Version: 8.24.0Navigation überspringen
300.000 €
4 Zimmer  •  123 m²  •  566 m² Grundstück
Immowelt logo

Einfamilienhaus zum Kauf
300000 €
2.439 €/m²
4 Zimmer  •  123 m²  •  566 m² Grundstück

Für Auswanderer, oder als Ferienimmobilie- Haus in Ungarn am Nordufer des Balaton

Sie wollen auswandern, oder suchen eine Ferienimmobilie direkt am ungarischen Balaton? Dann ist diese Immobilie vielleicht genau die richtige für Sie!
Am Nordufer des Plattensee, in gerade mal ca. 500 m Entfernung liegt dieses charmante Einfamilienhaus aus der Zeit vor 1950 und bietet Ihnen auf einer Wohnfläche von ca. 123 m² und einer Grundstücksfläche von ca. 566 m² eine gemütliche und teilrenovierte Wohnumgebung. Das Haus verfügt über insgesamt 4 Zimmer und wurde zuletzt im Jahr 2021 modernisiert. hier wurden im wesentlichen die Wasser- und Elektroleitungen erneuert, sowie einige Fenster ersetzt. Geheizt wird mittels eines Kachelofens. Jedes Zimmer hat zusätzlich noch eine Feuerstelle. Ein Klima-Split-Gerät kann wahlweise zum Kühlen, oder zum Heizen alternativ eingesetzt werden.
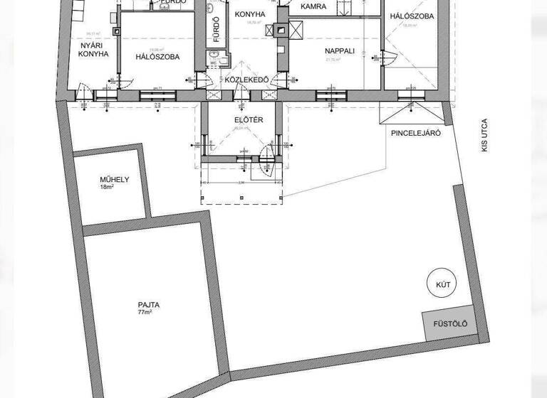
Vom großzügigen Eingangsbereich aus gelangen Sie in den Flur mit Gäste-WC und angrenzender Sommerküche. Rechts und links vom Flur erreichen Sie die Schlafzimmer, das Wohnzimmer, sowie die Küche und das Badezimmer.
Ein eigener Garten lädt zum Verweilen im Freien ein. Ein weiteres Nebengelass bietet u.a. Platz für zwei PKW, sowie angrenzend eine kleine Werkstatt. Ein Brunnen auf dem Grundstück darf natürlich nicht fehlen. Wer möchte, kann sogar eine ebenfalls vorhandene Räucherkammer nutzen.
Die Teilunterkellerung bieten zusätzlichen Stauraum. Die Immobilie ist auch als Ferienhaus nutzbar.

Merkmale

  • 566 m² Grundstück
  • Kelleranteil
  • 2 Stellplätze: 2 Garagen
  • Garten
  • teilweise möbliert
  • voll klimatisiert
  • Bodenbelag: Laminat

Grundrisse

Grundrisse
1 / 1

Realisiere Dein Projekt

Bausubstanz und Energie

Der Anbieter hat keine Informationen zum Energieverbrauch bereit gestellt.
  • Zustand der ImmobilieAltbau (bis 1945)
  • HeizungsartOfen
  • EnergieträgerElektro, Holz
Immowelt logo

Preisdetails

Kaufpreis
300000 €
2.439,02 €/m²
Provision für Käufer
zzgl. 3,57 % Maklercourtage (inkl. ges. USt.)
Weitere Preisinformationen
2 Garagenstellplätze

Lage

address-icon
Balatonudvari (8242)
Fallback location image
Die Karte ist nicht verfügbar.
Balatonudvari befindet sich in der landschaftlich reizvollen Region rund um den Balaton, Ungarns bekanntester See. Die Kleinstadt ist besonders für ihre Nähe zum Wasser sowie ihre ruhige und naturverbundene Atmosphäre bekannt. Historisches Flair kombiniert mit einer entspannten Umgebung macht Balatonudvari zu einem beliebten Wohn- und Ferienort. Der Ort bietet eine gute Mischung aus Erholungsmöglichkeiten, Freizeitaktivitäten und traditionellem ungarischen Charme. Die Region ist geprägt von viel Grün, Weinbergen und einem malerischen Ausblick über den Plattensee.

Das Einfamilienhaus liegt in einem gepflegten und ruhigen Wohngebiet mit einer angenehmen Nachbarschaftsatmosphäre. In etwa 300 Metern Entfernung befindet sich der Zugang zum Balatonufer, der zu Spaziergängen und Wassersportaktivitäten einlädt. Der nächstgelegene Strand ist in rund 500 Metern fußläufig erreichbar. Einkaufsmöglichkeiten für den täglichen Bedarf sowie Restaurants sind zu Fuß etwa 5-10 Minuten entfernt, die Entfernung beträgt rund 800 Meter. Eine Grundschule befindet sich etwa 3 Kilometer entfernt, eine Bushaltestelle ist nach ca. 600 Metern erreichbar. Die Umgebung bietet zudem eine Reihe von Rad- und Wanderwegen, etwa durch die nahegelegenen Weinberge. Größere Städte wie Balatonfüred sind mit dem Auto oder öffentlichen Verkehrsmitteln in etwa 15 Minuten erreichbar. Die Lage eignet sich ideal für Familien, Ruhesuchende oder naturverbundene Menschen, die Wert auf Erholung und Freizeitmöglichkeiten in direkter Umgebung legen.

Weitere Informationen

Sonstiges Für Besichtigungswünsche hinterlassen Sie bitte unbedingt eine Rückrufnummer.
Beratung in Erfurt. Vor-Ort-Besichtigung möglich. Stichworte Garage vorhanden, modernisiert: 2021 Zustand: renoviert, teilsaniert Sonstiges: frei werdend

Weitere Services

Lust auf eine Besichtigung?
Eine Frage zur Immobilie?
Nachricht hinzufügen
Mit der Nutzung der oben angegebenen Telefonnummer oder durch Klicken auf „Kontaktieren“ akzeptierst Du die Allgemeinen Nutzungsbedingungen, denen Du jederzeit widersprechen kannst. Weitere Informationen zum Datenschutz

Über den Anbieter

Anger 23, 99084 Erfurt
partner badge
Partnerschaft
Herr Denis MärzDein Kontakt
Online-ID: 2nqbp5f
Referenznummer: EFH 104
R&M Immobilien Erfurt eGbR
R&M Immobilien Erfurt eGbR
Bewertung: 5 von 5 Sternen
Nachricht hinzufügen
Mit der Nutzung der oben angegebenen Telefonnummer oder durch Klicken auf „Kontaktieren“ akzeptierst Du die Allgemeinen Nutzungsbedingungen, denen Du jederzeit widersprechen kannst. Weitere Informationen zum Datenschutz
Wie zufrieden bist du mit dieser Seite (nicht mit der Immobilie selbst)?