KfW-55-Erdgeschosswohnung am Möhnesee - *Verkauf im aktuellen Rohbauzustand*
*** Kein Energieausweis vorhanden; Heizsystem vom Käufer festzulegen, da die Wohnung als Rohbau ohne Heizung verkauft wird ***
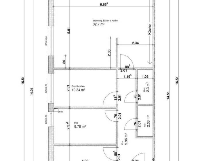
Diese moderne KfW-55-Erdgeschosswohnung bietet auf ca. 86 m² Wohnfläche drei Zimmer und einen großzügigen, 75 m² großen Gartenanteil in begehrter Lage von Möhnesee-Körbecke.
*** Die Wohnung wird im aktuellen Bauzustand veräußert. Das Objekt befindet sich aktuell im Rohbauzustand inklusive Fenster und technischer Vorbereitungen, wobei die gemeinschaftlichen Fertigstellung durch die Eigentümer erfolgt. Für den bezugsfertigen Ausbau liegt bereits eine detaillierte Architekten-Kalkulation vor, die für diesen Anteil Kosten von ca. 273.373 EUR (inkl. Puffer) vorsieht. ***
Geplant ist eine Erdwärmepumpe, Fußbodenheizung und dreifach verglaste, bodentiefe Fenster mit elektrischen Rollläden. Des weiteren ein Aufzug, ein Tiefgaragen- sowie ein Außenstellplatz.
Die fußläufige Nähe zum Möhnesee ist eines der besonderen Highlights dieser Lage.
Da die Eigentümergemeinschaft Details noch selbst mitbestimmen kann, besteht für Sie aktives Gestaltungs- und Einsparpotenzial beim finalen Innenausbau.
Energieausweis ist in Bearbeitung.
Merkmale
Barrierefrei
Personenaufzug
Gäste-WC
Keller
Terrasse
Garten
Außen-Stellplatz, Tiefgarage
Highlights:
- Top-Lage: Nur 15 Gehminuten zum Möhnesee (Körbecke). - Die Wohnung wird im aktuellen Bauzustand veräußert. - Modernster Standard: Neubau (2021) als KfW-Effizienzhaus 55. - Privater Garten: Ca. 86 m² Wohnfläche plus 75 m² Gartenanteil. - Nachhaltige Technik: Erdwärmepumpe, Fußbodenheizung und 3-fach Verglasung. - Gestaltungsfreiheit: Verkauf im Rohbau - Innenausbau noch mitbestimmbar. - Kalkulierbare Kosten: Architektenschätzung zur Fertigstellung liegt vor (ca. 273.373 EUR). - Volle Ausstattung: Tiefgarage, Außenstellplatz, Aufzug und Kellerraum.
1Der angezeigte Wert ist eine automatisch berechnete Schätzung von immowelt.
2Bei den Angaben handelt es sich um ortsübliche Werte. Individuelle Kosten können abweichen.
Lage
Körbecke, Möhnesee (59519)
Der Anbieter hat die genaue Adresse nicht freigegeben
Die Immobilie besticht durch ihre ruhige, familienfreundliche Lage im begehrten Möhnesee-Körbecke.
Den beliebten Möhnesee erreichen Sie für vielfältige Freizeit- und Wassersportaktivitäten in nur ca. 15 Gehminuten.
Eine hervorragende Infrastruktur mit Schulen, Kindergärten und Geschäften des täglichen Bedarfs befindet sich in direkter Nähe.
Dank der schnellen Anbindung an die B229, B516 und die Autobahnen A44/A445 sind Städte wie Soest oder Dortmund zügig erreichbar.
Die Umgebung vereint somit idyllisches, naturnahes Wohnen perfekt mit einer exzellenten regionalen Vernetzung.
Insgesamt bietet dieser Standort eine hohe Lebensqualität für Familien, Paare und Pendler gleichermaßen.
Weitere Informationen
Provisionshinweis
5.950,00 € Käuferprovision inkl. 19 % MwSt. Für ein Exposé und weitere Informationen zum Objekt sowie einen Besichtigungstermin füllen Sie bitte die nachfolgenden Angaben im Kontaktformular aus:- vollständiger Name/Anschrift- E-Mail-Adresse- Telefon/Mobilnummer
Sonstiges
Bitte beachten Sie, dass nur ein VOLLSTÄNDIG AUSGEFÜLLTES Kontaktformular von uns bearbeitet werden kann.
Herr Waldemar Engelbrecht Overhagener Str. 25, 59557 Lippstadt Tel.: +49 151 115 335 39 Email: w.engelbrecht@iad-immobilien.de Aufsichtsbehörde nach § 34 c Gewerbeordnung Kreis Herford, Wittekindstr. 7, 32051 Herford Lizenzpartner der IAD Immobilien Agentur Deutschland GmbH
Stichworte
Tiefgarage vorhanden, Stellplatz vorhanden, Anzahl der Schlafzimmer: 2, Anzahl der Badezimmer: 1, Anzahl Terrassen: 1, 3 Etagen