2 Zimmer • 71 m² • 2. Geschoss • frei ab 01.08.2026
1 / 2
1 / 2
Wohnung zur Miete - Erstbezug
899 €
2 Zimmer • 71 m² • 2. Geschoss • frei ab 01.08.2026
Hochwertige Obergeschosswohnung mit Balkon - Neubau
Das neue 21-Familienhaus wird derzeit in solider, qualitativ und handwerklich hochwertiger Bauweise durch die Firma Megens errichtet. Fertigstellungstermin wird ca. Juli 2026 sein, sodass die Mieter das Objekt im August 2026 beziehen können. Das Wohnhaus teilt sich in Erdgeschoss, 1. Obergeschoss, 2. Obergeschoss und Dachgeschoss auf. Das Objekt ist nicht unterkellert. Das Mehrfamilienhaus wird als KFW 40 plus - Haus gebaut. Um einen weiteren Schutz vor Feuchtigkeitsbildung zu haben, erhält jede Wohnung eine kontrollierte Be- und Entlüftungsanlage. Im Objekt wird eine zentrale Luft-Wasser-Wärmpumpe eingebaut. Die Warmwasserversorgung erfolgt über die vorgenannte Wärmpumpenanlage einschließlich Warmwasserspeicher und einer nachgeschalteten Trinkwasserladestation. In den einzelnen Wohnungen sind Fußbodenheizungen mit Raumthermostaten vorhanden. Die Heizkosten werden mit entsprechenden Wärmezählern je Wohneinheit ermittelt und gemäß Heizkostenverordnung abgerechnet. Um eine exakte Frischwasser- und Schmutzkanalabrechnung zu ermöglichen, sind für jede Wohneinheit Wasserzwischenzähler vorhanden. Die Außenwände im Erd- und Obergeschoss sind mit Wärmedämmung lt. Wärmeschutznachweis und einer Verblendung errichtet worden. Das moderne Dach ist umlaufend mit einer Zinkabdeckung eingefasst. Die Dachflächen sind nach Richtlinien des Dachdeckerhandwerks mehrlagig bituminös abgeklebt, einschl. Wärmedämmung nach EnEv. Es wird eine PV-Anlage mit Akkuspeicher auf dem Flachdach installiert. Die jeweiligen Treppenhäuser sind modern errichtet und werden tapeziert. Die Beleuchtung im Treppenhaus erfolgt über Präsenzmelder. Einkäufe können leicht über die vorhandene Aufzugsanlage in die einzelnen Wohnungen transportiert werden. Die Aufzugsanlage ist mit einem Notrufsystem ausgestattet. Es sind Kunststofffenster mit Wärmeschutzverglasung als drei Scheiben Glas mit entsprechenden Profilen gemäß EnEV vorhanden. Die Fensterelemente sind von innen weiß und von außen anthrazit foliert. Die Kunststofffenster der Wohneinheiten erhalten Kunststoffrollladen in grau Standard als Elektrorollladen. Die großen Fensteranlagen mit Anschluss an die Terrassen / Loggien der Wohneinheiten erhalten eine Außenraffstoreanlage in Aluminium mit Elektroantrieb. Die Bedienung der Außenraffstoreanlage erfolgt über einen Kippschalter im Bereich der Fensteranlage. Auf den gemeinschaftlichen Flächen und in den Wohneinheiten werden zur Sicherheit der Bewohner entsprechende Rauchmelder installiert. Gemeinschaftlich wird im Erdgeschoss ein gemeinschaftlicher Müllabstell- und der Fahrradabstellraum genutzt. Das Objekt erhält eine digitale SAT-Anlage. Die benötigten Receiver sind seitens der Bewohner anzuschaffen. Sämtliche Schlafräume und das Wohnzimmer erhalten TV-Anschlüsse. Die Kosten für Hausreinigung und Hauswart sind bereits in den Nebenkosten enthalten. Der zur Wohneinheit gehörende Außenstellplatz ist mit monatlich EUR 40,00 separat zu vergüten. Das Objekt erhält eine Schließanlage.
Merkmale
frei ab 01.08.2026
2. Geschoss
offene Küche
Personenaufzug
Gäste-WC
Balkon
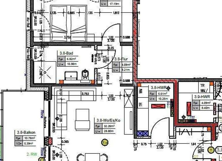
Grundrisse
Grundrisse
1 / 1
Realisiere Dein Projekt
Bausubstanz und Energie
Energieausweis
A+
Baujahr2026
Zustand der ImmobilieNeubau, Erstbezug
HeizungsartZentralheizung: Fußbodenheizung
EnergieträgerLuft-/Wasser-Wärmepumpe
Mietkosten
Kaltmiete
12,66 €/m²
899 €
Nebenkosten
240 €
Heizkosten
in Warmmiete enthalten
Kaution
1798 €1.798 €
Weitere Preisinformationen
Nettokaltmiete: 899,00 EUR
Lage
Geldern (47608)
Der Anbieter hat die genaue Adresse nicht freigegeben
Die Stadt Geldern wirbt gerne mit dem Slogan: Geldern - die LandLebenStadt. Damit wird das Lebensgefühl der Bewohner und Besucher Gelderns zum Ausdruck gebracht. Man genießt es, in einer fast dörflichen Gemeinschaft auf dem Lande zu leben und die Natur vor der Haustüre zu haben. Andererseits bietet die Stadt als vollwirksames Mittelzentrum für ca. 100.000 Personen eine Vielzahl von Einkaufs-, Arbeits-, Schul-, Sport-, Freizeit- und Kulturangeboten. Die Stadt Geldern hat insgesamt ca. 34.750 Einwohner und zählt mit seinen 8 Ortsteilen zu den größten Städten im Kreis Kleve. Geldern ist Einkaufsstadt auch für die Bevölkerung der umliegenden Städte und Gemeinden. Die Arbeitslosenquote liegt in Geldern bei "nur" 5,40 %. Der Flughafen in Düsseldorf ist ca. 50 km und in Weeze ca. 25 km entfernt. Die BAB 40 (Duisburg - Venlo) und 57 (Köln - Goch - Arnheim) sind nur wenige Kilometer von Geldern entfernt. Durch den vorhandenen Bahnhof bietet Geldern Ihnen die Möglichkeit, kostengünstig und stressfrei in die Ballungszentren im Ruhrgebiet oder Düsseldorf / Köln zu gelangen. Der Innenstandbereich ist fussläufig in wenigen Gehminuten vom Objekt zu erreichen.
Die seniorengerechte Wohneinheit wird ohne Wandtapeten, Deckenflächen Raufaser tapeziert, Badezimmer und Hauswirtschaftsraum tapeziert und gestrichen und mit Bodenbelägen an die neuen Mieter übergeben. Es erfolgt ein Erstbezug. Lassen Sie sich von dieser absolut hochwertigen Immobilie überzeugen und vereinbaren Sie noch heute einen unverbindlichen Besichtigungstermin. Wir freuen uns auf Sie.
Stichworte
Stellplatz vorhanden, Anzahl der Schlafzimmer: 1, Anzahl der Badezimmer: 1, Anzahl Balkone: 1, Balkon-Terrassen-Fläche: 10,78 m², 4 Etagen
Sonstiges/Wohnen: seniorengerechtes Wohnen