Version: 8.25.1Navigation überspringen
485 €
69,5 m² Verkaufsfläche
Immowelt logo

Ladenfläche zur Miete
485 €
69,5 m² Verkaufsfläche

antaris Immobilien GmbH ** Charmante Ladenfläche **

Diese charmante Ladenfläche im Erdgeschoss eines gepflegten Wohn- und Geschäftshauses bietet auf rund 69,5?m² den idealen Raum für Ihr Einzelhandelskonzept, eine kleine Boutique, einen Showroom, ein Atelier oder ein kreatives Projekt.

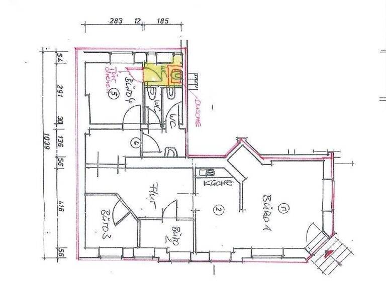
Der freundliche, offene Eingangsbereich mit großzügiger Schaufensterfront zieht sofort die Blicke auf sich und eignet sich perfekt als Verkaufsfläche oder Präsentationsbereich. Dahinter: drei separate Räume, flexibel nutzbar - ob als Lager, Büro, Werkstatt oder Rückzugsbereich.

Ihre Vorteile auf einen Blick:
. Große Fensterfront für maximale Sichtbarkeit
. Vielseitig nutzbare Nebenräume - ideal für Lager oder Werkstatt
. Eigene Küche - für Sie oder Ihre Gäste
. Zwei WCs + Dusche - praktisch im Tagesgeschäft
. Parkplätze direkt vor der Tür - Kundenfreundlichkeit inklusive
. Ideal für Retail, Service, kreative Ideen oder Beratung

Energieausweis vorhanden: ja
Energiekennwert: 219,00 kWh(m²-a)
Ausstelldatum: 14.11.2018
Art des Energieausweises: Verbrauch
Energieträger: Erdgas leicht
Baujahr technische Anlage: 1996

Grundrisse

Grundrisse
1 / 1

Realisiere Dein Projekt

Bausubstanz und Energie

Energieausweis

Endenergieverbrauch (Wärme)

Immowelt logo

Mietkosten

Nettomiete
485 €
Nebenkosten
210 €
Provision für Mieter
3,57 Monatsmieten vom Mieter inkl. MwSt.
Kaution
keine Angabe
Weitere Preisinformationen
Nettokaltmiete: 485,00 EUR

Lage

address-icon
JohannesvorstadtErfurt (99086)
Der Anbieter hat die genaue Adresse nicht freigegeben
Willkommen in der Josef-Ries-Straße, mitten in der lebendigen Johannesvorstadt - einem der gefragtesten innerstädtischen Quartiere nördlich der historischen Erfurter Altstadt. Hier trifft urbanes Flair auf ideale Erreichbarkeit und eine hervorragend ausgebaute Infrastruktur. Die zentrale Erdgeschosslage Ihrer zukünftigen Gewerbefläche bietet optimale Sichtbarkeit und ist ideal für kundenorientierte Nutzungskonzepte - egal ob Einzelhandel, Dienstleistung oder Praxis. In wenigen Minuten ist man zu Fuß, mit dem Rad oder per Straßenbahn mitten in der Erfurter Altstadt oder am Hauptbahnhof. ÖPNV-Haltestellen befinden sich in direkter Nähe und garantieren schnelle Verbindungen in alle Stadtteile. Auch mit dem Auto ist die Lage bestens erreichbar - öffentliche Parkplätze sind im Straßenraum und näheren Umfeld ausreichend vorhanden. Wer eine gut angebundene, sichtbare und lebendige Lage für sein Geschäft oder seine Dienstleistung sucht, ist hier genau richtig!

Weitere Informationen

Sonstiges Provision
Der Maklervertrag mit der antaris Immobilien GmbH kommt entweder durch eine schriftliche Vereinbarung oder durch die Inanspruchnahme unserer Maklertätigkeit auf Basis der Anforderung des Objekt-Exposés und der beinhalteten Bestimmungen zustande (siehe auch AGB). Für den Nachweis und/oder die Vermittlung des vorstehenden Objektes hat der Mieter an uns eine Maklerprovision in Höhe von 3,57 Monatsmieten inkl. der gesetzlichen Mehrwertsteuer zu zahlen. Die Provision ist fällig und zahlbar am Tag der Vertragsunterzeichnung durch den Mieter.
Widerrufsrecht
Sie können Ihre Vertragserklärung innerhalb von 14 Tagen ohne Angaben von Gründen in Textform (z.B. Brief, E-Mail) widerrufen. Die Frist beginnt nach Erhalt dieser Belehrung in Textform, jedoch nicht vor Vertragsabschluss und auch nicht vor Erfüllung unserer Informationspflichten gem. Art. 246 § 2 i.V.m. § 1 Abs. 1 und 2 EGBGB. Zur Wahrung der Widerrufsfrist genügt die rechtzeitige Absendung des Widerrufs. Im Falle eines wirksamen Widerrufs sind die beiderseits empfangener Leistungen zurück zu gewähren und ggf. bezogene Nutzungen (z.B. Zinsen) herauszugeben. Können Sie uns die empfangenen Leistungen sowie Nutzungen (z.B. Gebrauchsvorteile) nicht oder teilweise nicht oder nur in verschlechtertem Zustand zurückgewähren bzw. herausgeben, müssen Sie uns insoweit Wertersatz leisten. Dies kann dazu führen, dass Sie die vertraglichen Zahlungsverpflichtungen für den Zeitraum bis zum Widerruf gleichwohl erfüllen müssen. Verpflichtungen zur Erstattung von Zahlungen müssen innerhalb von 30 Tagen erfüllt werden.
Die Frist beginnt für Sie mit der Absendung Ihrer Widerrufserklärung, für uns mit deren Empfang. Das Widerrufsrecht erlischt vorzeitig, wenn der Vertrag von beiden Seiten auf Ihren ausdrücklichen Wunsch vollständig erfüllt ist, bevor Sie Ihr Widerrufsrecht ausgeübt haben.

Weitere Angebote finden Sie unter www.antaris-immobilien.de!

Weitere Services

Lust auf eine Besichtigung?
Eine Frage zur Immobilie?
Mit einer persönlichen Nachricht hast du bessere Chancen auf eine Antwort.
Mit der Nutzung der oben angegebenen Telefonnummer oder durch Klicken auf „Kontaktieren“ akzeptierst Du die Allgemeinen Nutzungsbedingungen, denen Du jederzeit widersprechen kannst. Weitere Informationen zum Datenschutz

Über den Anbieter

Juri-Gagarin-Ring 96-98, 99084 Erfurt
partner badge
6 Jahre Partnerschaft
Frau Nadja SchilgDein Kontakt
Online-ID: 26J7P5H864YX
Referenznummer: P549/G1
Antaris Immobilien GmbH
Antaris Immobilien GmbH
Bewertung: 4,1 von 5 Sternen
Mit einer persönlichen Nachricht hast du bessere Chancen auf eine Antwort.
Mit der Nutzung der oben angegebenen Telefonnummer oder durch Klicken auf „Kontaktieren“ akzeptierst Du die Allgemeinen Nutzungsbedingungen, denen Du jederzeit widersprechen kannst. Weitere Informationen zum Datenschutz
Wie zufrieden bist du mit dieser Seite (nicht mit der Immobilie selbst)?