Diese charmante Dachgeschosswohnung in Paderborn-Elsen überzeugt durch ihre ruhige Lage und den gemütlichen Wohncharakter. Die Wohnung befindet sich im Dachgeschoss eines Reihenhauses mit einer weiteren Wohneinheit ideal für alle, die Wert auf ein entspanntes Wohnumfeld legen. Beim Betreten der Wohnung wird deutlich: Hier lässt sich Wohnen und Wohlfühlen hervorragend verbinden. Die Dachschrägen im Dachgeschoss verleihen der Wohnung eine warme, einladende Atmosphäre, während die Dachflächenfenster für angenehmes Tageslicht sorgen.
Zu der Wohnung gehört ein Kellerraum, ein gemeinschaftlicher Fahrradabstellraum sowie ein Pkw- Stellplatz. Die Wohnung bietet eine funktionale und gut nutzbare Raumaufteilung. Die Küche ist mit einer Einbauküche ausgestattet - nicht im Kaufpreis enthalten - und bietet ausreichend Platz für den Alltag. Die Warmwasserversorgung erfolgt über einen elektrischen Durchlauferhitzer. Das Wannenbad ist zeitlos und funktional ausgestattet. Eine vorhandene Lüftung sorgen für ein angenehmes Raumgefühl.
Diese Immobilie ist besonders interessant für junge und alleinstehende Leute, die in den Immobilienmarkt einsteigen und ihre erste Eigentumswohnung erwerben möchten.
Fazit: Eine Wohnung mit ehrlichem Charme, solider Substanz und großem Potenzial- ideal für alle, die eine ruhige Lage, ein angenehmes Wohnumfeld und eine wertstabile Investition suchen.
Merkmale
Dachgeschoss
Badezimmer: Badewanne, Bad mit Dusche
Keller
Außen-Stellplatz
Fenster: Kunststoff
Kellerraum Fahrradabstellraum im Keller 1 Pkw- Stellplatz (im Kaufpreis mit 9.000 EURO inbegriffen) Waschmaschinenanschluss im Bad Warmwasserbereitung erfolgt durch Durchlauferhitzer in der Küche und im Bad Anschluss ans Kabelnetz vorhanden
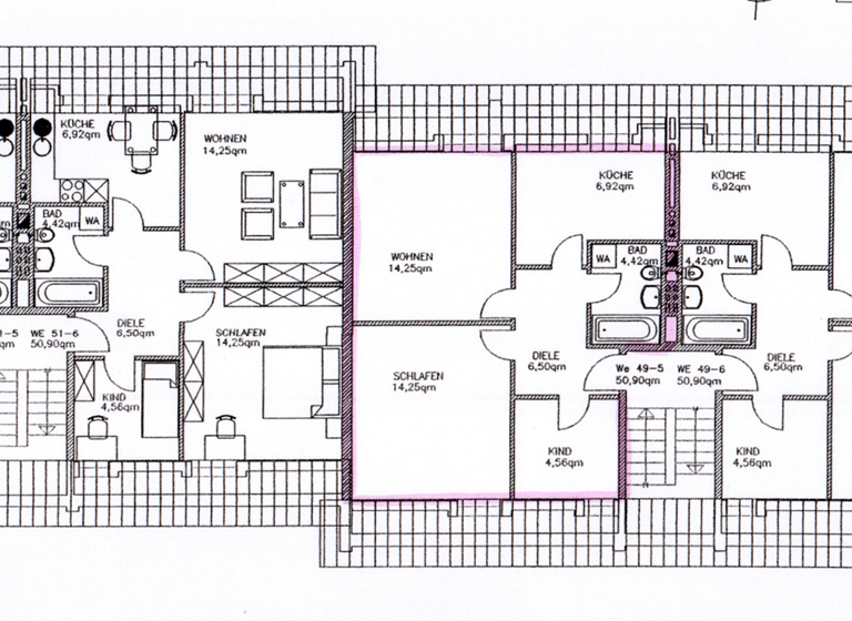
Grundrisse
Grundrisse
1 / 1
Realisiere Dein Projekt
Bausubstanz und Energie
Energieausweis
D
Baujahr1967
Zustand der ImmobilieNeubau
EnergieträgerGas
Preisdetails
Kaufpreis
118000 €118.000 €
2.318,27 €/m²
Preis pro Stellplatz
9000 €9.000 €
Hausgeld
125 €125 €
Provision für Käufer
Für den Käufer fällt eine Maklerprovision in Höhe von 4,76 % inklusive 19 % MwSt. an.
Weitere Preisinformationen
1 Stellplatz, Kaufpreis: 9.000,00 EUR
Geschätzte Gesamtkosten
132.243 €1
Kaufpreis
118.000 €
Kaufnebenkosten
14.243 €
2
Notarkosten (1,5%)
1.770 €
Grunderwerbsteuer (6,5%)
7.670 €
Provision für Käufer (3,57%)
4.213 €
Grundbucheintrag (0,5%)
590 €
1Der angezeigte Wert ist eine automatisch berechnete Schätzung von immowelt.
2Bei den Angaben handelt es sich um ortsübliche Werte. Individuelle Kosten können abweichen.
Lage
Elsen, Paderborn (33104)
Der Anbieter hat die genaue Adresse nicht freigegeben
Die Wohnung befindet sich in einer ruhiger Wohnlage von Paderborn-Elsen, einem beliebten und gewachsenen Stadtteil mit angenehmer Nachbarschaft. Elsen zeichnet sich durch eine gute Mischung aus ruhigem Wohnen und sehr guter Infrastruktur aus. Eine schnelle Erreichbarkeit der nächstgelegenen Stadt Paderborn ist durch die gute Infrastruktur gegeben. Einkaufsmöglichkeiten, Kindergärten und Schulen sind vor Ort.
Weitere Informationen
Sonstiges
Die Wohnung ist zur Zeit vermietet. Mietpreis auf Anfrage.