Version: 8.25.1Navigation überspringen
Mietkosten auf Anfrage
250 m² Verkaufsfläche
Immowelt logo

Verkaufsfläche zur Miete
Mietkosten auf Anfrage
250 m² Verkaufsfläche

zentralgelegene, attraktive Geschäftsfläche in Wörgl -Provisionsfrei-

Mitten in der pulsierenden Stadt Wörgl, in der Bahnhofstraße erwartet Sie diese attraktive Geschäftsfläche - der perfekte Standort für Ihr Business.
Auf großzügigen 250 m² bietet sich Ihnen reichlich Raum, um Ihre Produkte stilvoll zu präsentieren. Die zentrale Lage garantiert hohe Sichtbarkeit sowie eine ausgezeichnete Erreichbarkeit. Durch diese Straße laufen täglich zahlreiche Laufkunden, sowie allerhand kauffreudige Tourristen.

Eine große Schaufensterfront sorgt nicht nur für reichlich Tageslicht, sondern verleiht dem Objekt eine helle, einladende Atmosphäre. Bereits beim Betreten empfängt sie ein großzügiger Eingangsbereich. Die hohen Decken schaffen ein luftiges Raumgefühl und lassen die Fläche noch beeindruckender wirken. Über eine Treppe gelangen Sie ins Obergeschoss, das ebenfalls mit viel Platz und Flexibilität überzeugt. Von oben genießen Sie einen angenehmen Überblick über den gesamten Raum - perfekt, um Ihr Geschäft im Blick zu behalten und gleichzeitig einen modernen, offenen Eindruck zu hinterlassen.

- Es gelten unsere Allgemeinen Geschäftsbedingungen

- Mietvertragserstellung: Erfolgt durch die Rechtsanwaltskanzlei HRR.

Merkmale

  • Bezug: sofort

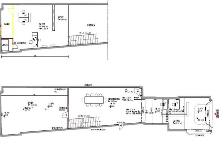
Grundrisse

Grundrisse
1 / 1

Realisiere Dein Projekt

Bausubstanz und Energie

Möchtest du Details zum Energieverbrauch?info_energy_calculation-icon
  • Zustand der ImmobilieGepflegt
Immowelt logo

Mietkosten

Miete auf Anfrage
Provision für Mieter
Bitte beachte, das Angebot kann bei Vertragsabschluss die Zahlung einer Provision beinhalten. Weitere Informationen erhältst Du vom Anbieter.
Kaution
keine Angabe

Lage

address-icon
Bahnhofstrasse 34Wörgl (6300)

Weitere Services

Lust auf eine Besichtigung?
Eine Frage zur Immobilie?
Nachricht hinzufügen
Mit der Nutzung der oben angegebenen Telefonnummer oder durch Klicken auf „Kontaktieren“ akzeptierst Du die Allgemeinen Nutzungsbedingungen, denen Du jederzeit widersprechen kannst. Weitere Informationen zum Datenschutz

Über den Anbieter

Josef-Speckbacher-Strasse 11, 6300 WÖRGL
partner badge
Partnerschaft
Frau Sabrina SchrollDein Kontakt
Online-ID: 25FF1C5XCHLJ
Referenznummer: 122 (1/122)
Hochstaffl Immobilien GmbH
Hochstaffl Immobilien GmbH
Bewertung: 5 von 5 Sternen
Nachricht hinzufügen
Mit der Nutzung der oben angegebenen Telefonnummer oder durch Klicken auf „Kontaktieren“ akzeptierst Du die Allgemeinen Nutzungsbedingungen, denen Du jederzeit widersprechen kannst. Weitere Informationen zum Datenschutz
Wie zufrieden bist du mit dieser Seite (nicht mit der Immobilie selbst)?