Stilvolles Einfamilienhaus in begehrter Lage von Hamburg Wellingsbüttel
Dieses stilvolle Einfamilienhaus befindet sich derzeit in der Planungsphase und bietet mit einer großzügigen Wohnfläche von 252 m² ein herausragendes Wohnambiente. Die Immobilie erstreckt sich über zwei Etagen und umfasst insgesamt fünf Zimmer, darunter vier geräumige Schlafzimmer und zwei luxuriöse Badezimmer.
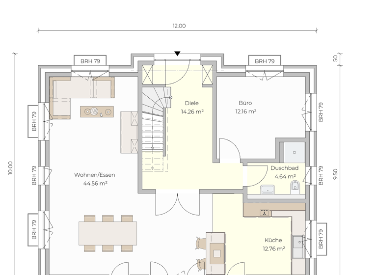
Der offen gestaltete Küchenbereich geht nahtlos in den Wohnraum über und schafft eine einladende Atmosphäre für gemütliche Abende. Es besteht die Option, einen eleganten Kamin zu integrieren, der zusätzlichen Komfort bieten könnte.
Für weitere Annehmlichkeiten sorgen ein Gäste-WC, ein Tageslichtbad mit sowohl Dusche als auch Badewanne sowie ein separates Bidet und Urinal.
Ein besonderes Highlight ist die großzügige Terrasse, die zum Entspannen im Freien einlädt und den besonderen Charme dieser Immobilie unterstreicht. Der Neubau überzeugt durch seine energieeffiziente Bauweise im KfW-55-Standard, unterstützt durch den Einsatz moderner Luftwärmepumpen und einer komfortablen Fußbodenheizung.
Merkmale
1.475 m² Grundstück
offene Küche
Badezimmer: Badewanne, Bad mit Dusche
Bidet, Gäste-WC
Keller
Terrasse
2 Stellplätze: 2 Außen-Stellplätze
Waschraum
Zu den zahlreichen Ausstattungsmerkmalen dieses Hauses gehören ein großzügiger Keller und ein Dachboden, die zusätzlichen Stauraum bieten. Die offene Küche ist ideal für Familien und Hobbyköche, während Rollläden für zusätzlichen Komfort sorgen. Die Badezimmer sind hochwertig ausgestattet mit einer Dusche, einer Wanne sowie Bidet und Urinal. Ein Wasch- und Trockenraum ist ebenfalls vorhanden. Für Fahrzeuge stehen zwei Außenstellplätze zur Verfügung. Das Haus wird durch eine effiziente Fußbodenheizung beheizt, die mit einer umweltfreundlichen Luftwärmepumpe betrieben wird. Diese Merkmale, kombiniert mit dem KFW55-Standard, sorgen für einen nachhaltigen und komfortablen Wohnstil. Weitere Ausstattungsmerkmale: Kamin, Gäste WC, Tageslichtbad, Wasch/Trockenraum. Weitere Ausstattungsmerkmale: 2 Außenstellplatz.
Grundrisse
Grundrisse
1 / 6
Realisiere Dein Projekt
Bausubstanz und Energie
Möchtest du Details zum Energieverbrauch?
Baujahr2026
Zustand der ImmobilieNeubau
HaustypKfW 55
HeizungsartFußbodenheizung
EnergieträgerLuft-/Wasser-Wärmepumpe
Preisdetails
Kaufpreis
3595000 €3.595.000 €
22.055,21 €/m²
Provision für Käufer
provisionsfrei
Weitere Preisinformationen
2 Stellplätze
Geschätzte Gesamtkosten
3.864.625 €1
Kaufpreis
3.595.000 €
Kaufnebenkosten
269.625 €
2
Notarkosten (1,5%)
53.925 €
Grunderwerbsteuer (5,5%)
197.725 €
Grundbucheintrag (0,5%)
17.975 €
1Der angezeigte Wert ist eine automatisch berechnete Schätzung von immowelt.
2Bei den Angaben handelt es sich um ortsübliche Werte. Individuelle Kosten können abweichen.
Lage
Ohlsdorf, Hamburg (22391)
Der Anbieter hat die genaue Adresse nicht freigegeben
Das Haus befindet sich in Hamburg Wellingsbüttel, einem attraktiven und grünen Stadtteil im Nordosten Hamburgs, der bekannt für seine hochwertige Einzelhausbebauung auf großzügigen, baumbestandenen Grundstücken ist. Wellingsbüttel bietet eine hervorragende Infrastruktur mit vielfältigen Versorgungsmöglichkeiten rund um den Ortskern, darunter Supermärkte, eine Bäckerei, eine Apotheke, Arztpraxen, Banken und gastronomische Angebote. Das nahegelegene Alstertal Einkaufszentrum erweitert das Angebot um umfassende Shoppingmöglichkeiten, Fitnessstudios und eine Vielzahl von Gastronomieoptionen. Dieses ist in etwa 5 Minuten mit dem Auto oder mit nur einer Station per S-Bahn erreichbar.
Der S-Bahnhof Wellingsbüttel (Linie S1) ist bequem zu Fuß in etwa 10 Minuten zu erreichen. Von dort gelangt man ohne Umsteigen in etwa 25 Minuten zum Hamburger Hauptbahnhof und in knapp 30 Minuten zum Jungfernstieg. Die Autobahn ist in rund 20 Minuten erreichbar, was die Lage auch für Pendler attraktiv macht. Für Vielreisende bietet der Flughafen, der in etwa 15 Minuten mit dem Auto erreichbar ist, einen zusätzlichen Vorteil.
Wellingsbüttel überzeugt zudem durch seine zahlreichen Bildungsangebote und Freizeitmöglichkeiten. Die Umgebung ist geprägt von Parks und Grünflächen, die zur Erholung und Freizeitgestaltung einladen.
Weitere Informationen
Stichworte
Stellplatz vorhanden, Rolladen, Nutzfläche: 103,00 m², Anzahl der Schlafzimmer: 4, Anzahl der Badezimmer: 2, Anzahl Terrassen: 1, Anzahl der Wohneinheiten: 1, Bundesland: HH, 2 Etagen
Sonstiges/Wohnen: Dachboden