Version: 8.24.0Navigation überspringen
9,50 €
355 m² Bürofläche
Immowelt logo

Bürofläche zur Miete
9,50 €
/m²
355 m² Bürofläche

Vielseitig nutzbare Bürofläche in Bremen-Hastedt

Kurzbeschreibung Vielseitig nutzbare Bürofläche in Bremen-Hastedt Objekt Dieses einladende Büro- und Geschäftshaus liegt in zentraler Lage von Bremen-Hastedt, nur wenige Schritte von der Stresemannstraße entfernt. Das gepflegte und hochwertige Gebäude aus dem Baujahr 1998 bietet ideale Voraussetzungen für erfolgreiches Arbeiten.

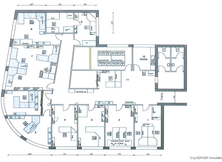
Die freie Bürofläche befindet sich im dritten Obergeschoss (linke Seite) und erstreckt sich über ca. 355 m² Fläche. Sie überzeugt durch ihre durchdachte Raumaufteilung, die aus sieben separaten Büroräumen, einem Großraumbüro, einem Besprechungsraum, einem Serverraum, einem Archiv, einer Küche mit Einbauküche sowie getrennten Damen- und Herren-WCs besteht. Ein Empfangstresen sorgt für einen professionellen Empfang Ihrer Kunden.

Große Fensterflächen sorgen für viel Tageslicht und eine freundliche Arbeitsatmosphäre. Die Räume sind mit allen notwendigen Anschlüssen ausgestattet und flexibel nutzbar, da die Trockenbauwände individuell angepasst werden können.

Teppichböden aus feuerfestem Kugelgarn bieten Komfort und Langlebigkeit, während Jalousien an den Südfenstern für optimalen Sonnenschutz sorgen.

Das Gebäude verfügt über einen Fahrstuhl und bietet die Möglichkeit, Tiefgaragenstellplätze nach Vereinbarung anzumieten. Außenwerbung kann ebenfalls angebracht werden, um Ihre Präsenz sichtbar zu machen.

Wir freuen uns auf Ihre Anfrage!

Merkmale

  • Bezug: nach Vereinbarung
  • 4. Geschoss
  • Personenaufzug
  • Keller
  • 2 Stellplätze: 2 Außen-Stellplätze
  • Gäste-WC
  • Bodenbelag: Teppich
- attraktives Büro-/Geschäftshaus
- Fahrstuhl
- 2 TG-Stellplätze - Anmietung nach Vereinbarung möglich
- Teppichboden aus feuerfestem Kugelgarn
- Trockenbauwände können individuell umgeplant/gestaltet werden
- Aktuelle Aufteilung: - 7 Büroräume, Großraumbüro, Besprechungsraum, Eingangs-/Empfangsbereich, Küche mit EBK, Archiv, Serverraum, Garderobe, WC's für Herren und Damen
- Jalousien an den Fenstern zur Südseite
- Anbringung Außenwerbung möglich
- Freie Flächen auch im EG/Lager

Umbaumaßnahmen sind nach Absprache möglich. Der Mietpreis ist abhängig von der jeweiligen Nutzung und
gewünschten Umbauten.

Grundrisse

Grundrisse
1 / 1

Virtueller Rundgang

3D tour

Realisiere Dein Projekt

Bausubstanz und Energie

Der Anbieter hat keine Informationen zum Energieverbrauch bereit gestellt.
  • Baujahr1998
Immowelt logo

Mietkosten

Warmmiete
3.905 €
Nettomiete
9,50 €/m²
3.372,50 €
Nebenkosten
532,50 €
Heizkosten
in Warmmiete enthalten
Provision für Mieter
2,38
Nettogrundmieten inkl. der gesetzlichen MwSt.
Kaution
keine Angabe
Weitere Preisinformationen
2 Stellplätze
Nettokaltmiete: 3.372,50 EUR

Lage

address-icon
HastedtBremen (28207)
Der Anbieter hat die genaue Adresse nicht freigegeben
Das Büro- und Geschäftshaus befindet sich zentral in Hastedt, Ecke Ludwig-Quidde-Straße/Emil-von-Behring-Straße, unweit der Stresemannstraße. Die Anbindung an die Bremer City und den Bahnhof ist optimal. Ebenso die Anbindung an den ÖPNV und an die BAB. Öffentliche Parkplätze sind ausreichend vorhanden.

Weitere Informationen

Stichworte Wohnfläche: 355,00 m²

Weitere Services

Lust auf eine Besichtigung?
Eine Frage zur Immobilie?
Nachricht hinzufügen
Mit der Nutzung der oben angegebenen Telefonnummer oder durch Klicken auf „Kontaktieren“ akzeptierst Du die Allgemeinen Nutzungsbedingungen, denen Du jederzeit widersprechen kannst. Weitere Informationen zum Datenschutz

Über den Anbieter

Elisabethstr. 120, 28217 Bremen
partner badge
Partnerschaft
Frau Sarah SchumacherDein Kontakt
Online-ID: 2hy6u5u
Referenznummer: VW239
BERGER 1A IMMOBILIEN GmbH & Co. KG
BERGER 1A IMMOBILIEN GmbH & Co. KG
Nachricht hinzufügen
Mit der Nutzung der oben angegebenen Telefonnummer oder durch Klicken auf „Kontaktieren“ akzeptierst Du die Allgemeinen Nutzungsbedingungen, denen Du jederzeit widersprechen kannst. Weitere Informationen zum Datenschutz
Wie zufrieden bist du mit dieser Seite (nicht mit der Immobilie selbst)?