Version: 8.25.1Navigation überspringen
135.000 €
264 m²  •  2.446 m² Grundstück
Immowelt logo

Bungalow zum Kauf
135000 €
511 €/m²
264 m²  •  2.446 m² Grundstück

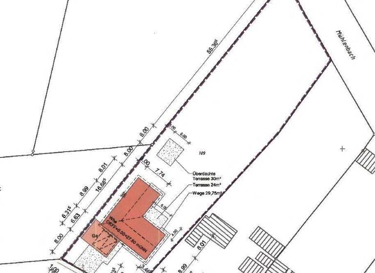
Idyllisches Baugrundstück am Mühlenbach – mit genehmigtem Bungalow & bereits erstellter Bodenplatte

In Bergen (Dumme), OT Jiggel, steht dieses wunderschön gelegene Grundstück mit 2.446 m² zum Verkauf. Die Lage direkt am Mühlenbach bietet eine seltene Kombination aus Naturidylle, Ruhe und optimalen Voraussetzungen für den Bau eines großzügigen Einfamilienhauses.

Bereits genehmigt: Moderner Bungalow mit Ausbaureserve im Dachgeschoss
Bereits gebaut: Hausgründung (Sandplatte, Fundamente und Betonplatte). Baustrom und Bauwasser vorhanden.

Für das Grundstück liegt eine Baugenehmigung für einen großzügigen Bungalow mit ca. 170 m² Wohnfläche im Erdgeschoss vor. Zusätzlich besteht eine Ausbaureserve im Dachgeschoss (ca. 85 m2)

WICHTIGE HINWEISE:
•Bautenstand: Es handelt sich um ein bereits genehmigtes Bauprojekt. Die Fundamente sind bereits erstellt, sodass die Bauphase direkt fortgesetzt werden kann.
•Kaufpreis: Der Preis von 135.000 € beinhaltet das Grundstück, die Baugenehmigung sowie die bereits erbrachten Gründungsarbeiten (Fundamente).
•Herstellungskosten: Eine detaillierte Kalkulation der weiteren Herstellungskosten für die Fertigstellung des Hauses erläutern wir Ihnen gerne individuell in einem persönlichen Beratungsgespräch.

Merkmale

  • 2.446 m² Grundstück
  • Terrasse
  • Garten
  • 4 Stellplätze: Garage
Die geplante Raumaufteilung:
•Großzügiges Wohnzimmer
•Küche mit viel Platz
•Elternschlafzimmer mit Ankleide
•2 Kinderzimmer
•2 Bäder
•Geschosstreppe für den DG Ausbau vorgesehen
•Leben auf einer Ebene ohne Barierren
Nebengebäude & Außenflächen
•Doppelgarage mit ca. 50 m², ideal als Abstellfläche oder Werkstatt
•Terrasse am Haus sowie zusätzliche Terrasse im Garten
•Großzügiges, naturbelassenes Grundstück mit viel Gestaltungspotenzial
Bereits erledigte Bauleistungen:
•Sandplatte und Gründung (Fundamente + Betonplatte) sind fertiggestellt
•Baustrom und Bauwasser sind vorhanden
•Geschossdecke als Betondecke geplant
Besonderheiten
•Traumhafte Lage am Mühlenbach
•Großes Grundstück (2.446 qm) für Gartenliebhaber, Tierhaltung oder naturnahes Wohnen
•Sofortiger Baustart möglich, da wesentliche Vorarbeiten abgeschlossen sind
---------------------------------------------------------------
Sie haben noch nie gebaut?
Kein Problem – wir begleiten Sie zuverlässig von der ersten Idee bis zum fertigen Zuhause. Mit einem erfahrenen Team an Ihrer Seite erhalten Sie individuelle Planung, transparente Abläufe und eine hochwertige Bauausführung. So entsteht Ihr neues Einfamilienhaus Schritt für Schritt, gut betreut und sicher umgesetzt.
---------------------------------------------------------------
Energie
Energieausweis kann nach Fertigstellung erstellt werden
•Außenmauerwerk dreischalig 47 cm (Innenwand, Kerndämmung, Verblend)
•Wärmepumpe mit Fußbodenheizung. Energieträger Strom.
•Fenster mit 3-facher Verglasung

Grundrisse

Grundrisse
1 / 4

Realisiere Dein Projekt

Bausubstanz und Energie

Energieausweis

Ein Energieausweis ist für diesen Gebäudetyp nicht notwendig.
  • Baujahr2026
  • Zustand der ImmobilieNeubau
  • HeizungsartZentralheizung: Fußbodenheizung
  • EnergieträgerElektro, Luft-/Wasser-Wärmepumpe
Immowelt logo

Preisdetails

Kaufpreis
135000 €
511,36 €/m²
Provision für Käufer
Provision für Käufer 3,57 Prozent inkl. MwSt.
Geschätzte Gesamtkosten
149.269 €1
Kaufpreis
135.000 €
Notarkosten (1,5%)
2.025 €
Grunderwerbsteuer (5%)
6.750 €
Provision für Käufer (3,57%)
4.819 €
Grundbucheintrag (0,5%)
675 €
1Der angezeigte Wert ist eine automatisch berechnete Schätzung von immowelt.
2Bei den Angaben handelt es sich um ortsübliche Werte. Individuelle Kosten können abweichen.

Lage

address-icon
JiggelBergen an der Dumme (29468)
Der Anbieter hat die genaue Adresse nicht freigegeben
Das Grundstück befindet sich in Bergen (Dumme, PLZ 29468), im idyllischen Ortsteil Jiggel, einer kleinen, ruhigen Dorflage inmitten der Natur. Die Umgebung ist geprägt von weitläufigen Wiesen, Feldern und kleinen Wasserläufen – ideal für alle, die ein naturnahes und entspanntes Wohnumfeld schätzen.

Jiggel bietet eine angenehme Mischung aus ländlicher Ruhe und guter Erreichbarkeit: Die umliegenden Ortschaften mit Einkaufsmöglichkeiten, Schulen, Ärzten und weiteren Einrichtungen sind in wenigen Minuten erreichbar. Die Nähe zur Dumme und zum Mühlenbach verleiht der Lage einen besonderen Charme und macht das Grundstück zu einem idealen Ausgangspunkt für Spaziergänge, Radfahren oder einfach zum Genießen der Natur.

Durch die ruhige Seitenlage ohne Durchgangsverkehr eignet sich der Standort perfekt für Familien, Naturliebhaber oder Bauherren, die ein großzügiges Grundstück in friedvoller Umgebung suchen.

Weitere Informationen

Sonstiges Weitere Informationen:
•Provision: für Käufer 3,57 Prozent (inkl. MwSt.) vom Kaufpreis des Grundstücks
•Besichtigungstermine nach Vereinbarung.
•Zwischenverkauf und Irrtümer vorbehalten.
•Hinweis: Alle Angaben wurden nach bestem Wissen zusammengestellt und dienen ausschließlich der Information. Verbindlich sind ausschließlich die Inhalte des späteren notariellen Kaufvertrags.
---------------------------------------------------------------
Sie haben eine Immobilie zu verkaufen oder zu vermieten? Gerne unterstützen wir Sie dabei!

Vereinbaren Sie jetzt einen Beratungstermin und informieren Sie sich über die umfassenden Dienstleistungen unseres Maklerunternehmens. Von der Marktanalyse und Bewertung Ihrer Immobilie über die Erstellung und Präsentation von Verkaufsunterlagen bis hin zur Durchführung von Besichtigungen und der Unterstützung bei Verhandlungen – wir begleiten Sie professionell durch den gesamten Verkaufsprozess

Weitere Services

Lust auf eine Besichtigung?
Eine Frage zur Immobilie?
Nachricht hinzufügen
Mit der Nutzung der oben angegebenen Telefonnummer oder durch Klicken auf „Kontaktieren“ akzeptierst Du die Allgemeinen Nutzungsbedingungen, denen Du jederzeit widersprechen kannst. Weitere Informationen zum Datenschutz

Über den Anbieter

Memeler Straße 28, 21337 Lüneburg
Paul SeibelDein Kontakt
Online-ID: 266W2K64YLRJ
Referenznummer: 0216H-2026
Seibel Immobilien GbR
Seibel Immobilien GbR
Bewertung: 4,2 von 5 Sternen
Nachricht hinzufügen
Mit der Nutzung der oben angegebenen Telefonnummer oder durch Klicken auf „Kontaktieren“ akzeptierst Du die Allgemeinen Nutzungsbedingungen, denen Du jederzeit widersprechen kannst. Weitere Informationen zum Datenschutz
Wie zufrieden bist du mit dieser Seite (nicht mit der Immobilie selbst)?