




1 / 11



1 / 11

Verkaufsfläche zur Miete1.190 €2 Zimmer • 78 m² Verkaufsfläche
1.190 €
2 Zimmer • 78 m² Verkaufsfläche
GELEGENHEIT! Attraktives Ladenlokal in Bestlage | 78qm2 | KUNDENSTROM VOR DER TÜR!
1 AAA Lage - Kundenstrom vor der Tür: Repräsentative Verkaufs- u. Ausstellungsfläche in absoluter Bestlage von Heide!
OBJEKTBESCHREIBUNG
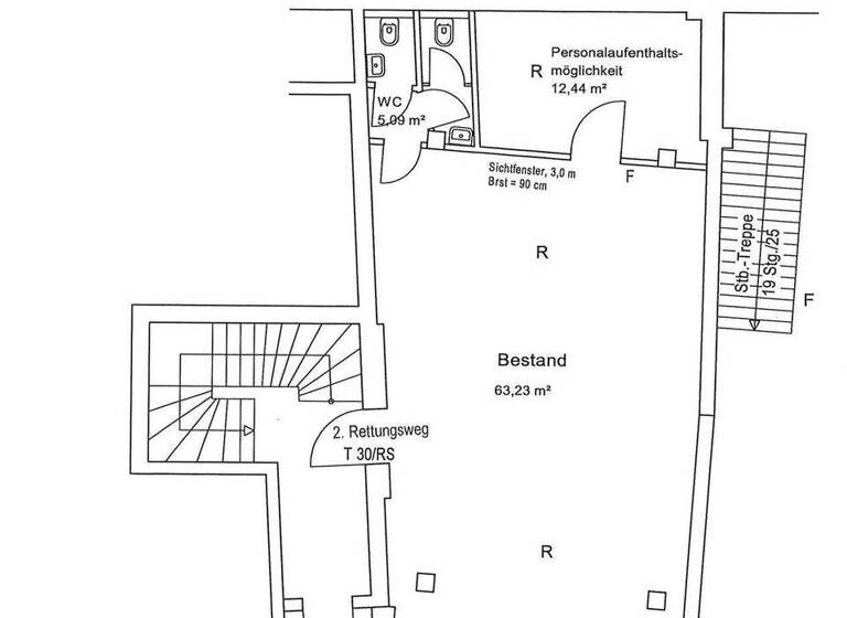
Diese moderne und gepflegte Gewerbeimmobilie gibt Ihnen auf insgesamt ca. 90 Quadratmetern Fläche (davon ca. 64 Quadratmeter Verkaufs- und Ausstellungsfläche, 12 Quadratmeter Lager- Personalraum, ca. 5 Quadratmeter Damen- und Herren-WC plus einer weiteren Lagerfläche von ca. 9 Quadratmetern im Kellergeschoss) viel Platz zur Verwirklichung Ihres Geschäftskonzepts. Die Gesamtfläche verteilt sich auf das Erdgeschoss sowie zu einem kleinen Teil auf das Kellergeschoss. Über den Haupteingang mit großzügiger, vorderseitiger Fensterfront erschließen sich der Haupt-Verkaufs- und Ausstellungsräume des Erdgeschosses. Die Immobilie wurde konsequent gepflegt; eine moderne, individuelle Brennwerttechnik-Heizung gehört selbstverständlich zur Ausstattung.
UNSER FAZIT: Die angebotene Gewerbeimmobilie präsentiert sich als ideale Plattform für die Verwirklichung Ihrer Geschäftsideen. Mit großzügigen Verkaufs- und Ausstellungsflächen, moderner Ausstattung und einer ansprechenden Lage bietet sie optimale Bedingungen für den Erfolg Ihres Unternehmens. Zögern Sie nicht, uns für weitere Informationen oder eine Besichtigung zu kontaktieren. Eine Besichtigung dieser vakanten Einheit lohnt sich definitiv!
OBJEKTBESCHREIBUNG
Diese moderne und gepflegte Gewerbeimmobilie gibt Ihnen auf insgesamt ca. 90 Quadratmetern Fläche (davon ca. 64 Quadratmeter Verkaufs- und Ausstellungsfläche, 12 Quadratmeter Lager- Personalraum, ca. 5 Quadratmeter Damen- und Herren-WC plus einer weiteren Lagerfläche von ca. 9 Quadratmetern im Kellergeschoss) viel Platz zur Verwirklichung Ihres Geschäftskonzepts. Die Gesamtfläche verteilt sich auf das Erdgeschoss sowie zu einem kleinen Teil auf das Kellergeschoss. Über den Haupteingang mit großzügiger, vorderseitiger Fensterfront erschließen sich der Haupt-Verkaufs- und Ausstellungsräume des Erdgeschosses. Die Immobilie wurde konsequent gepflegt; eine moderne, individuelle Brennwerttechnik-Heizung gehört selbstverständlich zur Ausstattung.
UNSER FAZIT: Die angebotene Gewerbeimmobilie präsentiert sich als ideale Plattform für die Verwirklichung Ihrer Geschäftsideen. Mit großzügigen Verkaufs- und Ausstellungsflächen, moderner Ausstattung und einer ansprechenden Lage bietet sie optimale Bedingungen für den Erfolg Ihres Unternehmens. Zögern Sie nicht, uns für weitere Informationen oder eine Besichtigung zu kontaktieren. Eine Besichtigung dieser vakanten Einheit lohnt sich definitiv!
Merkmale
- frei ab sofort
- Erdgeschoss
- Bodenbelag: Kunststoff
- Beleuchtung: Deckenbeleuchtung
- Fenster: Kunststoff
- 6 m Schaufensterfront
. 1-geschossiges Geschäftsgebäude in attraktiver Fussgängerzone.
. separater Eingang.
. 64qm2 Verkaufs- und Ausstellerfläche mit viel Schaufensterflächen.
. Lagerfläche.
. GAS - Zentralheizung, Bj. 2023
. sep. WC-Einheiten (Damen- und Herren-WC vorhanden.)
Verfügbar/Übergabe: ab SOFORT möglich. Abschluss eines Mietvertrages mit einer Mindestlaufzeit von mindestens 3 Jahren.
Die Immobilie präsentiert sich in einem durchgehend gepflegten Zustand und ist mit moderner Brennwerttechnik-Heizung ausgestattet, die sowohl Effizienz als auch Individualität gewährleistet. Der Haupteingang überzeugt durch eine großzügige, vorderseitige Fensterfront, die die Haupt-Verkaufs- und Ausstellungsräume im Erdgeschoss optimal in Szene setzt.
. separater Eingang.
. 64qm2 Verkaufs- und Ausstellerfläche mit viel Schaufensterflächen.
. Lagerfläche.
. GAS - Zentralheizung, Bj. 2023
. sep. WC-Einheiten (Damen- und Herren-WC vorhanden.)
Verfügbar/Übergabe: ab SOFORT möglich. Abschluss eines Mietvertrages mit einer Mindestlaufzeit von mindestens 3 Jahren.
Die Immobilie präsentiert sich in einem durchgehend gepflegten Zustand und ist mit moderner Brennwerttechnik-Heizung ausgestattet, die sowohl Effizienz als auch Individualität gewährleistet. Der Haupteingang überzeugt durch eine großzügige, vorderseitige Fensterfront, die die Haupt-Verkaufs- und Ausstellungsräume im Erdgeschoss optimal in Szene setzt.
Grundrisse
Grundrisse
1 / 1
Bausubstanz und Energie
Energieausweis
Endenergieverbrauch (Wärme)
- Baujahr1913
- HeizungsartZentralheizung
- EnergieträgerGas
Mietkosten
Nettomiete
1.190 €
Nebenkosten
195 €
Heizkosten
nicht in Nebenkosten enthalten
Provision für Mieter
Zwei Netto-Kaltmieten zzgl. MwSt. nach erfolgreicher Vermittlung.
Kaution
drei Netto-Kaltmieten zzgl. MwSt.
Lage

Heide (25746)
Der Anbieter hat die genaue Adresse nicht freigegeben
1A-Lage
Lage? PERFEKT. Die Gewerbeimmobilie befindet sich in der pulsierenden Herzmitte von Heide, direkt in der Fußgängerzone. Diese erstklassige Lage garantiert eine hohe Fußgängerfrequenz und maximale Sichtbarkeit für Ihr Geschäft. Die zentrale Position ermöglicht es potenziellen Kunden, mühelos auf Ihre Verkaufs- und Ausstellungsräume zuzugreifen, während die großzügige Fensterfront die Aufmerksamkeit der Passanten auf sich zieht. Die Fußgängerzone von Heide ist nicht nur ein Einkaufsziel für Einheimische, sondern auch für Besucher der Stadt. Die lebendige Atmosphäre und die Vielfalt der umliegenden Geschäfte schaffen eine attraktive Umgebung, die den Erfolg Ihres Unternehmens zusätzlich fördert. Mit dieser erstklassigen Lage positionieren Sie sich inmitten des geschäftigen Treibens und profitieren von der hervorragenden Erreichbarkeit für Kunden und Gäste. Heide, die Hauptstadt des Kreises Dithmarschen und die "Marktstadt im Nordseewind", präsentiert eine strategisch günstige Lage mit einer einzigartigen Mischung aus Tradition und Moderne.
"Die wirtschaftliche Landschaft von Heide steht vor erheblichem Wachstum, angetrieben durch bedeutende Investitionen. Mit Unterstützung von Bund und Land treibt der schwedische Konzern Northvolt den Bau einer großen Batteriezellenfabrik für Elektroautos in Heide voran. Diese monumentale Investition wird einen signifikanten wirtschaftlichen Aufschwung bringen und 4.500 direkte Arbeitsplätze in Heide sowie Tausende weitere in den umliegenden Industrie- und Dienstleistungssektoren schaffen."
Heide verfügt über eine hervorragende Infrastruktur mit allen wesentlichen Annehmlichkeiten, exzellenten Gesundheitseinrichtungen und zahlreichen Freizeitmöglichkeiten. Die Stadt mit 22.000 Einwohnern und einer reichen Geschichte gilt bereits jetzt als der "Place-to-be" in Dithmarschen und bietet Menschen jeden Alters eine hohe Lebensqualität. Die Nordsee ist in nur 20 Autominuten erreichbar, und Heide ermöglicht eine Nähe zur Natur, die in größeren Städten selten ist. Was anderswo herausfordernd sein könnte, gehört in Heide zum Alltag: Gelassenheit und eine ausgewogene Work-Life-Balance.
"Die wirtschaftliche Landschaft von Heide steht vor erheblichem Wachstum, angetrieben durch bedeutende Investitionen. Mit Unterstützung von Bund und Land treibt der schwedische Konzern Northvolt den Bau einer großen Batteriezellenfabrik für Elektroautos in Heide voran. Diese monumentale Investition wird einen signifikanten wirtschaftlichen Aufschwung bringen und 4.500 direkte Arbeitsplätze in Heide sowie Tausende weitere in den umliegenden Industrie- und Dienstleistungssektoren schaffen."
Heide verfügt über eine hervorragende Infrastruktur mit allen wesentlichen Annehmlichkeiten, exzellenten Gesundheitseinrichtungen und zahlreichen Freizeitmöglichkeiten. Die Stadt mit 22.000 Einwohnern und einer reichen Geschichte gilt bereits jetzt als der "Place-to-be" in Dithmarschen und bietet Menschen jeden Alters eine hohe Lebensqualität. Die Nordsee ist in nur 20 Autominuten erreichbar, und Heide ermöglicht eine Nähe zur Natur, die in größeren Städten selten ist. Was anderswo herausfordernd sein könnte, gehört in Heide zum Alltag: Gelassenheit und eine ausgewogene Work-Life-Balance.
Weitere Informationen
Sonstiges
MIETKONDITION
Die monatliche Miete für diese exklusive Gewerbeimmobilie beläuft sich auf 1.225,00 Euro. Die Mietkonditionen sehen eine Mietkaution in Höhe von drei Monatsmieten vor, die bei Vertragsabschluss zu entrichten ist. Dies sichert sowohl den Vermieter als auch den Mieter ab und schafft eine solide Grundlage für eine vertrauensvolle Zusammenarbeit. Die Mindestmietdauer beträgt 3 Jahre, wodurch langfristige Perspektiven für die Umsetzung Ihrer Geschäftsstrategie geschaffen werden. Diese Laufzeit ermöglicht Ihnen, das Potenzial der Lage voll auszuschöpfen und langfristige Kundenbindungen aufzubauen. Für eine transparente und faire Mietpreisentwicklung ist ein Staffelmietvertrag vorgesehen. Dieser beinhaltet klar definierte Erhöhungen, um eine nachhaltige Planbarkeit für beide Vertragsparteien zu gewährleisten. Diese Konditionen bieten eine solide Basis für eine erfolgreiche und langfristige Nutzung dieser attraktiven Gewerbeimmobilie. Bei Interesse oder weiteren Fragen stehen wir Ihnen gerne zur Verfügung.
PROVISION
Wir erlauben uns den Hinweis, dass wir bei provisionspflichtig gekennzeichneten Liegenschaften von Ihnen wie folgt honoriert werden. Bei Zustandekommen eines Mietvertrages erhalten wir vom Mieter eine Provision in Höhe von 2 Nettomonatsmieten zzgl. gesetzlich geltender MwSt. Als Nettomonatsmiete gilt die durchschnittliche Nettomonatsmiete aus der gesamten Vertragslaufzeit. Diese Provision ist verdient und fällig mit Zustandekommen des Mietvertrages. Mietpreise verstehen sich als Nettomietpreise, jeweils zzgl. Betriebskosten und der gesetzlich geltenden MwSt..
BESICHTIGUNG / SONSTIGES
Der Eigentümer sowie die Mieter legen einen großen Wert darauf, dass Besichtigungstermine ausschließlich über unser Haus abgestimmt werden. Bitte respektieren Sie diesen Wunsch und damit die Privatsphäre der anderen Mieter.
Mit unserer Vermittlungsaufgabe bieten wir Ihnen das bezeichnete Objekt und zugleich unsere Dienste als Makler an. Alle Angaben sind ohne Gewähr und basieren ausschließlich auf Informationen, die uns von unserem Auftraggeber übermittelt wurden. Wir übernehmen keine Gewähr für die Vollständigkeit, Richtigkeit und Aktualität dieser Angaben. Irrtum und Zwischenverkauf- bzw. vermietung vorbehalten. Stichworte Gesamtfläche: 85,00 m², Sonstige Fläche: 9,00 m², Bundesland: Schleswig-Holstein, modernisiert: 2021 Zustand: renoviert, gepflegt Sonstiges: EDV-Verkabelung, Getrennte Damen- und Herren-WCs
Die monatliche Miete für diese exklusive Gewerbeimmobilie beläuft sich auf 1.225,00 Euro. Die Mietkonditionen sehen eine Mietkaution in Höhe von drei Monatsmieten vor, die bei Vertragsabschluss zu entrichten ist. Dies sichert sowohl den Vermieter als auch den Mieter ab und schafft eine solide Grundlage für eine vertrauensvolle Zusammenarbeit. Die Mindestmietdauer beträgt 3 Jahre, wodurch langfristige Perspektiven für die Umsetzung Ihrer Geschäftsstrategie geschaffen werden. Diese Laufzeit ermöglicht Ihnen, das Potenzial der Lage voll auszuschöpfen und langfristige Kundenbindungen aufzubauen. Für eine transparente und faire Mietpreisentwicklung ist ein Staffelmietvertrag vorgesehen. Dieser beinhaltet klar definierte Erhöhungen, um eine nachhaltige Planbarkeit für beide Vertragsparteien zu gewährleisten. Diese Konditionen bieten eine solide Basis für eine erfolgreiche und langfristige Nutzung dieser attraktiven Gewerbeimmobilie. Bei Interesse oder weiteren Fragen stehen wir Ihnen gerne zur Verfügung.
PROVISION
Wir erlauben uns den Hinweis, dass wir bei provisionspflichtig gekennzeichneten Liegenschaften von Ihnen wie folgt honoriert werden. Bei Zustandekommen eines Mietvertrages erhalten wir vom Mieter eine Provision in Höhe von 2 Nettomonatsmieten zzgl. gesetzlich geltender MwSt. Als Nettomonatsmiete gilt die durchschnittliche Nettomonatsmiete aus der gesamten Vertragslaufzeit. Diese Provision ist verdient und fällig mit Zustandekommen des Mietvertrages. Mietpreise verstehen sich als Nettomietpreise, jeweils zzgl. Betriebskosten und der gesetzlich geltenden MwSt..
BESICHTIGUNG / SONSTIGES
Der Eigentümer sowie die Mieter legen einen großen Wert darauf, dass Besichtigungstermine ausschließlich über unser Haus abgestimmt werden. Bitte respektieren Sie diesen Wunsch und damit die Privatsphäre der anderen Mieter.
Mit unserer Vermittlungsaufgabe bieten wir Ihnen das bezeichnete Objekt und zugleich unsere Dienste als Makler an. Alle Angaben sind ohne Gewähr und basieren ausschließlich auf Informationen, die uns von unserem Auftraggeber übermittelt wurden. Wir übernehmen keine Gewähr für die Vollständigkeit, Richtigkeit und Aktualität dieser Angaben. Irrtum und Zwischenverkauf- bzw. vermietung vorbehalten. Stichworte Gesamtfläche: 85,00 m², Sonstige Fläche: 9,00 m², Bundesland: Schleswig-Holstein, modernisiert: 2021 Zustand: renoviert, gepflegt Sonstiges: EDV-Verkabelung, Getrennte Damen- und Herren-WCs
Weitere Services
Lust auf eine Besichtigung?
Eine Frage zur Immobilie?
Über den Anbieter
Gutenbergstraße 11, 21465 Reinbek
3 Jahre Partnerschaft
Kai BusseDein Kontakt
Online-ID: 268ABL7ETKSV
Referenznummer: Miete-Gewerbe-2026-102
Wie zufrieden bist du mit dieser Seite (nicht mit der Immobilie selbst)?
- Immobilie
- Exposé

