Träume werden wahr! Mehr Komfort, mehr Platz, inklusive Grundstück und Förderung
Werden Sie Schwabenhaus-Bauherr und bauen Sie Ihr maßgeschneidertes Traumhaus! Angeboten wird ein Baugrundstück, das zunächst direkt von privat erworben und anschließend mit Ihrem individuellen Traumhaus bebaut werden wird. Seit 1966 hat Schwabenhaus über 25.000 Hausträume realisiert und liefert seinen Bauherr schlüsselfertige, also zu 100% bezugsfertige Häuser sowie Häuser für den Selbstausbau - entsprechend Ihrer Wünsche, Bedürfnisse und Fähigkeiten. Alle Schwabenhäuser werden am Unternehmenssitz in Heringen in der bekannten Manufaktur-Qualität produziert und erhalten die einmalige 10/30 Jahre Gewährleistung.
Merkmale
381 m² Grundstück
Gäste-WC
Kurze Bauzeiten, innovative Haustechnik, attraktive Architektur und hochwertige Manufaktur-Qualität bietet Ihnen das angebotene Schwabenhaus im "Blue-Edition" All-Inclusive-Paket:
- Bodenplatte inklusive Effizienzhaus 55 Perimeter-Dämmung unterhalb der Bodenplatte sowie stirnseitig - Effizienzhaus 55 mit der Option zur Erweiterung auf Effizienzhaus 40 oder 40 Plus - Klima-Komfort-Bauweise - Zimmermannmäßiges Pfettendach - Photovoltaik-Vorbereitung für die Ausführung einer Photovoltaik-Anlage - Komplette Elektro-, Sanitär- und Heizungs-Installation inkl. Grundinstallation für das Schwabenhaus auf Schwabenhaus-Bodenplatte bzw. -Keller* - Zukunftsweisende Elektro-Installation* - Smart-Home-Technologie - Intelligentes Gebäude-Management für die Licht- und Rollladen-Steuerung*¹ - Elektrische Rollläden*¹ - Doppel-Wärmepumpe Eco+* für Heizen, Lüften, Kühlen, Luftreinigung und Warmwasser - Hochwertige, mehrschichtige Holz-Haustür in vielfältigen Design-Lösungen, mit Sicherheitsschließzylinder, 5-fach- Sicherheits-Verriegelung und 3-Scheiben-Wärmeschutzverglasung - Kunststoff-Fenster mit 3-Scheiben-Wärmeschutzverglasung - Dachflächenfenster mit Kipp- und Schwingfunktion sowie elektrischen Rollläden* - Massiv-Vollholz-Treppe - Protect Versicherungs-Paket mit Wohngebäudeversicherung inkl. Elementarschutz, Haus- und Wohnungs-Schutzbrief, Bauleistungsversicherung und Bauherren-Haftpflichtversicherung sowie Job-Protect Versicherungs-Paket - 10 sowie 30 Jahre Gewährleistung
*Ab Ausbaustufe "Fast-Vollendet"
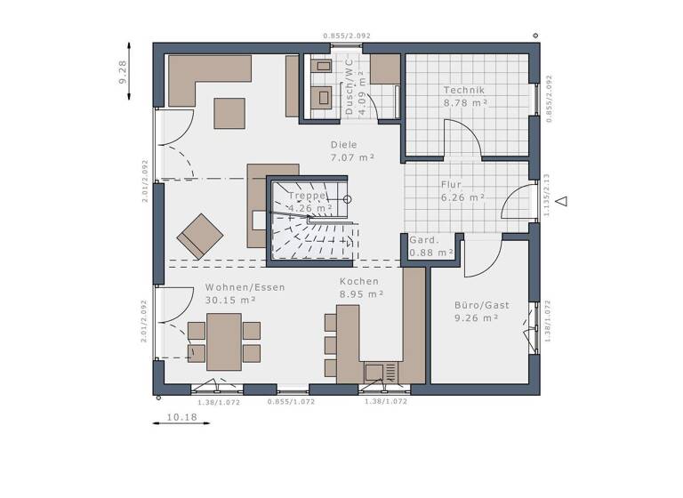
Grundrisse
Grundrisse
1 / 1
Bausubstanz und Energie
Möchtest du Details zum Energieverbrauch?
Zustand der ImmobilieNeubau, Projektiert
HeizungsartFußbodenheizung
Preisdetails
Kaufpreis
561500 €561.500 €
3.553,80 €/m²
Provision für Käufer
provisionsfrei
Geschätzte Gesamtkosten
600.806 €1
Kaufpreis
561.500 €
Kaufnebenkosten
39.306 €
2
Notarkosten (1,5%)
8.423 €
Grunderwerbsteuer (5%)
28.075 €
Grundbucheintrag (0,5%)
2.808 €
1Der angezeigte Wert ist eine automatisch berechnete Schätzung von immowelt.
2Bei den Angaben handelt es sich um ortsübliche Werte. Individuelle Kosten können abweichen.
Lage
Grabenstetten (72582)
Der Anbieter hat die genaue Adresse nicht freigegeben
Bitte senden Sie uns eine schriftliche Anfrage über den Button "Anbieter kontaktieren", wir werden Sie in den nächsten Tagen telefonisch kontaktieren. Deshalb achten Sie bei Ihrer Anfrage bitte auf Vollständigkeit, insbesondere auf die Angabe einer Telefonnummer.
Anfragen, die sich nur auf die genaue Lage des Grundstücks beziehen, werden nicht beantwortet.
Weitere Informationen
Sonstiges
Vereinbaren Sie einen persönlichen Beratungstermin, um über Ihren Haustraum und das angebotene Objekt zu sprechen. Bitte beachten Sie, dass die dargestellten Bilder und Grundrisse nur beispielhaft sind und unter Umständen Sonderbauteile enthalten, die nicht im aufgerufenen Preis inkludiert sind.
Haben Sie außerdem Verständnis dafür, dass erst nach dem persönlichen Gespräch weitere Details zu dem angebotenen Grundstück bekanntgegeben werden und dass nur vollständige Anfragen bearbeitet werden können.
Anbauteile, Carport, Garage und Keller können Extras sein, die als Sonderausstattung angeboten werden. Abbildungen, Grundrisse und Flächenangaben sind beispielhaft und können Extras zeigen. Flächenangaben nach DIN 277.
Anbauteile, Carport, Garage und Keller können Extras sein, die als Sonderausstattung angeboten werden. Abbildungen, Grundrisse und Flächenangaben sind beispielhaft und können Extras zeigen. Flächenangaben nach DIN 277.
Profitieren Sie jetzt von der Schwabenhaus Online Beratung und verwirklichen Sie Ihr Traumhaus https://www.schwabenhaus.de/anmeldung-hausbau-beratung-online/
Stichworte
Anzahl der Schlafzimmer: 4, Anzahl der Badezimmer: 1, Anzahl der separaten WCs: 1