Version: 8.26.0Navigation überspringen
165.000 €
3 Zimmer  •  75 m²  •  400 m² Grundstück
Immowelt logo

Einfamilienhaus zum Kauf • provisionsfrei
165000 €
2.200 €/m²
3 Zimmer  •  75 m²  •  400 m² Grundstück

Luxe 4-persoons vakantiewoning van 57 m2 Cube maximaal (1613)

Luxus und Komfort innen und außen - dafür steht dieses 4-Personen-Ferienhaus. Darüber hinaus ist das Haus mit einer Klimaanlage im Wohnzimmer ausgestattet und Heizung und Warmwasser werden mit einer Wärmepumpe und einem Kombikessel geregelt. Sowohl innen als auch außen wurden wartungsfreundliche Materialien verwendet. Geräumiges Wohnzimmer mit moderner Küche, 2 Schlafzimmer mit Stauraum und Badezimmer. Auch der Innenlagerraum ist beim Cube Maximum 57m2 ein Extra. Es ist auch verhandelbar, dass das Los gekauft werden kann!

Wohnzimmer
Helles Wohnzimmer mit Klimaanlage und offener Küche, Schiebetüren zu Terrassen.

Küche
Helle offene Küche bestehend aus einer Küchenzeile und allen notwendigen Küchenutensilien und Geräten, wie Kombi-Mikrowelle, Geschirrspüler und großem Kühlschrank.

Schlafzimmer 1
Hauptschlafzimmer hat einen Schrank.

Schlafzimmer 2
zweites Schlafzimmer mit 2 Betten und direktem Zugang zum Badezimmer

Badezimmer
Badezimmer mit Waschbecken und Dusche mit Schiebetür

Beschreibung des Parks
Eingebettet zwischen dem IJssel-Tal, dem Nationalpark Hoge Veluwe und Achterhoek liegt EuroParcs Marina Strandbad. Am Ufer der IJssel und in der Nähe gemütlicher Hansestädte wie Deventer, Zutphen, Doesburg und Bronkhorst, der ältesten Stadt der Niederlande. Ruhe, Weite und Natur vereinen sich hier. Der ideale Ort, um einen wohlverdienten Urlaub zu genießen!

Merkmale

  • 400 m² Grundstück
  • Einbauküche
  • Terrasse

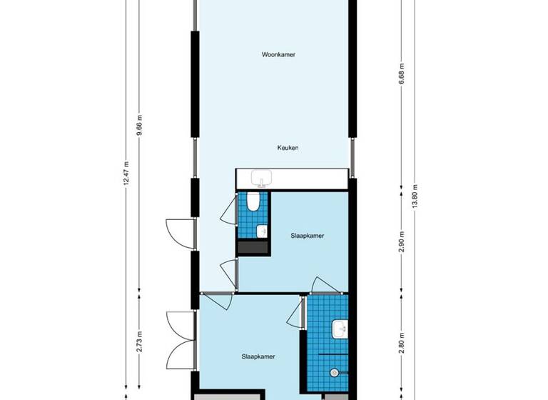
Grundrisse

Grundrisse
1 / 1

Bausubstanz und Energie

Möchtest du Details zum Energieverbrauch?info_energy_calculation-icon
  • Baujahr2020
  • Zustand der ImmobilieAltbau (bis 1945)
Immowelt logo

Preisdetails

Kaufpreis
165000 €
2.200 €/m²
Provision für Käufer
provisionsfrei

Lage

address-icon
Pipeluurseweg 8Olburgen (7225ND)

Weitere Informationen

Stichworte Anzahl der Schlafzimmer: 2, Anzahl Terrassen: 1

Weitere Services

Lust auf eine Besichtigung?
Eine Frage zur Immobilie?
Nachricht hinzufügen
Mit der Nutzung der oben angegebenen Telefonnummer oder durch Klicken auf „Kontaktieren“ akzeptierst Du die Allgemeinen Nutzungsbedingungen, denen Du jederzeit widersprechen kannst. Weitere Informationen zum Datenschutz

Über den Anbieter

Galgeweg 1, 4306NJ NIEUWERKERK
partner badge
6 Jahre Partnerschaft
Fulco HoekseweverDein Kontakt
Keine Telefonnummer hinterlegt
Keine Telefonnummer hinterlegt
Online-ID: 232Z8JNJ22AH
Referenznummer: 138#7SRVBU
Wie zufrieden bist du mit dieser Seite (nicht mit der Immobilie selbst)?