Version: 8.24.0Navigation ĂĽberspringen
MĂĽller & Bucher Immobilien-Treuhand GmbH
Mietkosten auf Anfrage
130,9 m² Bürofläche

Bürofläche zur Miete
Mietkosten auf Anfrage
130,9 m² Bürofläche

Büro-/Praxisflächen in bester Lage in 74223 Flein (Objekt 059/32)

Zur Vermietung steht eine attraktive Büro-/Praxisfläche mit ca. 130,88m² im 1. Obergeschoss eines gepflegten Wohn- und Geschäftshauses.

Die Fläche verfügt über eine moderne Ausstattung inkl. einer Teeküche.

Dem Objekt sind 2 Stellplätze zugeordnet, weitere Parkmöglichkeiten befinden sich in der Umgebung und am Objekt.

Merkmale

  • Bezug: Nach Vereinbarung
  • 1. Geschoss
  • TeekĂĽche
  • 2 Stellplätze: AuĂźen-Stellplatz

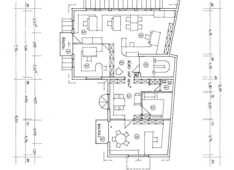
Grundrisse

Grundrisse
1 / 1

Realisiere Dein Projekt

Bausubstanz und Energie

Der Anbieter hat keine Informationen zum Energieverbrauch bereit gestellt.
  • Zustand der ImmobilieGepflegt
MediumRectangleTop

Mietkosten

Miete auf Anfrage
Provision fĂĽr Mieter
4 Monatsmieten zzgl. der gesetzlichen MwSt.
Kaution
keine Angabe

Lage

address-icon
Flein (74223)
Der Anbieter hat die genaue Adresse nicht freigegeben
Die Büro-/Praxisflächen befindet sich in Flein, direkt an der viel frequentierten Heilbronner Straße. Die zentrale Lage sorgt für eine hohe Kundenfrequenz und ist sowohl mit dem Auto als auch mit öffentlichen Verkehrsmitteln bestens erreichbar. In der Umgebung befinden sich zahlreiche Geschäfte, Gastronomiebetriebe und Dienstleister, die zusätzliche Laufkundschaft generieren.

Weitere Informationen

Besichtigungstermine Nur nach vorheriger Terminabsprache. Stichworte Sonstiges: Getrennte Damen- und Herren-WCs

Weitere Services

Lust auf eine Besichtigung?
Eine Frage zur Immobilie?
Nachricht hinzufĂĽgen
Mit der Nutzung der oben angegebenen Telefonnummer oder durch Klicken auf „Kontaktieren“ akzeptierst Du die Allgemeinen Nutzungsbedingungen, denen Du jederzeit widersprechen kannst. Weitere Informationen zum Datenschutz

Ăśber den Anbieter

Moltkestr 10, 74072 Heilbronn
partner badge
Partnerschaft
Herr Thomas BucherDein Kontakt

Weitere Unterlagen

Online-ID: 2mvkd5q
Referenznummer: 059/32
MĂĽller & Bucher Immobilien-Treuhand GmbH
MĂĽller & Bucher Immobilien-Treuhand GmbH
Bewertung: 2,7 von 5 Sternen
Nachricht hinzufĂĽgen
Mit der Nutzung der oben angegebenen Telefonnummer oder durch Klicken auf „Kontaktieren“ akzeptierst Du die Allgemeinen Nutzungsbedingungen, denen Du jederzeit widersprechen kannst. Weitere Informationen zum Datenschutz
MediumRectangleTop
MediumRectangleBottom
MediumRectangleTop
Wie zufrieden bist du mit dieser Seite (nicht mit der Immobilie selbst)?