Dr. Kraus Immobilien

Herr Andre Kraus

*** Moderne Praxis-/ Bürofläche im Herzen von Cadolzburg ***

€ 289.000
Kaufpreis
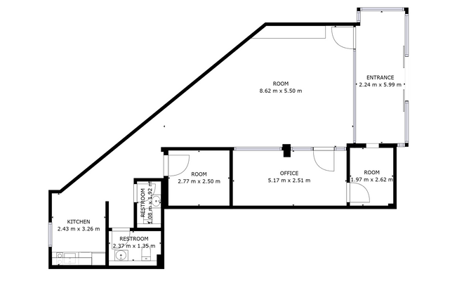
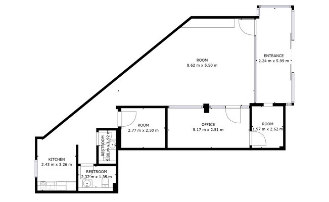
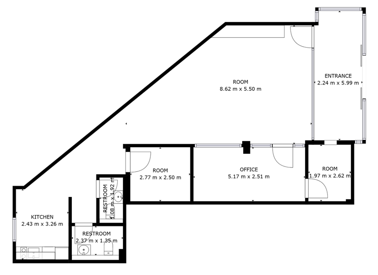
110 m²
Bürofläche ca.
k.A.
Teilbare Fläche
4
Zimmer

Der Anbieter dieses Objekts hat gegenüber der AVIV Germany GmbH als Betreiber dieses Online-Marktplatzes erklärt, nicht als Unternehmer im Sinne des § 1 KSchG zu handeln. Die im Verbraucherschutzrecht der Union verankerten Verbraucherrechte (insbesondere Informationspflichten und Rücktritts- bzw. Widerrufsrechte) finden auf den Vertrag zwischen dem Anbieter des Objekts und Ihnen (dem Interessenten) keine Anwendung.

Gewerblicher Anbieter

Der Anbieter dieses Objekts hat gegenüber der AVIV Germany GmbH als Betreiber dieses Online-Marktplatzes erklärt, als Unternehmer im Sinne des § 1 KSchG zu handeln.

AdresseStraße nicht freigegeben
90556 Cadolzburg 
Auf Karte ansehen

Preise & Kosten

Kaufpreis € 289.000

Provision für Käufer

3,57%
Die Provision für den Käufer beträgt 3,57% inkl. MwSt. des beurkundeten Kaufpreises.

Lage

Die Gewerbeeinheit befindet sich in bester zentraler Lage im charmanten Ortskern von Cadolzburg und vereint modernes Arbeiten mit historischem Flair. Unweit des Zugangs zum historischen Teil der Stadt gelegen, profitiert die Umgebung von einer gewachsenen Struktur und einer lebendigen Atmosphäre. Das nahegelegene Burgviertel...

Mehr anzeigen

Büro-/Praxisfläche

Kategorie

Praxis

Baujahr

2016

Bezug

Nach Absprache

  • Personenaufzug

Details

Objektbeschreibung

Zum Verkauf steht eine moderne und lichtdurchflutete Gewerbeeinheit im Erdgeschoss einer der neuesten Gewerbeimmobilien im Zentrum von Cadolzburg. Die offene Bauweise mit einer großzügigen Glasfront schafft eine einladende und freundliche Atmosphäre, die Kunden zum Eintreten animiert. Die Einheit verfügt über einen...

Mehr anzeigen

Weitere Informationen

Sonstiges
Virtueller Rundgang
Für diese Wohnung besteht die Möglichkeit eines virtuellen 360° Rundgangs. Bitte kontaktieren Sie uns um die Zugangsdaten hierfür zu erhalten.

Besichtigungstermine
Einzelbesichtigungstermine finden nach individueller Terminvereinbarung statt.

Stichworte
Parkhaus...

Mehr anzeigen

Anbieter der Immobilie

Dr. Kraus Immobilien

Buchenstr. 22, 90556 Seukendorf

Geschäftszeiten
user

Herr Andre Kraus

Dein Ansprechpartner

Anbieter-Website Anbieter-Profil Anbieter-Impressum

Online-ID: 2lcsa5m

Referenznummer: 3128918

Finde Angebote wie dieses

imageimageimage

Hier geht es zu unserem Impressum, den Allgemeinen Geschäftsbedingungen, den Hinweisen zum Datenschutz und nutzungsbasierter Online-Werbung.