Version: 8.25.1Navigation überspringen
1.300 €
3 Zimmer  •  106 m²  •  628 m² Grundstück
Immowelt logo

Doppelhaushälfte zur Miete
1.300 €
3 Zimmer  •  106 m²  •  628 m² Grundstück

Gepflegte Doppelhaushälfte mit Einbauküche und großem Garten in Ottersleben.

Diese gepflegte Doppelhaushälfte in Magdeburg/Ottersleben (Baujahr 1930) bietet auf ca. 106,03 m² Wohnfläche, verteilt auf zwei Etagen, ein solides und ordentliches Zuhause für Mieter, die Wert auf ein sauberes und renoviertes Wohnumfeld legen - ohne Luxus, dafür mit praktischem Zuschnitt und viel Potenzial im Außenbereich.

Das Haus ist sofort verfügbar und eignet sich ideal für eine Familie mit einem Kind. Der Eigentümer wünscht sich langfristige Mieter.

Die Immobilie verfügt über insgesamt 3 Zimmer.

Das Gebäude ist massiv gebaut und vollständig unterkellert. Beheizt wird es über eine Öl-Heizung. In den Wohnräumen ist Laminat verlegt, während Eingangsbereich, Abstellraum und die Bäder gefliest sind.

Die vorhandene, rustikale Einbauküche ist bereits mit Geräten ausgestattet und ermöglicht einen unkomplizierten Einzug ohne zusätzlichen Aufwand.

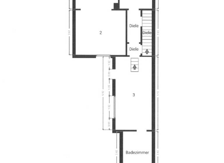
Raumaufteilung Erdgeschoss:
Im Erdgeschoss befinden sich ein großzügiger Eingangsbereich / Diele, ein Badezimmer mit Dusche und Badewanne, ein Abstellraum, ein Hauswirtschaftsraum (HWR), die Küche sowie ein Wohn- und Essbereich. Besonders hervorzuheben ist die sehr geräumige Diele, die sich ideal auch als Arbeitsbereich oder Homeoffice nutzen lässt.

Raumaufteilung Obergeschoss:
Das Obergeschoss verfügt über ein weiteres Bad mit WC und Waschbecken sowie ein Elterschlafzimmer und ein weiteres Zimmer, das flexibel als Kinder-, Gäste- oder Arbeitszimmer genutzt werden kann.

Zum Haus gehört ein ca. 628 m² großes Grundstück mit Garten. Der Garten ist derzeit etwas verwildert und bietet viel Potenzial für Mieter, die Freude daran haben, ihren Außenbereich selbst zu gestalten.

Ergänzt wird der Außenbereich durch eine überdachte Terrasse, die sich gut für den Aufenthalt im Freien eignet - auch bei wechselhaftem Wetter.

Abgerundet wird das Angebot durch eine Garage sowie ein Nebengelass mit Werkstatt, das zusätzlichen Stauraum und Platz für Hobby und Handwerk bietet.

Hinweis:
Die Kosten für Wasser, Strom, Heizung und gegebenenfalls Müll müssen vom Mieter selbst getragen und direkt mit den Versorgern abgerechnet werden.

Merkmale

  • Bezug: sofort
  • 628 m² Grundstück
  • Einbauküche
  • Keller
  • 2 Stellplätze: 2 Außen-Stellplätze
  • Garten
  • Terrasse
  • Badezimmer: Badewanne, Bad mit Dusche, Bad mit Fenster

Grundrisse

Grundrisse
1 / 2

Realisiere Dein Projekt

Bausubstanz und Energie

Energieausweis

H
  • Baujahr1930
  • Zustand der ImmobilieMassivhaus, Gepflegt
  • HeizungsartZentralheizung
  • EnergieträgerÖl
Immowelt logo

Mietkosten

geschätzte Warmmiete
~1.820,63 €
Kaltmiete
12,26 €/m²
1.300 €
Nebenkosten
70 €
Zusätzliche Kosten
Heizkosten
Kaution
2600 €
Weitere Preisinformationen
2 Stellplätze

Lage

address-icon
Appendorfer Straße 34OtterslebenMagdeburg / Ottersleben (39116)
Ottersleben - der Stadtteil mit Dorfatmosphäre. Die Dorfatmosphäre in diesem Stadtteil überrascht nicht, denn erst im Jahr 1952 wurde Ottersleben eingemeindet. Zuvor war es das größte Dorf der DDR. Der Stadtteil grenzt an die Stadtteil Sudenburg und Reform. Einkaufsmöglichkeiten sind nah gelegen. Auf dem Eichplatz, dem ehemaligen Dorfplatz de Stadtteils, werden bis heute Feste gefeiert. Einkaufsmöglichkeiten sind in der Umgebung und auch im Stadtteil vorhanden. Ausgestattet ist der Stadtteil mit Kitas und einer Grundschule, sodass die Wege vor der Arbeit möglichst kurz sind. Mit dem Bus gelangen sie in den angrenzenden Stadtteil Sudenburg, von dort aus, es mit der Straßenbahn in das Stadtzentrum geht. Mit den ÖPNV gelangen Sie so in ca. 30 Minuten in die Innenstadt. Mit dem Auto sind Sie sogar noch etwas schneller im Stadtzentrum. Eine Fahrt dauert ca. 15 Minuten.

Weitere Informationen

Sonstiges Wir haben Ihr Interesse geweckt? Vereinbaren Sie noch heute einen Besichtigungstermin.

---

Ihnen gefällt, was Sie sehen, aber dieses Objekt ist leider nicht das richtige für Sie?

Kein Problem! Wir haben eine Auswahl an Objekten zur Miete oder zum Kauf für Sie in unserem Angebot - schauen Sie sich doch einfach mal auf unserer Anbieterseite um oder kontaktieren Sie uns direkt unter Tel. 0391 584 696 89 - wir verhelfen Ihnen gerne zu Ihrem Wunschobjekt.

Alle Daten in diesem Exposé beruhen auf Angaben des Eigentümers. Die Objektangaben wurden mit größter Sorgfalt zusammengestellt. Für die Richtigkeit der Verkäufer-, Anbieter- und Angebotsangaben können wir keine Haftung übernehmen. Irrtümer bleiben vorbehalten. Stichworte Nutzfläche: 135,00 m², Anzahl der Schlafzimmer: 2, Anzahl der Badezimmer: 1, Anzahl der separaten WCs: 1, Anzahl Terrassen: 1, 2 Etagen, Distanz zum Kindergarten: 1.51, Distanz zur Grundschule: 0.93, Distanz zur nächsten Einkaufsmöglichkeit: 1.83, Distanz zum Gymnasium: 2.65, Distanz zum Hauptbahnhof: 3.40, Distanz zur Autobahn: 1.30, Distanz zum Bus: 0.31, Distanz zur nächsten Gaststätte: 0.71, Distanz vom Zentrum: 7.34, Mindestmietdauer: 2 Jahre

Weitere Services

Lust auf eine Besichtigung?
Eine Frage zur Immobilie?
Mit einer persönlichen Nachricht hast du bessere Chancen auf eine Antwort.
Mit der Nutzung der oben angegebenen Telefonnummer oder durch Klicken auf „Kontaktieren“ akzeptierst Du die Allgemeinen Nutzungsbedingungen, denen Du jederzeit widersprechen kannst. Weitere Informationen zum Datenschutz

Über den Anbieter

Wilhelm-Kobelt-Straße 27, 39108 Magdeburg
partner badge
6 Jahre Partnerschaft
Herr Sören GorzawskiDein Kontakt
Online-ID: 2624MDLQI6K7
Referenznummer: mm1403
immovario - Immobilien GmbH
immovario - Immobilien GmbH
Bewertung: 4,6 von 5 Sternen
Mit einer persönlichen Nachricht hast du bessere Chancen auf eine Antwort.
Mit der Nutzung der oben angegebenen Telefonnummer oder durch Klicken auf „Kontaktieren“ akzeptierst Du die Allgemeinen Nutzungsbedingungen, denen Du jederzeit widersprechen kannst. Weitere Informationen zum Datenschutz
Wie zufrieden bist du mit dieser Seite (nicht mit der Immobilie selbst)?