Version: 8.22.6Navigation überspringen
950 €
4 Zimmer  •  97 m²
Immowelt logo

Wohnung zur Miete
950 €
4 Zimmer  •  97 m²

Frisch renovierte 4-Zimmer-Wohnung mit Balkon in Erbach/Ersingen

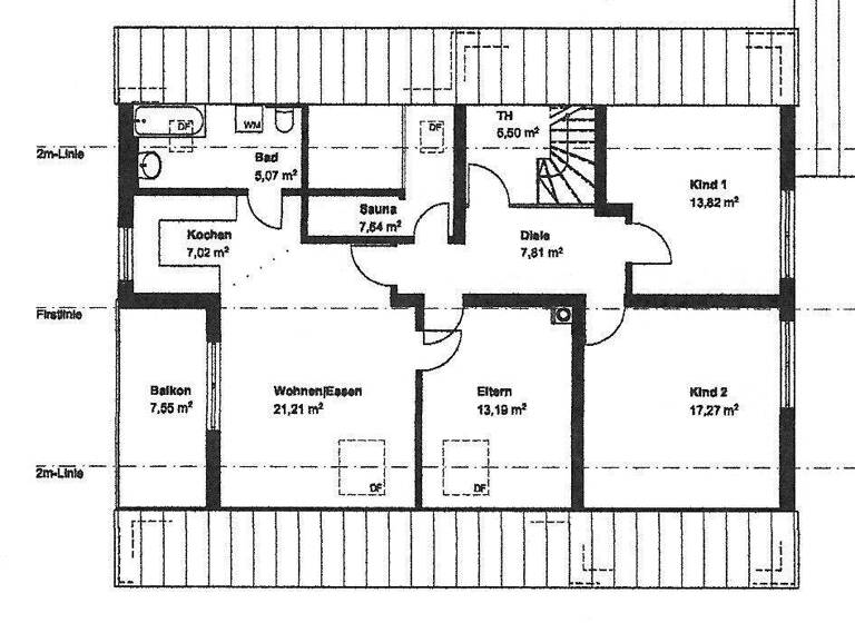
Im Dachgeschoss eines Zweifamilienhauses befindet sich diese großzügige 4-Zimmer-Wohnung mit Balkon und bietet Ihnen ca. 97 m² Wohnfläche, verteilt auf drei großzügige Schlafzimmer, Kinderzimmer oder Büro, ein sonniger Wohnbereich mit offener Küche und Zugang auf Ihren überdachten Balkon. Die moderne Einbauküche ist im Mietpreis bereits enthalten. Weiter steht Ihnen ein helles Tageslichtbad mit Badewanne, Waschbecken, WC und Waschmaschinenanschluß zur Verfügung sowie als weiteres Highlight ein zweites Bad mit Dusche und eigener Sauna.

Die Wohnung wird momentan frisch renoviert und kann nach Absprache bezogen werden.

Ein Stellplatz für Ihr Kraftfahrzeug kann nach Absprache angemietet werden.

Wir freuen uns auf Ihr Bewerbungsschreiben mit ein paar näheren Angaben zu Ihrer Person und Familie.

Merkmale

  • Bezug: nach Absprache
  • Dachgeschoss
  • Einbauküche
  • Balkon
- 4-Zimmer-Wohnung mit Balkon, ca. 97 m² Wohnfläche
- keine Haustiere
- frei nach Absprache
- Kaltmiete € 950,-- inklusive Einbauküche
- Nebenkostenvorauszahlung € 300,--
- Kaution 2 Monatsmieten (€ 1.900,--)

Grundrisse

Grundrisse
1 / 1

Realisiere Dein Projekt

Bausubstanz und Energie

Energieausweis

C
  • Baujahr1975
  • HeizungsartZentralheizung
  • EnergieträgerÖl
Immowelt logo

Mietkosten

Kaltmiete
9,79 €/m²
950 €
Nebenkosten
300 €
Kaution
€ 1.900

Lage

address-icon
ErsingenErbach (89155)
Der Anbieter hat die genaue Adresse nicht freigegeben
Ersingen ist ein charmanter Ortsteil im Stadtgebiet von Erbach im Alb-Donau-Kreis mit rund 1.200 Einwohnern.
Hier treffen ländliche Ruhe und naturnahe Umgebung auf eine solide Infrastruktur - eine seltene Kombination, die ideal für Familien, Paare sowie alle, die ein ruhiges Zuhause mit guter Anbindung suchen, ist.

Die Lage von Ersingen überzeugt: Zwischen der Schwäbischen Alb und dem Donautal gelegen bietet der Ort unmittelbaren Bezug zur Natur - Spazier- und Wanderwege, frische Luft und Freiräume für Erholung sind unmittelbar vor der Haustür. Zugleich ist die Anbindung an umliegende Zentren gewährleistet: Erbach (als Unterzentrum) sowie Ulm erreichen Sie bequem im Alltag. Die Bahn- und Busverbindungen im Raum Erbach und die Nähe zu den Hauptverkehrsachsen schaffen Mobilität.

In puncto Bildung und Betreuung punktet Ersingen mit einem modernen Bildungs-Hauskonzept: In Zusammenarbeit arbeiten Grundschule und Kindertagesstätte vor Ort - kurze Wege für Ihre Kinder, überschaubare Klassen- und Gruppenstrukturen für eine vertrauensvolle Lernumgebung.

Auch das soziale und kulturelle Leben kommt in Ersingen nicht zu kurz. Vereine wie der Musikverein Ersingen e. V. oder die Sportgemeinschaft SG Ersingen 1924 e. V. öffnen Räume für Gemeinschaft, Begegnung und aktive Freizeitgestaltung.

Spielplätze bieten kleinen Bewohnern Raum zum Toben, während Erwachsene beim Vereinsabend oder bei einem Spaziergang die ruhige Atmosphäre genießen.

Die Nahversorgung ist gute Grundlage für Ihren Alltag: Geschäfte und Dienstleister in Erbach sind leicht erreichbar, während Ersingen selbst mit seinem dörflichen Charakter ein Wohnumfeld schafft, in dem Nachbarschaft zählt und Ruhe erlebbar wird. Sie wohnen hier in einem Umfeld, das Rückzug und Vernetzung zugleich bietet.

Fazit: Ersingen überzeugt als Wohnstandort mit seltener Balance: naturnahe Ruhe, familienfreundliche Infrastruktur und eine starke Gemeinschaft - ideal für Menschen, die ein Zuhause suchen, das mehr bietet als vier Wände: ein Ort zum Leben und Wohlfühlen.

Weitere Informationen

Sonstiges Die im Exposé veröffentlichten von Firma Bober Immobilien ungeprüft übernommenen Unterlagen, Grundrisse, Flächenberechnungen, Objektinformationen und Angaben wurden uns vom Auftraggeber bereitgestellt und überlassen. Die Grundrisse sind nicht maßstäblich und stellen ca. Flächenangaben dar.
Die Firma Bober Immobilien übernimmt keine Gewähr und Haftung für die Richtigkeit, Vollständigkeit vorbezeichneter Informationen.

**************

Sie wollen eine Immobilie kaufen - oder verkaufen? Dann sind Sie bei uns richtig.

Seit 25 Jahren stehen wir unseren Kunden bei allen Fragen zu diesem Thema mit Rat und Tat zur Seite. Egal, ob es darum geht, das perfekte Zuhause für die Familie zu finden oder ob Sie einen solventen Käufer für Ihr Objekt gewinnen wollen: Wir beraten und begleiten Sie bei der Realisierung Ihrer Wünsche und führen das Vorhaben zu einem erfolgreichen Abschluss.

Profitieren Sie von unserer Expertise in professionellem Marketing und unserem juristischen Know-how. Wir beraten Sie seriös, kompetent und unabhängig und bieten Ihnen umfassende Service-Leistungen aus einer Hand. Wir rücken Ihr Objekt beim Interessenten ins rechte Licht. Wir finden den passenden Käufer oder Verkäufer. Um lästige bürokratische Aufgaben müssen Sie sich ebenfalls nicht kümmern. Das erledigen wir für Sie - bis hin zum erfolgreichen Vertragsabschluss.

Auf uns können Sie sich verlassen, wir freuen uns auf Sie. Stichworte Anzahl Balkone: 1

Weitere Services

Lust auf eine Besichtigung?
Eine Frage zur Immobilie?
Nachricht hinzufügen
Mit der Nutzung der oben angegebenen Telefonnummer oder durch Klicken auf „Kontaktieren“ akzeptierst Du die Allgemeinen Nutzungsbedingungen, denen Du jederzeit widersprechen kannst. Weitere Informationen zum Datenschutz

Über den Anbieter

Bober Immobilien
Bober ImmobilienMaklerbüro
Am Rotdamm 40, 89155 Erbach
Wolfgang F. Bober
Wolfgang F. BoberDein Kontakt
Online-ID: 2mz635l
Referenznummer: 7078#UcWB8m
Bober Immobilien
title
Bober Immobilien
Nachricht hinzufügen
Mit der Nutzung der oben angegebenen Telefonnummer oder durch Klicken auf „Kontaktieren“ akzeptierst Du die Allgemeinen Nutzungsbedingungen, denen Du jederzeit widersprechen kannst. Weitere Informationen zum Datenschutz
Wie zufrieden bist du mit dieser Seite (nicht mit der Immobilie selbst)?