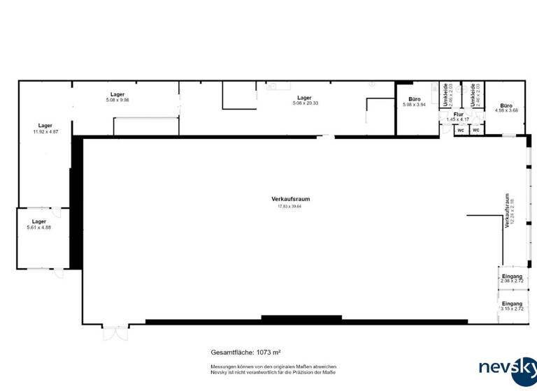
KOMMERZIELLES ERDGESCHOSS. Das Gebäude verfügt über einen Kundeneingang an der Vorderseite und einen Personaleingang an der Rückseite, die sich neben der Entladerampe mit Zugang zu den LKWs befinden. Fläche des gesamten Gebäudes: 1026m² Derzeitige Verkaufsfläche für Kunden: 655m² Sanitäranlagen (2 WC) mit Umkleideräumen für das Personal: 17,50m² Büro für die Verwaltung: 17,80m² Küchenzeile + Elektrokästen: 18,41m² Großküche + zwei negative Kühlräume: 87,72m² Positiver Kühlraum: 57,70m² Lagerraum: 51,72m² Entladen: 26,78m² Das ursprüngliche Gebäude wurde 1983 auf einem 3218m² großen Grundstück gebaut. Es wurden mehrere Renovierungen durchgeführt: 2008: größtenteils für die Pflege und das äußere Erscheinungsbild (Fassaden und Dachisolierung). 2021: Neue Zentralheizung mit Wärmepumpe. Die Wärmepumpe ermöglicht die Rückgewinnung von Energie durch einen Kompressor, der mit den Kühlanlagen verbunden ist, zusätzlich zu den Luft/Luft-Wärmepumpen, die die Klimaanlage ermöglichen.Der Kundeneingang ermöglicht den Ausstoß eines Warmluftvorhangs,die Fenster sind doppelt verglast und mit Aluminiumrahmen ausgestattet.Ebenfalls mit einer Alarmanlage sowie einer Beleuchtung entlang aller Parkplätze ausgestattet.Die Immobilie verfügt über eine elektrische Hochspannungskabine (15000V).
Merkmale
Bezug: nach Absprache
3.218 m² Grundstück
Grundrisse
Grundrisse
1 / 2
Bausubstanz und Energie
Baujahr1983
Zustand der Immobilierenoviert / saniert
HeizungsartZentralheizung
EnergieträgerGas
Preisdetails
Kaufpreis
1150000 €1.150.000 €
Provision für Käufer
provisionsfrei; keine Provision, courtagefrei
Lage
Lütticherstraße 249, Neu-Moresnet, Kelmis (4721)
Im Zentrum von Kelmis gelegen, an der Haupteinkaufsstraße, die Aachen mit Lüttich verbindet.
Weitere Informationen
Sonstiges
Heizungsart: Zentralheizung Energieträger: Gas Energieausweis nicht vorhanden
ohne-makler (OM) ist weder Anbieter noch Vermittler der Immobilie. OM betreibt eine Plattform für Immobilieneigentümer, die unter anderem die gleichzeitige Veröffentlichung einzelner Inserate auf mehreren Immobilienportalen ermöglicht. Die Inhalte dieser Inserate werden ausschließlich von Dritten verantwortet. Für die Richtigkeit, Vollständigkeit oder Rechtmäßigkeit der Angaben übernimmt OM keine Haftung. Hinweise auf mögliche Rechtsverstöße können jederzeit gemeldet werden und werden nach Prüfung umgehend bearbeitet.
Stichworte
Lagerfläche: 1.026,00 m², Gesamtfläche: 3.218,00 m², Freifläche: 655,00 m²