Version: 8.22.4Navigation ĂĽberspringen
9.400.000 €
24 Zimmer  â€˘  1.819 m² GrundstĂĽck
Immowelt logo

Hotel zum Kauf - Erstbezug
9400000 €
24 Zimmer  â€˘  1.819 m² GrundstĂĽck

SALZBURGER SONNENTERRASSE - GOLDEGG AM SEE

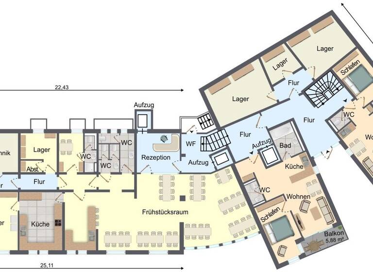
Die Hotelanlage besteht aus 2 Gebäudeteilen, einem Neubau und einem kernsanierten Bestandsgebäude.
Im Erdgeschoss des viergeschossigen Bestandsgebäudes befinden sich der Gastro-Bereich samt Küche und Nebenräumen. Im 1., 2. und 3. Stockwerk sind jeweils 6 Appartements mit einer Fläche von ca. 30 - 39 m² vorhanden.
Der Neubau besteht aus einem 3-geschossigen Gebäude mit 2 Appartements pro Etage. Die Größe der Appartements beträgt ca. 60 - 69 m².
Beide Gebäudeteile sind mit Aufzügen ausgestattet. Bestandsgebäude und Neubau sind im Erdgeschoss miteinander verbunden. In diesem Bereich ist auch der Hotelempfang vorgesehen.
Die Appartements sind zum See nach SĂĽdwesten gerichtet.
Zur Hotelanlage gehört ein großzügiger Gästeparkplatz mit 26 Stellplätzen.
Das Hotel mit insgesamt 24 Appartements umfasst 1.051 m² Wohnraum, einen Restaurationsbereich samt Küche von ca. 196 m², Nebenräume mit ca. 85 m², sowie Verkehrs- und Allgemeinflächen von
ca. 278 m².

Merkmale

  • Bezug: Sommer 2027
  • 4 Geschosse
  • 1.819 m² GrundstĂĽck
  • Personenaufzug
  • 26 Stellplätze: AuĂźen-Stellplatz
  • Balkon
SchlĂĽsselfertige Erstellung entsprechend Baubeschreibung.

Grundrisse

Grundrisse
1 / 4

Realisiere Dein Projekt

Bausubstanz und Energie

Der Anbieter hat keine Informationen zum Energieverbrauch bereit gestellt.
  • Baujahr2027 + Bestand
  • Zustand der ImmobilieNeubau, Erstbezug
Immowelt logo

Preisdetails

Kaufpreis
9400000 €
Provision für Käufer
3 % zuzĂĽglich gesetzlicher MwSt. derzeit 20%
Weitere Preisinformationen
€ 9.400.000,00 zuzüglich gesetzlicher Mehrwertsteuer von derzeit 20%.

Lage

address-icon
Goldegg (5622)
Der Anbieter hat die genaue Adresse nicht freigegeben
Goldegg am See befindet sich im Pongau, einem Bezirk des Salzburger Landes. Es liegt auf einem Hochplateau oberhalb des Salzachtals und ist von Bergen und Wäldern umgeben. Goldegg am See bietet eine Vielzahl von Freizeitaktivitäten, darunter Wandern, Radfahren, Golfen, Tennis, Beachvolleyball und Wassersport. Im Winter ist die Region ideal zum Skifahren, Langlaufen und für andere Winteraktivitäten.

Weitere Informationen

Maklerprovision Im Erfolgsfalle beträgt unsere Provision 3 % zuzüglich der gesetzlichen Mehrwertsteuer, derzeit 20 %MwSt. (= 3,6 %) von der Kaufsumme und ist mit der notariellen Beurkundung des Kaufvertrages zur Zahlung fällig. Beratung und Verkauf Die Firma SL Immobilien GbR ist exklusiv mit der Vermarktung beauftragt. Besichtigungstermine sind ausschließlich mit dem Maklerbüro zu vereinbaren. Gewährleistung Alle Angaben basieren auf Informationen des Auftraggebers.

Weitere Services

Lust auf eine Besichtigung?
Eine Frage zur Immobilie?
Nachricht hinzufĂĽgen
Mit der Nutzung der oben angegebenen Telefonnummer oder durch Klicken auf „Kontaktieren“ akzeptierst Du die Allgemeinen Nutzungsbedingungen, denen Du jederzeit widersprechen kannst. Weitere Informationen zum Datenschutz

Ăśber den Anbieter

SL Immobilien GbR
SL Immobilien GbRMaklerbĂĽro
Brunnenweg 14, 92353 Postbauer-Heng
partner badgepartner badge
6 Jahre Partnerschaft + Diamond Partner
Frau und Herr Beate & Klaus-Peter Lott
Frau und Herr Beate & Klaus-Peter LottDein Kontakt
Online-ID: 2kfup5t
Referenznummer: 2453
SL Immobilien GbR
title
SL Immobilien GbR
Bewertung: 4,7 von 5 Sternen
Nachricht hinzufĂĽgen
Mit der Nutzung der oben angegebenen Telefonnummer oder durch Klicken auf „Kontaktieren“ akzeptierst Du die Allgemeinen Nutzungsbedingungen, denen Du jederzeit widersprechen kannst. Weitere Informationen zum Datenschutz
Wie zufrieden bist du mit dieser Seite (nicht mit der Immobilie selbst)?