Version: 8.22.4Navigation überspringen
549.000 €
124,6 m²
Immowelt logo

Haus zum Kauf - Erstbezug
549000 €
4.407 €/m²
124,6 m²

WOW ! Einmalige Gelegenheit: Traumhaus nach Ihren Vorstellungen

Achtung Planverkauf zu aussergewöhnlichen Konditionen. 

Zum Verkauf gelangen moderne, hochwertig geplante Neubauhäuser in beliebter Wohnlage von Korneuburg. Die Häuser werden derzeit vom Plan verkauft und ermöglichen daher viele Gestaltungsmöglichkeiten sowie die Einbringung eigener Ideen bei der Ausführung.

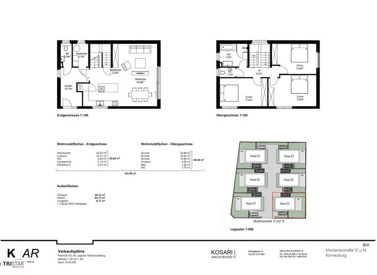
Die Wohnnutzfläche von ca. 124,5 m² verteilt sich auf zwei Stockwerke mit durchdachten Grundrissen:

*
Erdgeschoss: großzügige Wohnküche (44,6 m²), Vorraum, WC, Haustechnikraum, Abstellraum

*
Obergeschoss: drei helle Schlafzimmer, Badezimmer mit Badewanne, zusätzliches WC, Vorraum

Der ca. 65 m² große Garten mit Terrasse bietet Platz für Erholung und Freizeit.

-------------------------

LAGE & INFRASTRUKTUR

Die Liegenschaft befindet sich in ruhiger und gleichzeitig zentraler Lage in 2100 Korneuburg.

*
Zentrum & Bahnhof: in wenigen Minuten erreichbar - mit direkter Schnellbahnverbindung nach Wien (ca. 15-20 Min. zum Praterstern).

*
Einkaufsmöglichkeiten: Nahversorger, Supermärkte und das Einkaufszentrum "Donaupark" sind in kurzer Distanz erreichbar.

*
Bildung: Kindergärten, Volks- und Mittelschule sowie Gymnasium befinden sich direkt in Korneuburg.

*
Freizeit: zahlreiche Sportmöglichkeiten, Radwege entlang der Donau, das Erholungsgebiet Bisamberg sowie vielfältige Gastronomie.

*
Verkehrsanbindung: durch die nahegelegene A22 (Donauuferautobahn) schnelle Erreichbarkeit von Wien und Stockerau.

-------------------------

BESONDERHEITEN

*
Verkauf ab Plan - individuelle Gestaltung möglich

*
Garten mit Terrasse und 2 PKW-Stellplätzen

*
Ruhige, grüne Wohnlage nahe Wien

*
Einmalige Aktion: Das erste der Häuser wird zum Sonderpreis von 549.000 € angeboten. Danach beträgt der reguläre Kaufpreis 649.000 €.

-------------------------

_Alles in allem handelt es sich um Ihre Traumimmobilie mit perfekter Anbindung._

Für weitere Informationen und Besichtigungen steht Ihnen Herr Wagner jederzeit gerne unter 06601055501 [tel:06601055501] oder unter wagner@tristar.at zur Verfügung!

Weitere interessante Angebote finden Sie auf www.tristar.at [http://www.tristar.at/].

Obige Angaben basieren auf Informationen und Unterlagen des Eigentümers. Der guten Ordnung halber möchten wir festhalten, dass im Falle eines Abschlusses mit Ihnen oder einem von Ihnen namhaft gemachten Dritten unser Honorar (lt. Honorarverordnung für Immobilienmakler, BGBl. 262 und 297/1996) 3% des Verkaufspreises zzgl. der gesetzlichen MwSt. beträgt. Wir weisen auf ein wirtschaftliches Naheverhältnis zum Eigentümer hin. Es gelten unsere allgemeinen Geschäftsbedingungen. Irrtümer vorbehalten

Wir weisen darauf hin, dass zwischen dem Vermittler und dem zu vermittelnden Dritten ein familiäres oder wirtschaftliches Naheverhältnis besteht.

Der Vermittler ist als Doppelmakler tätig.

Merkmale

  • Außen-Stellplatz
  • Terrasse
  • Barrierefrei

Grundrisse

Grundrisse
1 / 6

Realisiere Dein Projekt

Bausubstanz und Energie

Der Anbieter hat keine Informationen zum Energieverbrauch bereit gestellt.
  • Baujahr2026
  • Zustand der ImmobilieNeubau, Erstbezug
Immowelt logo

Preisdetails

Kaufpreis
549000 €
4.406,81 €/m²
Provision für Käufer
19.764,00 € inkl. 20% USt.
Weitere Preisinformationen
1 Stellplatz

Lage

address-icon
Korneuburg (2100)

Weitere Informationen

Stichworte Nutzfläche: 124,58 m², Anzahl Terrassen: 1, Balkon-Terrassen-Fläche: 26,00 m², Gartenfläche: 64,73 m², Bundesland: Niederösterreich

Weitere Services

Lust auf eine Besichtigung?
Eine Frage zur Immobilie?
Nachricht hinzufügen
Mit der Nutzung der oben angegebenen Telefonnummer oder durch Klicken auf „Kontaktieren“ akzeptierst Du die Allgemeinen Nutzungsbedingungen, denen Du jederzeit widersprechen kannst. Weitere Informationen zum Datenschutz

Über den Anbieter

Lerchenfelder Straße 158/1-2, 1080 WIEN
partner badge
6 Jahre Partnerschaft
Herr Andreas WagnerDein Kontakt
Online-ID: 2mxag5d
Referenznummer: OBGC202511191449180129b09692585
TRISTAR Immobilien GmbH & Co KG
Nachricht hinzufügen
Mit der Nutzung der oben angegebenen Telefonnummer oder durch Klicken auf „Kontaktieren“ akzeptierst Du die Allgemeinen Nutzungsbedingungen, denen Du jederzeit widersprechen kannst. Weitere Informationen zum Datenschutz
Wie zufrieden bist du mit dieser Seite (nicht mit der Immobilie selbst)?