Planquadrat Immobilienentwicklungs- und Verwertungsgesellschaft mbH

Herr Heinrich Pichler

Das Glück finden

€ 2.619,49
Gesamtmiete inkl. BK
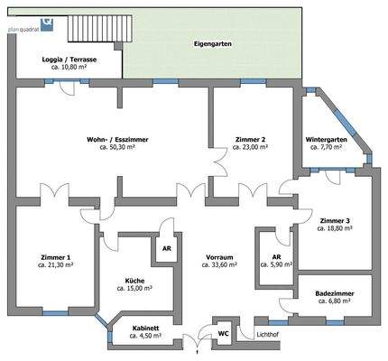
196,71 m²
Wohnfläche ca.
4,5
Zimmer

Der Anbieter dieses Objekts hat gegenüber der AVIV Germany GmbH als Betreiber dieses Online-Marktplatzes erklärt, nicht als Unternehmer im Sinne des § 1 KSchG zu handeln. Die im Verbraucherschutzrecht der Union verankerten Verbraucherrechte (insbesondere Informationspflichten und Rücktritts- bzw. Widerrufsrechte) finden auf den Vertrag zwischen dem Anbieter des Objekts und Ihnen (dem Interessenten) keine Anwendung.

Gewerblicher Anbieter

Der Anbieter dieses Objekts hat gegenüber der AVIV Germany GmbH als Betreiber dieses Online-Marktplatzes erklärt, als Unternehmer im Sinne des § 1 KSchG zu handeln.

AdresseHardtgasse
1190 Wien 
(Döbling)
Auf Karte ansehen

Preise & Kosten

Gesamtmiete

inkl. Betriebskosten

€ 2.619,49
Nettokaltmiete € 1.995 Betriebskosten € 386,35

Kaution

10.000,00 €

Provision für Mieter

Gemäß Erstauftraggeberprinzip bezahlt der Abgeber die Provision.

Lage

Die Wohnung

Wohnungslage

1. Geschoss

Bezug

sofort (Mietbeginn jeweils zum 01. oder 15. eines

  • Bad mit Fenster, Wanne und Dusche
  • Terrasse
  • Einbauküche
  • Böden: Fliesenboden, Parkett
  • Zustand: gepflegt
  • Anschlüsse: Kabelanschluss

Wohnanlage

  • Baujahr: 1910
  • Zustand: Altbau (bis 1945)

Energie & Heizung

Heizwärmebedarf (HWB)

E

150,26 kWh/(m²·a)

Gesamtenergieeffizienz (fGEE)

E

2,53

Weitere Energiedaten

Energieträger

Gas

Heizungsart

Etagenheizung

Details

Objektbeschreibung

Das Glück zu finden

... ist manchmal ziemlich einfach. Insbesondere dann, wenn Sie gerade auf der Suche nach einem charmanten Zuhause mit dem gewissen Extra sind.

Diese Wohnung ist ein Sinnbild dafür - mittendrin im urbanen Umfeld Wiens gelegen und doch wohnt man hier im Grünen (jedenfalls in Bälde wieder, wenn...

Mehr anzeigen

Preisinformation

Nettokaltmiete: 1.995,00 EUR

Weitere Informationen

Sonstiges
Bitte beachten Sie:

*
Für die Küchenzeile, inkl. die darin verbauten / vorhandenen Geräte, wird keine Möbelmiete vorgeschrieben - von Seiten des Vermieters wird deshalb keine Gewähr für die (hinkünftige) Funktion der Einrichtung / der Geräte übernommen, bzw. würden Reparaturen / Austauscharbeiten...

Mehr anzeigen

Dokumente

file_pdfEnergieausweisangle_right

Anbieter der Immobilie

Partner

Planquadrat Immobilienentwicklungs- und Verwertungsgesellschaft mbH

im Durchschnitt  5,00  Sterne
(bei 3 Bewertungen)

Untere Augartenstraße 18 / Top 29, 1020 WIEN

user

Herr Heinrich Pichler

Dein Ansprechpartner

Anbieter-Profil Anbieter-Impressum

Online-ID: 2nmjy54

Referenznummer: OBGC20260115094056727aded1852d1

Finde Angebote wie dieses

imageimageimage

Hier geht es zu unserem Impressum, den Allgemeinen Geschäftsbedingungen, den Hinweisen zum Datenschutz und nutzungsbasierter Online-Werbung.