

Paulick Thierfelder Immobilien GmbH
Frau Magdalena Homilius
034 ···
Nr. anzeigenPreise & Kosten
Provision für Mieter
provisionsfrei
Warum sehe ich diese Anzeige? – Du siehst diese Anzeige basierend auf Ihrer Navigation auf unserer Website und den Suchkriterien, die du verwendet hast.
Lage
Das Objekt ist bequem über die Zschortauer Straße/Essener Straße erreichbar. Die infrastrukturelle Erschließung ist ausgezeichnet: Die Bundesstraße B2 führt Sie direkt ins Stadtzentrum und zur A38, während die Maximilianallee schnellen Zugang zur A14 in Richtung Halle und Dresden bietet. Die Bundesstraße B6, die in westlicher...
Die Industriefläche
Kategorie
Lagerhalle
Baujahr
1963
Bezug
sofort
Energie & Heizung
Warum sehe ich diese Anzeige? – Du siehst diese Anzeige basierend auf Ihrer Navigation auf unserer Website und den Suchkriterien, die du verwendet hast.
Wärme
Strom
Energieausweistyp
Verbrauchsausweis
Gebäudetyp
Nicht-Wohngebäude
Baujahr laut Energieausweis
1963
Wesentliche Energieträger
GAS
Gültigkeit
bis 25.08.2028
Endenergieverbrauch (Wärme)
45,00 kWh/(m²·a)
Endenergieverbrauch (Strom)
23,00 kWh/(m²·a)
Details
Objektbeschreibung
Willkommen in Ihrem neuen Gewerbestandort in der dynamischen Stadt Leipzig: Diese vielseitige Mietfläche befindet sich in einer der aufstrebendsten Städte Deutschlands, die nicht nur für Wirtschaft und Wissenschaft ein wahrer Magnet ist. Leipzig, die größte Stadt in Sachsen, bildet zusammen mit Halle den Ballungsraum...
Ausstattung
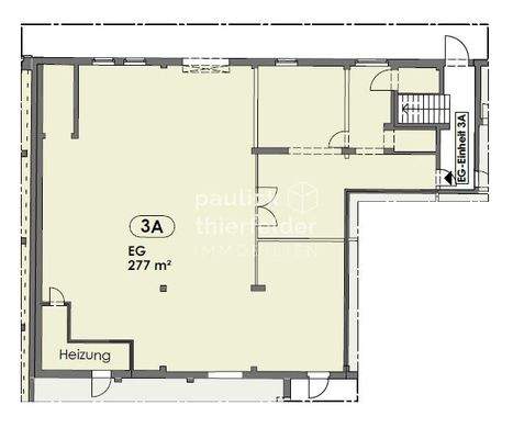
Die gesamte Mietfläche umfasst 277,00 Quadratmeter, die sich flexibel gestalten lassen, und ist die ideale Wahl für Unternehmen, die von einer strategisch günstigen Lage profitieren möchten, um in einem pulsierenden Umfeld zu wachsen.
Die Fläche zeichnet sich durch ihre Vielseitigkeit und gute Ausstattung aus. Moderne...
Preisinformation
Nettokaltmiete: 2.216,00 EUR
Weitere Informationen
Sonstiges
Weitere tolle Immobilienangebote finden Sie auch hier:
http://www.paulick-thierfelder.immo
Alle in diesem Angebot enthaltenen Angaben stammen ausschließlich vom Eigentümer (oder einem Dritten). Eine Haftung unseres Unternehmens hierfür ist ausgeschlossen. Die Flächeninhalte des Objekts sind...
Anbieter der Immobilie
Paulick Thierfelder Immobilien GmbH
Nordstraße 21, 04105 Leipzig

Online-ID: 2mwnq5n
Referenznummer: 02085_3
Finde Angebote wie dieses
Hier geht es zu unserem Impressum, den Allgemeinen Geschäftsbedingungen, den Hinweisen zum Datenschutz und nutzungsbasierter Online-Werbung.