Große, helle Büro-, Praxis- oder Schulungsräume in sehr ruhiger Lage von Baunatal-Altenritte
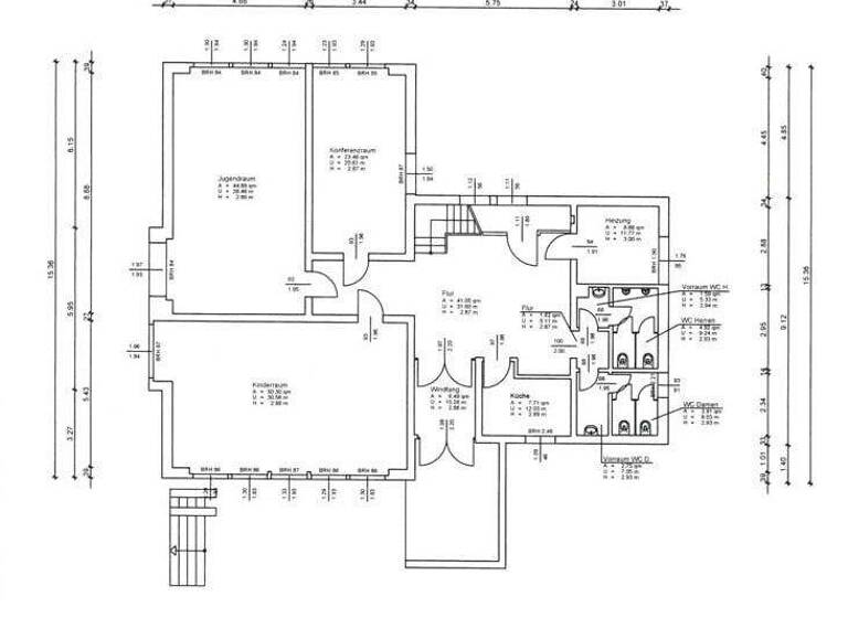
Von den öffentlichen Parkplätzen direkt vor dem Haus gelangt man über wenige Stufen nach unten durch einen lichten Windfang in das Gebäude. Die hier im Erdgeschoss gelegene Fläche mit einem großzügigen Eingangsbereich, 3 unterschiedlich großen Räumen (ca. 50, ca. 45 und ca. 23 m²), einer Küche und je Damen- und Herren-WC-Räumen sind hier zur Anmietung angeboten. Die Fläche eignet sich sehr gut für ein großzügig angelegtes Büro, Schulungen, eine Praxisetage, Tagespflege oder Ausstellungsfläche. Barrierefreiheit müsste könnte man bei Bedarf noch herstellen. Eine angrenzende Gartenfläche mit Gartentor kann genutzt werden.
Merkmale
frei ab sofort
vermietet
Einbauküche, Teeküche
Kein Keller
Garten
Bodenbelag: Laminat, Linoleum, Granit, Teppich
Grundrisse
Grundrisse
1 / 1
Bausubstanz und Energie
Energieausweis
Endenergieverbrauch (Wärme)
Endenergieverbrauch (Strom)
Baujahr1974
Zustand der ImmobilieMassivhaus, Gepflegt
HeizungsartZentralheizung
EnergieträgerGas
Mietkosten
Warmmiete
1.680 €
Nettomiete
1.230 €
Nebenkosten
450 €
Heizkosten
in Warmmiete enthalten
Provision für Mieter
1,5 KM inkl. MwSt.
Kaution
3690 €3.690 €
Weitere Preisinformationen
Nettokaltmiete: 1.230,00 EUR
Lage
Altenritte, Baunatal (34225)
Der Anbieter hat die genaue Adresse nicht freigegeben
Die Bürofläche befindet sich in Baunatal-Altenritte, in einem gut angebundenen und attraktiven Gewerbegebiet. Die Lage bietet eine hervorragende Infrastruktur und ist ideal für Unternehmen, die eine zentrale und dennoch ruhige Umgebung suchen.
In unmittelbarer Nähe befinden sich diverse Einkaufsmöglichkeiten, Restaurants und Cafés, die für eine angenehme Pausen- und Arbeitsatmosphäre sorgen. Die Anbindung an den öffentlichen Nahverkehr ist ausgezeichnet, mit mehreren Buslinien, die fußläufig erreichbar sind. Zudem ist die Autobahn A49 nur wenige Minuten entfernt, was eine bequeme Anreise mit dem Auto ermöglicht.
Die Umgebung ist geprägt von einer Mischung aus Wohn- und Gewerbegebieten, was für eine lebendige und dynamische Nachbarschaft sorgt. Parkmöglichkeiten sind ausreichend vorhanden.