Modernes Wohnen in einem rundum erneuerten Zuhause!
In der Niehler Straße 171 entsteht durch eine umfassende Sanierung ein hochwertiges Wohnhaus mit 8 modernen Eigentumswohnungen, welches gewachsene Bausubstanz mit zeitgemäßem Wohnkomfort verbindet.
Die Wohnungen bieten 2 bis 4 Zimmer und Wohnflächen von ca. 38 m² bis 93 m² - ideal für Singles, Paare oder Berufstätige mit urbanem Lebensstil ebenso wie für Menschen, die sich verkleinern und komfortabel wohnen möchten.
Das Gebäude fügt sich harmonisch in die umgebende Bebauung ein und präsentiert sich mit einer modernen, weißen Fassade sowie anthrazitfarbenen Fenstern.
Die Ausstattung der Wohnungen gleicht einem Neubau mit durchdachten Grundrissen und modernen Materialien. Ein besonderes Highlight ist die Wohnung mit schöner Dachterrasse und Blick über die Dächer von Nippes.
Hier entsteht ein Zuhause für Menschen, die Wert auf Lage, Komfort und Lebensqualität legen.
Merkmale
Bezug: Frühjahr 2027
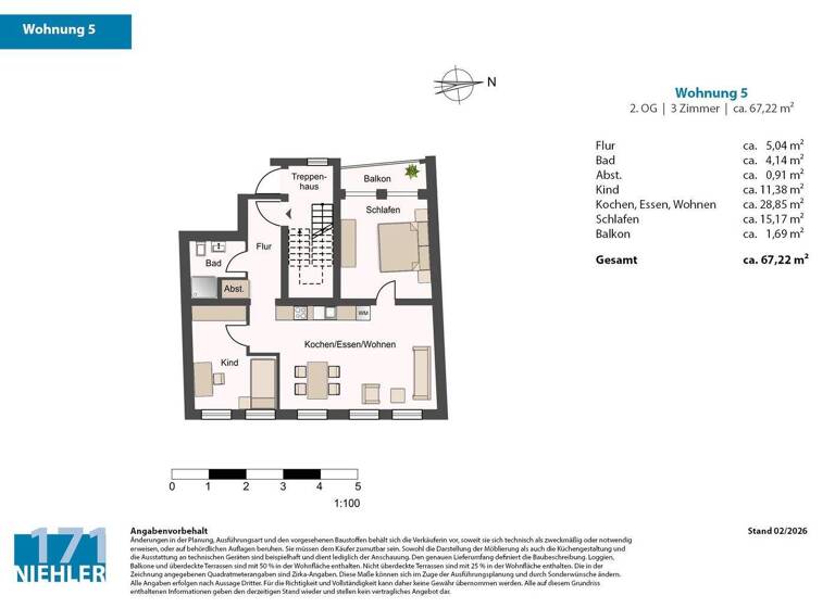
2. Geschoss
Kelleranteil
- Vielfältige Grundrisse mit 2 bis 4 Zimmern - Balkone und Terrassen zum ruhigen Innenhof gelegen (mit Abendsonne) - KfW-Effizienzhaus 55 - nachhaltig und energieeffizient - Fußbodenheizung in allen Wohnungen - Parkettfußboden in allen Wohn- und Schlafräumen - Zentrale Warmwasserbereitung über Fernwärme - Video-Gegensprechanlage - Großflächige, anthrazitfarbene, dreifachverglaste Schüco-Kunststofffenster mit elektrischen Rollläden - Moderne Bäder mit hochwertigen Markenarmaturen - Eigener Kellerraum je Wohnung - Gemeinschaftlicher Wasch- und Trockenraum - Fahrrad- und Kinderwagenstellplätze - Spielfläche für Kinder im Innenhof
Grundrisse
Grundrisse
1 / 1
Realisiere Dein Projekt
Bausubstanz und Energie
Energieausweis
A+
Baujahr2026
Zustand der Immobilierenoviert / saniert
HeizungsartFußbodenheizung
EnergieträgerFernwärme
Preisdetails
Kaufpreis
449000 €449.000 €
6.677,57 €/m²
Provision für Käufer
Bitte beachte, das Angebot kann bei Vertragsabschluss die Zahlung einer Provision beinhalten. Weitere Informationen erhältst Du vom Anbieter.
Geschätzte Gesamtkosten
503.194 €1
Kaufpreis
449.000 €
Kaufnebenkosten
54.194 €
2
Notarkosten (1,5%)
6.735 €
Grunderwerbsteuer (6,5%)
29.185 €
Provision für Käufer (3,57%)
16.029 €
Grundbucheintrag (0,5%)
2.245 €
1Der angezeigte Wert ist eine automatisch berechnete Schätzung von immowelt.
2Bei den Angaben handelt es sich um ortsübliche Werte. Individuelle Kosten können abweichen.
Lage
Nippes, Köln / Nippes (50733)
Der Anbieter hat die genaue Adresse nicht freigegeben
Nippes ist mehr als ein Stadtteil - es ist ein Lebensgefühl! Ein echtes kölsches Veedel mit Charakter, gewachsener Nachbarschaft und kultureller Vielfalt. Hier verbindet sich urbanes Leben mit beständiger Veedel-Struktur - nur wenige Minuten von der Kölner Innenstadt entfernt.
Das Herz des Viertels schlägt auf der Neusser Straße, einer der größten und vielseitigsten Einkaufsstraßen Kölns, mit Geschäften für den täglichen Bedarf, Cafés und Restaurants. Der beliebte Wochenmarkt auf dem Wilhelmplatz sorgt zusätzlich für echtes Veedel-Flair.
Auch der öffentliche Nahverkehr ist optimal: U-Bahn-Verbindungen in alle Richtungen, der Bahnhof Köln-Nippes mit Anschluss an die S-Bahn- Linien S6 und S11 sowie zahlreiche Buslinien befinden sich in der Nähe. Mit dem Fahrrad erreicht man schnell die Innenstadt oder den nahegelegenen Blücherpark.
Die Lage überzeugt zudem durch ihre gute Verkehrsanbindung: Sowohl die Autobahnen als auch alle Kölner Stadtteile sind in kurzer Zeit erreichbar.
Alles, was das tägliche Leben angenehm macht, liegt praktisch vor der Tür. Und mit etwas Weitblick zeigen sich am Horizont sogar die Spitzen des Kölner Doms. Nippes ist ideal für alle, die das Stadtleben lieben und echtes Veedelsgefühl suchen.