Diese zeitlose Stadtvilla vereint auf rund 116 m² Wohnfläche Komfort, Funktionalität und ein ideales Zuhause für die ganze Familie. Im Erdgeschoss öffnet sich der helle Wohnbereich mit Küche und Essplatz zu einem Raum, in dem der Alltag fließt: gemeinsam frühstücken, Hausaufgaben begleiten, abends entspannen. Große Fenster holen Licht und Garten hinein. Ein Gäste-WC und der praktische Hauswirtschaftsraum sorgen für Ordnung im Alltag. Oben findet jeder seinen Platz: ein Elternzimmer als Rückzugsort, zwei Kinderzimmer zum Spielen und Träumen sowie ein Familienbad, das den Tag mit Leichtigkeit beginnen lässt.
Merkmale
430 m² Grundstück
Kein Keller
Gäste-WC
Bei Okal bedeutet "einzugsfertig" eine Komplettlösung, bei der vom ersten Beratungsgespräch bis zur Endreinigung alle Leistungen inklusive sind. Sie erhalten die Schlüssel und können direkt einziehen.
Unter anderem sind nachfolgende Leistungen im berechneten Hauspreis (Ausbaustufe: "einzugsfertig") enthalten: + Architektenleistung + Bodengutachten + 2,80 m Raumhöhe + Elektrische Aluminiumrollläden + Zertifizierte Nachhaltigkeit + Frischluftwärmetechnik von PROXON + Sockeldämmung + Einbau der Sanitärobjekte + Verlegung von Boden- und Wandfliesen + Installation von Türen und Türzargen + Innenfensterbänke + Bauendreinigung vor Hausübergabe + Küchengutschein im Wert von Wert von 6.800 EUR
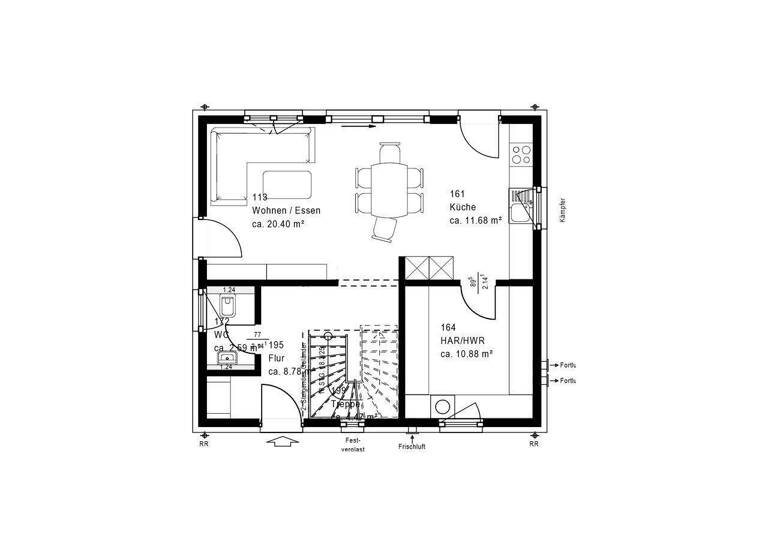
***Der gezeigte Grundrisse dient als Beispiel und kann ohne zusätzliche Kosten individuell angepasst werden, sofern die Gesamtwohn- bzw. bebaute Fläche unverändert bleibt.***
Grundrisse
Grundrisse
1 / 2
Realisiere Dein Projekt
Bausubstanz und Energie
Der Anbieter hat keine Informationen zum Energieverbrauch bereit gestellt.
Zustand der ImmobilieNeubau, Projektiert
Preisdetails
Kaufpreis
831825.8 €831.825,80 €
7.170,91 €/m²
Provision für Käufer
Bitte beachte, das Angebot kann bei Vertragsabschluss die Zahlung einer Provision beinhalten. Weitere Informationen erhältst Du vom Anbieter.
Geschätzte Gesamtkosten
928.068 €1
Kaufpreis
831.826 €
Kaufnebenkosten
96.242 €
2
Notarkosten (1,5%)
12.477 €
Grunderwerbsteuer (6%)
49.910 €
Provision für Käufer (3,57%)
29.696 €
Grundbucheintrag (0,5%)
4.159 €
1Der angezeigte Wert ist eine automatisch berechnete Schätzung von immowelt.
2Bei den Angaben handelt es sich um ortsübliche Werte. Individuelle Kosten können abweichen.
Lage
Oberstedten, Oberursel (61440)
Der Anbieter hat die genaue Adresse nicht freigegeben
Oberursel im Taunus ist eine lebenswerte Stadt direkt vor den Toren Frankfurts. Familien finden hier ein breites Angebot an Schulen - von Grundschulen über Gymnasien, Gesamtschulen und Berufsschulen bis hin zur international renommierten Frankfurt International School. Auch private und alternative Bildungswege, etwa die Waldorfschule, sind vertreten. Die Innenstadt mit ihrer historischen Altstadt bietet zahlreiche Einkaufsmöglichkeiten, ergänzt durch moderne Märkte und Fachgeschäfte in den Stadtteilen. Für größere Shoppingtouren sind Bad Homburg oder Frankfurt schnell erreichbar. Verkehrlich ist Oberursel sehr gut angebunden: Mit der U-Bahn, S-Bahn und Regionalzügen erreicht man Frankfurt in etwa 20 bis 25 Minuten, und über die A5 sowie A661 besteht direkter Anschluss an das Rhein-Main-Straßennetz. Damit verbindet Oberursel die Ruhe und Nähe zur Natur im Taunus mit den Vorteilen einer schnellen Anbindung an die Großstadt.
Weitere Informationen
Sonstiges
Der ausgewiesene Kaufpreis umfasst sowohl das Grundstück als auch das geplante Haus. Nicht enthalten sind die allgemein üblichen Baunebenkosten.
Innovative Pioniere, die bereits 1928 den Grundstein für unseren heutigen Erfolg legten, und erfahrene Mitarbeiter, die Tag für Tag daran arbeiten, unsere hohen Qualitätsziele zu übertreffen - das ist OKAL! Vor mehr als 90 Jahren gegründet, streben wir auch heute noch danach, neuste Entwicklungen als Vorreiter der Branche voranzutreiben und unseren Kunden so einen vollumfänglichen Service anzubieten, der unsere jahrelange Erfahrung mit den modernen Ideen von morgen vereint. Nachhaltig, innovativ, verlässlich - für uns nicht nur leere Worte, sondern gelebte Philosophie, die sich in einem jeden OKAL-Premiumhaus widerspiegelt.
OKAL-Website - https://www.okal.de/haeuser/spring-side/spring-side-2/
Stichworte
Anzahl der Schlafzimmer: 3, Anzahl der Badezimmer: 1, 2 Etagen