

VON SCHLIEBEN IMMOBILIEN VERMITTLUNGS GMBH
Herr Wolfgang von Schlieben
062 ···
Nr. anzeigenPreise & Kosten
Provision für Käufer
3,57 % inkl. MwSt.
Bei Abschluss des notariellen Kaufvertrages wird eine Käuferprovision in Höhe von 3,57 % des Kaufpreises inkl. der gesetzlichen MwSt. (19%) fällig.
Lage
Worms, eine Stadt mit rund 80.000 Einwohnern, liegt am westlichen Ufer des Rheins in Rheinland-Pfalz. Die Stadt ist bekannt als eine der ältesten in Deutschland, mit einer Geschichte, die bis in die Römerzeit zurückreicht. Worms befindet sich etwa auf halbem Weg zwischen Mainz und Mannheim, inmitten einer fruchtbaren, von...
Büro-/Praxisfläche
Kategorie
Bürofläche
Baujahr
1962
Derzeitige Nutzung
vermietet
Geschoss
1. Geschoss
Energie & Heizung
Warum sehe ich diese Anzeige? – Du siehst diese Anzeige basierend auf Ihrer Navigation auf unserer Website und den Suchkriterien, die du verwendet hast.
Weitere Energiedaten
Energieträger
Gas
Heizungsart
Zentralheizung
Details
Objektbeschreibung
Zum Verkauf steht eine attraktive Büroeinheit in bester Lage von Worms, direkt am historischen Wormser Dom. Die Gewerbeeinheit befindet sich im Hochparterre eines gepflegten Wohn- und Geschäftshauses und ist ab sofort Eigennutzung oder Vermietung verfügbar.
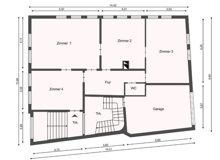
Die ca. 87 m² große Büro- oder Praxisfläche umfasst vier...
Ausstattung
- 4 Räume, Flur, WC im Hochparterre
- direkt am Dom
- 19,15 / 100 Miteigentumsanteile
- ca. 87 m² Büro- oder Praxisfläche
- Gasbrennwertheizung Viessmann, 2023 erneuert
- frisch renoviert
Weitere Informationen
Stichworte
Gesamtfläche: 87,00 m², Bundesland: Rheinland-Pfalz, 4 Etagen, Lage im Bau: links
Anbieter der Immobilie
VON SCHLIEBEN IMMOBILIEN VERMITTLUNGS GMBH
Schimperstr. 4, 68167 Mannheim

Online-ID: 2lrgx5u
Referenznummer: WO-67547N2679
Finde Angebote wie dieses
Hier geht es zu unserem Impressum, den Allgemeinen Geschäftsbedingungen, den Hinweisen zum Datenschutz und nutzungsbasierter Online-Werbung.