Version: 8.22.4Navigation überspringen
799 €
2 Zimmer  •  49,3 m²  •  5. Geschoss  •  frei ab 01.04.2026
Immowelt logo

Wohnung zur Miete
798.51 €
Nettokaltmiete
2 Zimmer  •  49,3 m²  •  5. Geschoss  •  frei ab 01.04.2026

Moderne Wohnung an der U3!

Wohnen auf der Schmelz 

In unmittelbarer Nähe zur Schmelz, nur einen kurzen Spaziergang von der U3 entfernt und somit perfekt an die Innenstadt angebunden, erhebt sich unser bezauberndes Wohnbauprojekt "Wohnen auf der Schmelz", welches durch seine gute Lage und den intelligenten Grundrissen eine Symbiose aus urbanem Leben und Wohnkomfort verspricht. Die unmittelbare Umgebung des Projekts ist von einer erstklassigen Infrastruktur geprägt. Sie bietet zahlreiche Geschäfte für den täglichen Bedarf, gastronomische Einrichtungen für kulinarische Genüsse sowie Parks und Grünanlagen, die Raum für Erholung und Entspannung bieten.

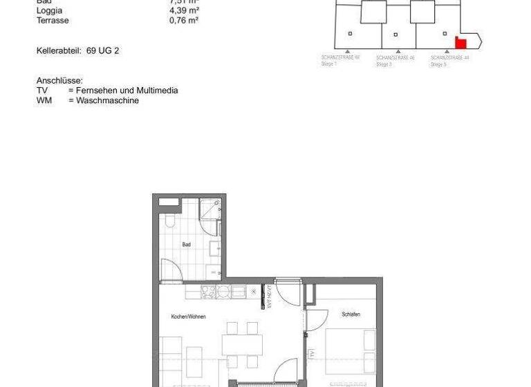
Die Wohnung selbst befindet sich im 2. Dachgeschoss und verfügt über eine großzügige Wohnküche mit vollausgestatteter Einbauküche, ein getrennt begehbares Schlafzimmer, ein Badezimmer mit Dusche, WC und Waschmaschinenanschluss, sowie einen Vorraum. Die dazugehörige Terrasse mit Loggia lädt zum gemütlichen Verweilen ein und rundet das Wohnerlebnis perfekt ab!

Es handelt sich um Musterfotos einer ähnlichen Wohnung im Gebäude!

Ausstattung: 

* Fußbodenheizung über Fernwärme
* 3 Scheiben-Isolierverglasung; außenliegender Sonnenschutz mit Fernbedienung
* Großformatige Fliesen (30 x 60cm)
* Parkettboden Esche
* Sicherheitstüren
* Videosprechanlage
* Kinderwagen/ Fahrradabstellraum
* Gestaltung der Grün- und Freiflächen
* Spielplatz 

Öffentliche Verkehrsanbindung:

* Autobus: 10A, 12A,  
* Straßenbahnlinie: 10, 60
* U-Bahn: U3 Kendlerstraße, U3 Hütteldorfer Straße

Befristung: 5 Jahre, 1 Jahr Kündigungsverzicht, 3 Monate Kündigungsfrist

Strom, Heizung und Warm-/Wasser werden nach Verbrauch abgerechnet. 

Nebenkosten 
3 BMM Kaution, Vertragserrichtungsgebühr

Wir weisen darauf hin, dass zwischen dem Vermittler und dem zu vermittelnden Dritten ein familiäres oder wirtschaftliches Naheverhältnis besteht.

Der Immobilienmakler erklärt, dass er - entgegen dem in der Immobilienwirtschaft üblichen Geschäftsgebrauch des Doppelmaklers - einseitig nur für den Vermieter tätig ist.

Infrastruktur / Entfernungen

Gesundheit
Arzt <250m
Apotheke <500m
Klinik <1.250m
Krankenhaus <1.500m

Kinder & Schulen
Schule <250m
Kindergarten <500m
Universität <750m
Höhere Schule <750m

Nahversorgung
Supermarkt <250m
Bäckerei <500m
Einkaufszentrum <750m

Sonstige
Geldautomat <250m
Bank <250m
Post <250m
Polizei <750m

Verkehr
Bus <250m
U-Bahn <500m
Straßenbahn <500m
Bahnhof <500m
Autobahnanschluss <5.000m

Angaben Entfernung Luftlinie / Quelle: OpenStreetMap

Merkmale

  • frei ab 01.04.2026
  • 5. Geschoss
  • Einbauküche, offene Küche
  • Personenaufzug
  • Gäste-WC
  • Terrasse
  • Bad mit Dusche
  • Bodenbelag: Fliesen, Parkett

Grundrisse

Grundrisse
1 / 1

Realisiere Dein Projekt

Bausubstanz und Energie

Heizwärmebedarf (HWB)

B

Gesamtenergieeffizienz (fGEE)

A
  • Baujahr2023
  • Zustand der ImmobilieNeubau, Gepflegt
  • HeizungsartFußbodenheizung
  • EnergieträgerFernwärme
Immowelt logo

Mietkosten

Gesamtmiete
1.020 €
Nettokaltmiete
18,82 €/m²
798,51 €
Betriebskosten
128,76 €
Kaution
3.060,00 €
Weitere Preisinformationen
Nettokaltmiete: 798,51 EUR

Lage

address-icon
SchanzstraßeWien (1150)

Weitere Informationen

Stichworte Nord-West-Balkon/Terrasse, Anzahl der Badezimmer: 1, Anzahl der separaten WCs: 1, Anzahl Terrassen: 1, Anzahl Loggias: 1, Balkon-Terrassen-Fläche: 5,15 m², Bundesland: Wien

Weitere Services

Lust auf eine Besichtigung?
Eine Frage zur Immobilie?
Nachricht hinzufügen
Mit der Nutzung der oben angegebenen Telefonnummer oder durch Klicken auf „Kontaktieren“ akzeptierst Du die Allgemeinen Nutzungsbedingungen, denen Du jederzeit widersprechen kannst. Weitere Informationen zum Datenschutz

Über den Anbieter

Prinz-Eugen-Straße 8-10, 1040 WIEN
partner badge
10 Jahre Partnerschaft
Herr Leo IdingerDein Kontakt

Weitere Unterlagen

Online-ID: 2nwgt5d
Referenznummer: OBGC20231109134430020b6b314a2cb
EHL Immobilien GmbH
EHL Immobilien GmbH
Bewertung: 4,5 von 5 Sternen
Nachricht hinzufügen
Mit der Nutzung der oben angegebenen Telefonnummer oder durch Klicken auf „Kontaktieren“ akzeptierst Du die Allgemeinen Nutzungsbedingungen, denen Du jederzeit widersprechen kannst. Weitere Informationen zum Datenschutz
Wie zufrieden bist du mit dieser Seite (nicht mit der Immobilie selbst)?