




Wohnung zur Miete1550 €Gesamtmiete exkl. BK3 Zimmer • 91,2 m² • 2. Geschoss
1550 €
Gesamtmiete exkl. BK
3 Zimmer • 91,2 m² • 2. Geschoss
Traumhaft renovierte 3-Zimmer-Wohnung am Burgweg mit Fernsicht über Götzis
Merkmale
- Dachgeschoss, 2. Geschoss
- AuĂźen-Stellplatz
- Fernblick
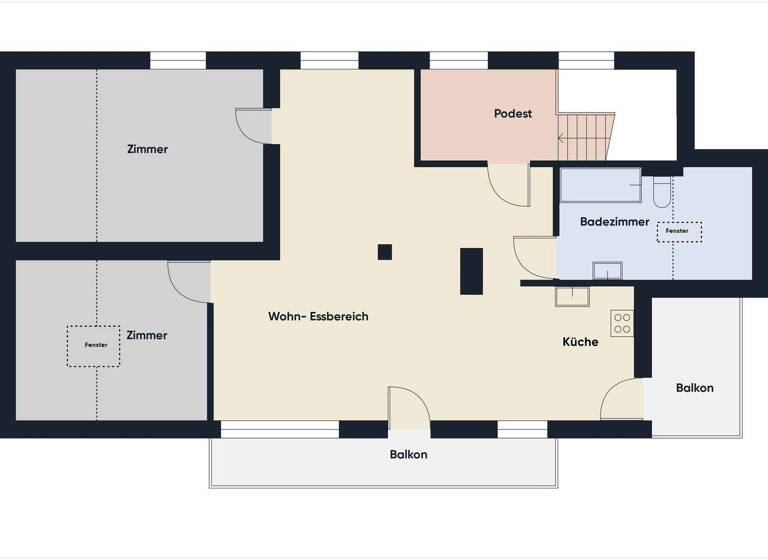
Grundrisse
Grundrisse
1 / 1
Virtueller Rundgang
3D tour

Realisiere Dein Projekt
Bausubstanz und Energie
Heizwärmebedarf (HWB)
C
Gesamtenergieeffizienz (fGEE)
C
- Baujahr1955
- EnergieträgerÖl
Mietkosten
Gesamtmiete
1.550 €
Nettokaltmiete
nicht angegeben
Kaution
keine Angabe
Weitere Preisinformationen
EUR 1.550,00 inkl. BK & MwSt., 1 Stellplatz
Lage

Burgweg 15, Götzis (6840)
Weitere Informationen
Weitere Services
Lust auf eine Besichtigung?
Eine Frage zur Immobilie?
Ăśber den Anbieter
R. Götze GmbH RE/MAX ImmowestMaklerbüro
BundesstraĂźe 87, 6923 Lauterach
Partnerschaft
Frau Christina SohmDein Kontakt
Online-ID: 2mew35s
Referenznummer: 6476

R. Götze GmbH RE/MAX Immowest
Bewertung: 4,3 von 5 Sternen
Wie zufrieden bist du mit dieser Seite (nicht mit der Immobilie selbst)?

