Version: 8.22.6Navigation ĂĽberspringen
Decus Immobilien GmbH
795.000 €
717,9 m²  â€˘  362 m² GrundstĂĽck

Sonstiges zum Kauf • als Kapitalanlage geeignet
795000 €
717,9 m²  â€˘  362 m² GrundstĂĽck

| REPRÄSENTATIVES ZINSHAUS | STADTPARK | BESTLAGE

Zum Verkauf gelangt ein repräsentatives Zinshaus in der malerischen Stadt Spittal an der Drau in Kärnten! 

Das Zinshaus bietet Entwicklungspotential fĂĽr 13 Wohnungen und 3 Geschäftsräumlichkeiten. Entwurfsplanung fĂĽr den Ausbau liegt vor! 

 

Grundfläche: 362 m² 
Nutzfläche: Derzeit 717,91 m2 (5 Wohn,- und 3 Geschäftseinheiten) nach dem Ausbau ca. 817 m² (13 Wohn,- und 3 Geschäftseinheiten)

Kaufpreis: € 795.000,- inkl. Entwurfsplanung.

FĂĽr den täglichen Bedarf befinden sich in unmittelbarer Nähe zahlreiche Einkaufsmöglichkeiten wie Supermärkte und Bäckereien. Auch die medizinische Versorgung ist mit Arzt, Apotheke und Krankenhaus in der Nähe problemlos gewährleistet. Familien mit Kindern profitieren von der Nähe zu Schulen und höheren Bildungseinrichtungen. Direkt am Stadtpark und Schloss gelegen lässt sich diese schöne Immobilie bestens entwickeln! 

 

 

 

 

 

Wir weisen darauf hin, dass zwischen dem Vermittler und dem zu vermittelnden Dritten ein familiäres oder wirtschaftliches Naheverhältnis besteht.

Der Vermittler ist als Doppelmakler tätig.

DECUS Immobilien GmbH - Wir beleben Räume

FĂĽr weitere Informationen und Besichtigungen steht Ihnen gerne Frau  Katharina Hammerl unter der Mobilnummer +43 660 688 33 43 und per E-Mail unter hammerl@decus.at persönlich zur VerfĂĽgung.

www.decus.at | office@decus.at 

 

Wichtige Informationen

Bitte beachten Sie, dass per 13.06.2014 eine neue Richtlinie für Fernabsatz- und Auswärtsgeschäfte in Kraft getreten ist.

Ab 1.4.2024 entfallen die Grundbuchs- und PfandrechtseintragungsgebĂĽhren vorĂĽbergehend fĂĽr Eigenheime bis zu einer Bemessungsgrundlage von EUR 500.000,-. Voraussetzung ist das dringende WohnbedĂĽrfnis, ausgenommen davon sind vererbte oder geschenkte Immobilien. Die Befreiung ist jedoch fĂĽr den Einzelfall zu prĂĽfen, DECUS Immobilien ĂĽbernimmt hierzu keine Haftung.

Ab 01.07.2023 gilt das Erstauftraggeber-Prinzip bei Wohnungsmietverträgen, ausgenommen davon sind Dienst-/Natural-/Werkswohnungen. Wir dĂĽrfen gem. § 17 Maklergesetz darauf hinweisen, dass wir auf die Doppelmaklertätigkeit gem. § 5 Maklergesetz bei Wohnungsmietverträgen verzichten und nur noch einseitig tätig sind (bei den restlichen Vermittlungsarten nicht) und ein wirtschaftliches Naheverhältnis zu unseren Auftraggebern besteht. 

Im Falle eines Abschlusses mit Ihnen oder einem von Ihnen namhaft gemachten Dritten bzw. bei beidseitiger Willensübereinstimmung beträgt unser Honorar (lt. Honorarverordnung für Immobilienmakler) 2 Bruttomonatsmieten (BMM) bei Dienst-/Natural-/Werkwohnungen sowie Suchaufträgen, 3 BMM bei Gewerbe-, PKW-, Keller- und Lagermietverträgen sowie bei Kaufobjekten 3 % des Kaufpreises, zuzüglich der gesetzlichen Umsatzsteuer.

Dieses Objekt wird Ihnen unverbindlich und freibleibend angeboten. Oben angeführte Angaben basieren auf Informationen und Unterlagen des Eigentümers und sind unsererseits ohne Gewähr.

Nähere Informationen sowie unsere AGBs und die Nebenkostenübersichtsblatt finden Sie auf unserer Homepage www.decus.at unter "Service" - "Rechtliches zum FAGG" sowie im Anhang der zugesendeten Objekt-Exposés!

Infrastruktur / Entfernungen

Gesundheit
Arzt <500m
Apotheke <500m
Krankenhaus <500m

Kinder & Schulen
Schule <500m
Kindergarten <1.500m
Höhere Schule <500m

Nahversorgung
Supermarkt <500m
Bäckerei <500m
Einkaufszentrum <500m

Sonstige
Bank <500m
Geldautomat <500m
Polizei <500m
Post <500m

Verkehr
Bus <500m
Autobahnanschluss <2.000m
Bahnhof <1.000m
Flughafen <1.500m

Angaben Entfernung Luftlinie / Quelle: OpenStreetMap

Merkmale

  • 362 m² GrundstĂĽck

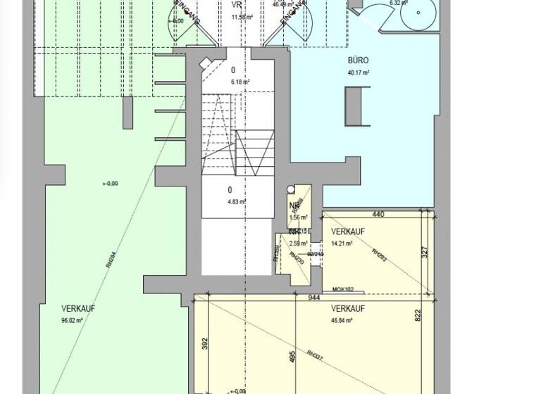
Grundrisse

Grundrisse
1 / 6

Realisiere Dein Projekt

Bausubstanz und Energie

Heizwärmebedarf (HWB)

E

Gesamtenergieeffizienz (fGEE)

Der Anbieter hat keine Daten zum Energieausweis hinterlegt.
  • Baujahr1912
  • Zustand der ImmobilieAltbau (bis 1945)
  • HeizungsartZentralheizung
  • EnergieträgerĂ–l

Preisdetails

Kaufpreis
795000 €
Provision für Käufer
3% des Kaufpreises zzgl. 20% USt.

Lage

address-icon
Spittal an der Drau (9800)
Der Anbieter hat die genaue Adresse nicht freigegeben
Stadtpark, Schloss Porcia

Weitere Informationen

Stichworte Bundesland: Kärnten, 3 Etagen

Weitere Services

Lust auf eine Besichtigung?
Eine Frage zur Immobilie?
Nachricht hinzufĂĽgen
Mit der Nutzung der oben angegebenen Telefonnummer oder durch Klicken auf „Kontaktieren“ akzeptierst Du die Allgemeinen Nutzungsbedingungen, denen Du jederzeit widersprechen kannst. Weitere Informationen zum Datenschutz

Ăśber den Anbieter

Kärtner Straße 39/Annagasse 1, 1010 WIEN
partner badge
6 Jahre Partnerschaft
Frau Katharina HammerlDein Kontakt
Online-ID: 2lqw95f
Referenznummer: OBGC20241018090520200caa7144aa5
Decus Immobilien GmbH
Decus Immobilien GmbH
Bewertung: 4,5 von 5 Sternen
Nachricht hinzufĂĽgen
Mit der Nutzung der oben angegebenen Telefonnummer oder durch Klicken auf „Kontaktieren“ akzeptierst Du die Allgemeinen Nutzungsbedingungen, denen Du jederzeit widersprechen kannst. Weitere Informationen zum Datenschutz
Wie zufrieden bist du mit dieser Seite (nicht mit der Immobilie selbst)?