
BV Bauträger und Immobilien GmbH
Herrn Mario Körber
+49 ···
Nr. anzeigenPreise & Kosten
Kaution
3.000,00
Provision für Mieter
PROVISIONSFREI...!!!
Warum sehe ich diese Anzeige? – Du siehst diese Anzeige basierend auf Ihrer Navigation auf unserer Website und den Suchkriterien, die du verwendet hast.
Lage
1A-Lage
Die Büroeinheit befindet sich im 1. Obergeschoss eines gepflegten Gewerbe-Objektes in der Raiffeisenstraße, mitten in Bindlach.
Die Bayreuther Innenstadt ist etwa 6 km oder 10 Auto-Minuten entfernt.
Eine Anbindungen an den öffentlichen Nahverkehr, befinden sich in unmittelbarer Nähe (Buslinie 328...
Büro-/Praxisfläche
Kategorie
Bürofläche
Energie & Heizung
Warum sehe ich diese Anzeige? – Du siehst diese Anzeige basierend auf Ihrer Navigation auf unserer Website und den Suchkriterien, die du verwendet hast.
Energieausweistyp
Verbrauchsausweis
Gebäudetyp
Nicht-Wohngebäude
Baujahr laut Energieausweis
1985
Gültigkeit
bis 10.01.2034
Endenergieverbrauch (Wärme)
112,10 kWh/(m²·a) - Warmwasser enthalten
Weitere Energiedaten
Energieträger
Gas
Heizungsart
Zentralheizung
Details
Objektbeschreibung
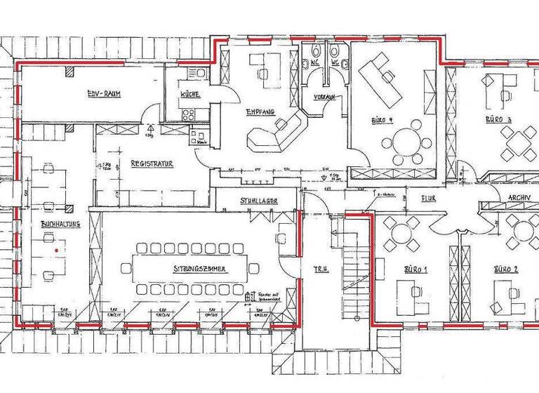
Wer eine hochwertige und komplett ausgestattete Büro- oder Gewerbefläche in zentraler Lage sucht, für den könnte dieses Miet-Angebot sehr interessant sein.
Die moderne Büroeinheit mit hochwertigem Treppenhaus und hellem Zugangsbereich, befindet sich im gesamten 1. Obergeschoss in einem gepflegten Gewerbe-Objekt...
Ausstattung
-zentrale Lage mitten imWohngebiet
-sparsame Gas-Zentralheizung im gesamten Objekt
-weiße Kunststoff-Isolierglas-Fenster
-die Bürofläche umfasst das gesamte 1. Obergeschoss
-eine Teilung der Bürofläche wäre eventuell auch möglich
-Zugang über modernes Treppenhaus mit Marmorböden
-komplett möbliert, inkl...
Weitere Informationen
Flächen
Die Büroeinheit hat eine Fläche von ca. 265 m².
KFZ-Stellplätze sind vor dem Objekt vorhanden.
Anbieter der Immobilie
BV Bauträger und Immobilien GmbH
Pfinzingweg 9, 91058 Erlangen
Online-ID: 2mw3d5p
Referenznummer: 1575
Finde Angebote wie dieses
Hier geht es zu unserem Impressum, den Allgemeinen Geschäftsbedingungen, den Hinweisen zum Datenschutz und nutzungsbasierter Online-Werbung.