Version: 8.22.4Navigation überspringen
4M Immobilien & Consulting GmbH & Co. KG
170.000 €
3 Zimmer  •  60 m²  •  450 m² Grundstück

Einfamilienhaus zum Kauf
170000 €
2.833 €/m²
3 Zimmer  •  60 m²  •  450 m² Grundstück

Autark leben am linken Donauufer mit Badesee in 3425 Langenlebarn (Pachtgrundstück mit günstiger Jahrespacht)

?? Autark leben im Stelzenhaus beim Wasser - Ferienhaus bei Tulln auf Pachtgrund zu verkaufen!

?? 3425 Langenlebarn, Nähe Badesee Linkes Donauufer - FKK-Bereich



Dieses charmante Stelzenhaus befindet sich im FKK-Areal der Tullner Au und bietet Naturliebhaberinnen und Naturliebhabern eine einzigartige Möglichkeit, ein naturverbundenes und nachhaltiges Leben zu führen. Der Strom wird umweltfreundlich über eine Photovoltaikanlage erzeugt, die Wasserversorgung erfolgt über einen hauseigenen Brunnen direkt neben dem Gebäude.

Das Haus steht auf einem rund 450?m² großen, nicht eingezäunten Pachtgrundstück und gilt als Superädifikat - das bedeutet, das Haus befindet sich im Eigentum, während der Grund gepachtet ist.

Der Wohnbereich ist erhöht angelegt, um bei Hochwasser bestmöglichen Schutz zu gewährleisten.

Ein Rückzugsort wie kein anderer: Dieses liebevoll gestaltete Stelzenhaus (BJ 2018) bietet echtes Freiheitsgefühl inmitten unberührter Natur. Perfekt für Naturliebhaber, Ruhesuchende und alle, die unabhängig und nachhaltig leben möchten.

?? Kaufpreis: € 170.000,-
?? Jahrespacht: ca. € 600,-
?? Wohnfläche: ca. 60?m² auf 2 Ebenen
?? Mit dem Auto fährt man direkt bis zum Haus, alternativ kann man auch an der Straße Parken (einen "Abstellplatz" in dem Sinne gibt es nicht)
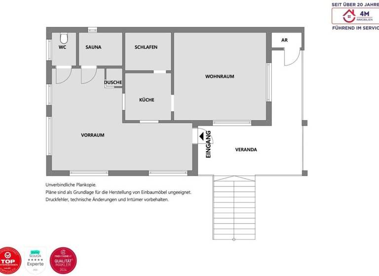
?? Ausstattung: Zwei gemütliche Schlafräume, kleine Sauna, Wohn- & Essbereich, kleine Küche, extra Dusche, großer Vorraum und vieles mehr! Voll ausgestattet &komplett eingerichtet - einfach einziehen und genießen
?? Bauweise: Stelzenhaus, Baujahr 2018, hochwertig gebaut und exzellent gedämmt
??Besonderheit: Perfekt als Ferienimmobilie oder Wochenendhaus

?? Technik & Energie - Autarkie vom Feinsten:
* Hausstromkraftwerk mit Photovoltaik-Anlage inkl. Batteriespeicher - bis zu 4 Tage autarker Strom auch bei Schlechtwetter
* Eigener Trinkwasserbrunnen - unabhängig von der öffentlichen Versorgung
* Heizung: Gasbetriebener Kachelofen für wohlige Wärme
* Notstromoption: Strom kann bei Bedarf auch über Gas erzeugt werden
* Sauna: Betrieb wahlweise mit Holz oder Gas - Wellness ganzjährig möglich
* Lagerfeuerstelle im Garten - für gemütliche Abende unter freiem Himmel

?? Die Liegenschaft liegt idyllisch am linken Donauufer, nur wenige Schritte vom Badesee entfernt - inmitten eines gepflegten FKK-Bereichs. Ein Ort der Ruhe, Freiheit und natürlichen Lebensweise.


Weitere Fotos folgen! Bitte beachten, am Grundrissplan ist nur das EG zu sehen, es gibt noch einen weiteren Schlafbereich im "Dach".


?? Kontakt:
schmidt@4m-immo.at

Merkmale

  • Bezug: sofort
  • 450 m² Grundstück
  • Kein Keller
  • Garten
  • möbliert
  • Swimmingpool

Grundrisse

Grundrisse
1 / 1

Virtueller Rundgang

Video

Realisiere Dein Projekt

Bausubstanz und Energie

Der Anbieter hat keine Informationen zum Energieverbrauch bereit gestellt.
  • Baujahrca. 2018
  • Zustand der ImmobilieHolzhaus, Gepflegt
  • HeizungsartZentralheizung

Preisdetails

Kaufpreis
170000 €
2.833,33 €/m²
Provision für Käufer
3.00 % zzgl. MwSt.

Lage

address-icon
Langenlebarn-Oberaigen (3425)
Der Anbieter hat die genaue Adresse nicht freigegeben

Weitere Informationen

Stichworte Anzahl der separaten WCs: 1, Bundesland: Niederösterreich, Stadtrandlage, Lastenfrei

Weitere Services

Lust auf eine Besichtigung?
Eine Frage zur Immobilie?
Nachricht hinzufügen
Mit der Nutzung der oben angegebenen Telefonnummer oder durch Klicken auf „Kontaktieren“ akzeptierst Du die Allgemeinen Nutzungsbedingungen, denen Du jederzeit widersprechen kannst. Weitere Informationen zum Datenschutz

Über den Anbieter

Margaretenstraße 99, 1050 WIEN
Frau Sabrina SchmidtDein Kontakt
Online-ID: 2n3em59
Referenznummer: 2483/22173
4M Immobilien & Consulting GmbH & Co. KG
4M Immobilien & Consulting GmbH & Co. KG
Nachricht hinzufügen
Mit der Nutzung der oben angegebenen Telefonnummer oder durch Klicken auf „Kontaktieren“ akzeptierst Du die Allgemeinen Nutzungsbedingungen, denen Du jederzeit widersprechen kannst. Weitere Informationen zum Datenschutz
Wie zufrieden bist du mit dieser Seite (nicht mit der Immobilie selbst)?