Gemütliche Single-Wohnung. Die Wohnung verfügt über ein geräumiges Wohnzimmer als Durchgangszimmer zum Schlafzimmer, einer kleinen Küche und einem Tageslichtbad, welches mit einer Dusche, einem Wand-WC, einem Handtuchheizkörper, weißen Wandfliesen und anthrazitfarbenen Bodenfliesen ausgestattet wird. Außerdem wird ein pflegeleichter, moderner Vinyl-Parkett-Boden in Holzoptik verlegt und die Wände werden neu tapeziert und gestrichen. Ebenso werden neue, weiße Zimmertüren verbaut.
*Wir bitten Sie zu beachten, dass es sich bei den Fotos um Beispielbilder handelt, die von den räumlichen Gegebenheiten vor Ort abweichen können.
Merkmale
frei ab 30.05.2026
Badezimmer: Badewanne, Bad mit Fenster
Keller
Garten
Bad mit Fenster; Dachboden; tapeziert; Zentralheizung; Gas; Rollläden; Isolierverglasung; Mieterkeller; Gegensprechanlage; Waschküche; vollständige Wärmedämmung; Gemeinschaftsgarten; EG-Wohnung; Mehrfamilienhaus; Badewanne eingemauert;
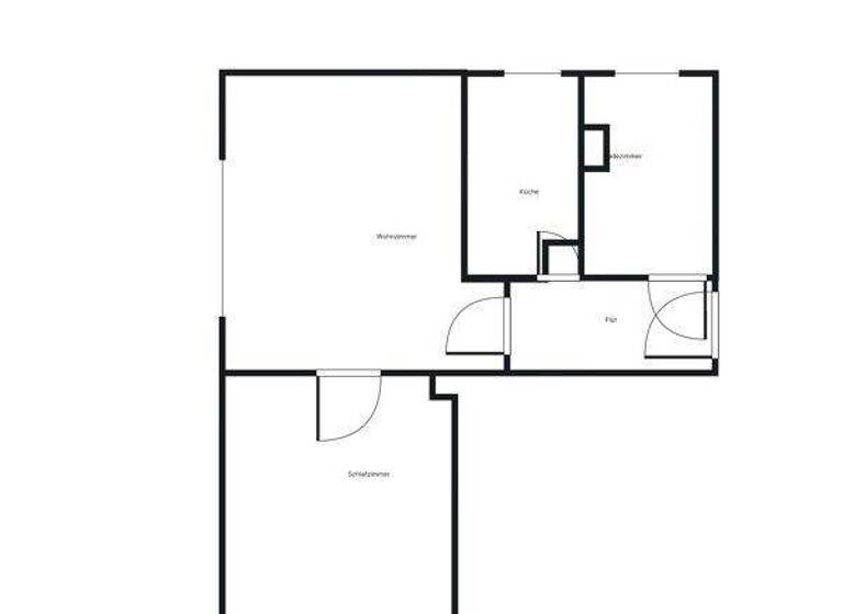
Grundrisse
Grundrisse
1 / 1
Realisiere Dein Projekt
Bausubstanz und Energie
Energieausweis
C
Baujahr1953
HeizungsartZentralheizung
EnergieträgerGas
Mietkosten
Warmmiete
657,83 €
Kaltmiete
10,50 €/m²
426,83 €
Nebenkosten
149 €
Heizkosten
82 €
Kaution
853.66 €853,66 €
Lage
In der Senke 7, Weitmar, Bochum (44793)
Das Wohnhaus befindet sich in einer ruhigen Seitenstraße in dem Stadtteil Bochum-Engelsburg. Einkaufsmöglichkeiten für den täglichen Bedarf sind mit der Buslinie 345, die sich unweit vom Objekt befindet, in ca. 5 Minuten zu erreichen. Eine Anbindung an das Fernstraßennetz ist in unmittelbarer Nähe zum Wohnhaus vorhanden. Grün- und Erholungsflächen zur Entspannung nach der Arbeit, sind in wenigen Gehminuten fußläufig erreichbar.
Weitere Informationen
Sonstiges
Profitieren Sie von Vonovia Grünstrom aus 100% erneuerbaren Energien und vielen weiteren Vorteilen:
- Attraktive Arbeits- und Grundpreise - Sicherheit bei der Energieversorgung - unkomplizierter und schneller Wechselservice - alles im Blick mit der Mein Vonovia App
Sprechen Sie unsere VermieterInnen gerne im Rahmen der Besichtigung auf die Möglichkeiten zum Bezug von Vonovia-Grünstrom an!
Hinweise darüber, wie die Vonovia Ihre personenbezogenen Daten als Interessent verarbeitet, erhalten Sie unter www.vonovia.com/datenschutz. Alle Angaben in diesem Exposé wurden sorgfältig und so vollständig wie möglich gemacht. Gleichwohl kann das Vorhandensein von Fehlern nicht ausgeschlossen werden. Die Angaben in diesem Exposé erfolgen daher ohne jede Gewähr. Maßgeblich sind die im Mietvertrag geschlossenen Vereinbarungen. Soweit die Grundrissgrafiken Maßangaben und Einrichtungen enthalten, wird auch für diese jegliche Haftung ausgeschlossen. Mietverhandlungen sind ausschließlich über den benannten Ansprechpartner zu führen. Mietpreisänderungen bleiben vorbehalten.
Weitere Immobilienangebote finden Sie unter www.vonovia.de und in der Mein Vonovia App.