

Haus zum Kauf1150000 €6.765 €/m²3 Zimmer • 170 m² • 160 m² Grundstück
1150000 €
6.765 €/m²
3 Zimmer • 170 m² • 160 m² Grundstück
Stadthaus-Projekt in zentraler Lage von Alaró mit Garage und Garten - Einzugsbereit
Merkmale
- 160 m² Grundstück
- Terrasse
- voll klimatisiert
- Swimmingpool
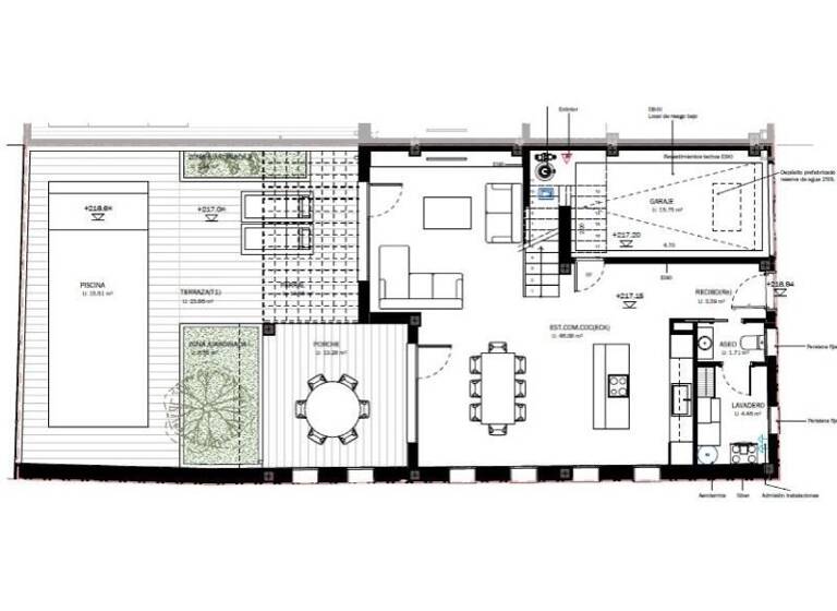
Grundrisse
Grundrisse
1 / 2
Realisiere Dein Projekt
Bausubstanz und Energie
Möchtest du Details zum Energieverbrauch?

- Baujahr0
- HeizungsartZentralheizung
Preisdetails
Kaufpreis
1150000 €
6.764,71 €/m²
Provision für Käufer
Bitte beachte, das Angebot kann bei Vertragsabschluss die Zahlung einer Provision beinhalten. Weitere Informationen erhältst Du vom Anbieter.
Lage

Alaró (07340)
Der Anbieter hat die genaue Adresse nicht freigegeben
Weitere Informationen
Weitere Services
Lust auf eine Besichtigung?
Eine Frage zur Immobilie?
Über den Anbieter
Living Blue MallorcaMaklerbüro
Placa Hostals 8, 07320 SANTA MARÍA DEL CAMÍ
Partnerschaft
Living Blue MallorcaDein Kontakt
Online-ID: 23YRIKPK3UA2
Referenznummer: 4314

Living Blue Mallorca
Bewertung: 5 von 5 Sternen
Wie zufrieden bist du mit dieser Seite (nicht mit der Immobilie selbst)?

