STAN B5 prizemlje Dvosobni stan 58,06 m obracunske povrsine (sa vrtom) Orijentacija: jug istok
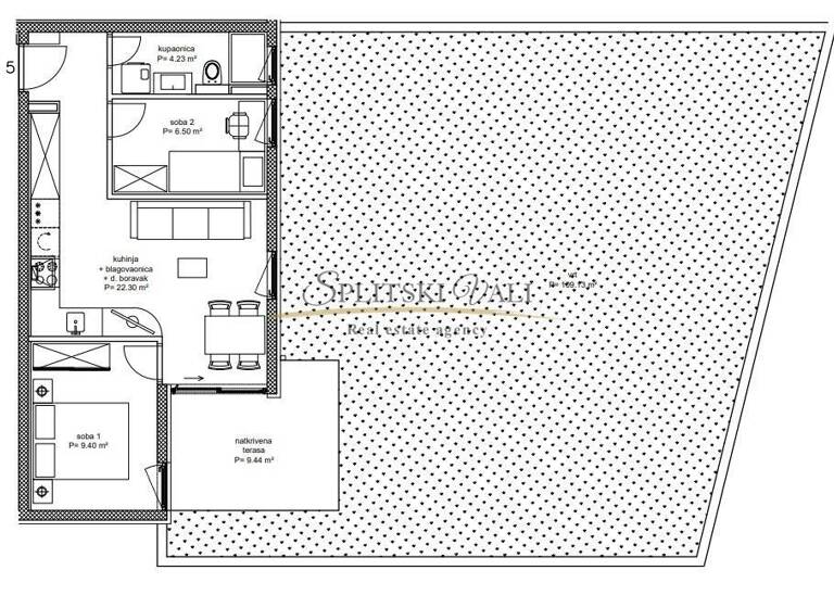
Stan se sastoji od dnevnog boravka s kuhinjom i blagovaonicom, dvije spavace sobe, kupaonice, natkrivene terase i vrta povrsine 109,13 m. Ukupna obracunska povrsina iznosi 58,06 m. Tlocrt i detaljna specifikacija nalaze se u slikama oglasa.
Oprema ukljucuje troslojni parket, talijanske plocice, podno grijanje u kupaonici, troslojnu stolariju, elektricne podizace roleta, protuprovalna i protupozarna vrata te video parlafon.
Projekt se sastoji od dvije moderne stambene zgrade s podzemnom garazom, smjestene na mirnoj lokaciji idealnoj za obiteljski zivot, u blizini svih sadrzaja.
Rok zavrsetka: kraj 2027. Garazno mjesto: 35.000 Placanje: fazno, prema dinamici gradnje.