Version: 8.25.1Navigation überspringen
4.500 €
840 m² Bürofläche
Immowelt logo

Büro zur Miete
4.500 €
840 m² Bürofläche

Renovierte und vollständig möblierte Büroeinheit in attraktiver Lage in Nonnweiler

Zur gewerblichen Vermietung steht eine großzügige und repräsentative Büroetage mit einer Mietfläche von ca. 840 m², die ideale Voraussetzungen für moderne Unternehmensstrukturen bietet. Die Fläche überzeugt durch ihre durchdachte Raumaufteilung und eignet sich hervorragend als Firmensitz, Verwaltungsstandort oder für dienstleistungsorientierte Betriebe.

Die Räumlichkeiten wurden renoviert und präsentieren sich in einem gepflegten, zeitgemäßen Zustand. Dank der vorhandenen Möblierung ist ein kurzfristiger und unkomplizierter Bezug möglich, ohne zusätzlichen Investitionsaufwand für die Einrichtung. Dies ermöglicht einen effizienten Start in den neuen Geschäftsräumen.

Die Übergabe erfolgt nach Absprache und bietet somit flexible Gestaltungsmöglichkeiten hinsichtlich des Einzugstermins.

Die monatliche Nettokaltmiete beträgt 4.500 EUR und steht in einem attraktiven Verhältnis zur großzügigen Fläche und der gebotenen Ausstattung.

Ein weiterer Vorteil sind die Stellplätze direkt vor dem Gebäude, die sowohl Mitarbeitern als auch Kunden komfortable Parkmöglichkeiten bieten und zur guten Erreichbarkeit des Standorts beitragen.

Diese Büroetage bietet optimale Bedingungen für Unternehmen, die Wert auf großzügige Flächen, eine gepflegte Ausstattung und eine gute Erreichbarkeit legen.

Weiterführende Informationen erhalten Sie gerne auf Nachfrage.

Merkmale

  • Bezug: nach Absprache
- renovierte Büroetage in attraktiver Lage
- ca. 840 m² Mietfläche
- vollständig möbliert
- Stellplätze vor dem Gebäuden
- Übernahme nach Absprache
- 4.500 EUR / Monat (netto/kalt)

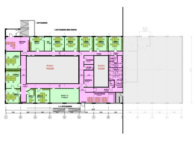
Grundrisse

Grundrisse
1 / 1

Realisiere Dein Projekt

Bausubstanz und Energie

Möchtest du Details zum Energieverbrauch?info_energy_calculation-icon
  • Baujahr1977
  • Zustand der Immobilierenoviert / saniert
Immowelt logo

Mietkosten

Nettomiete zzgl. Nebenkosten
4.500 €
Provision für Mieter
3,57 Monatsnettokaltmieten inkl. Mwst.
Kaution
keine Angabe

Lage

address-icon
BraunshausenNonnweiler (66620)
Der Anbieter hat die genaue Adresse nicht freigegeben
Die Immobilie befindet sich in einem etablierten und gut frequentierten Wirtschaftspark der Gemeinde Nonnweiler im nördlichen Saarland. Der Standort ist klar gewerblich geprägt und zeichnet sich durch eine gewachsene Struktur aus mittelständischen Betrieben aus den Bereichen Handwerk, Produktion, Logistik und Dienstleistung aus. Diese Umgebung schafft ein professionelles und funktionales Arbeitsumfeld und bietet ideale Voraussetzungen für unterschiedlichste gewerbliche Nutzungen.

Die Anbindung an das überregionale Straßennetz ist sehr gut: Die nahegelegene Autobahn A1 ist rund 500 Meter entfernt und ermöglicht eine schnelle Erreichbarkeit der regionalen Zentren im Saarland sowie der angrenzenden Bundesländer Rheinland-Pfalz und Nordrhein-Westfalen. Auch die luxemburgische Grenze ist von hier aus gut erreichbar, was den Standort zusätzlich für grenzüberschreitend tätige Unternehmen attraktiv macht.

Der Wirtschaftspark verfügt über eine leistungsfähige Infrastruktur mit großzügigen Verkehrsflächen, guten Rangier- und Andienungsmöglichkeiten sowie ausreichend Parkraum. Die ruhige, funktionale Lage abseits reiner Wohngebiete gewährleistet einen reibungslosen Betriebsablauf und bietet gleichzeitig ein professionelles Umfeld für Mitarbeiter, Kunden und Geschäftspartner.

Insgesamt handelt es sich um einen strategisch gut positionierten Gewerbestandort mit nachhaltiger Nachfrage, der sowohl für Eigennutzer als auch für Kapitalanleger eine interessante Perspektive bietet.

Entfernungen:

Trier: ca. 40 km / 30-40 Min. Fahrtzeit
Luxemburg: ca. 55-60 km / 45-60 Min. Fahrtzeit
Saarbrücken: ca. 45-50 km / 40-55 Min. Fahrtzeit
Saarlouis: ca. 50-60 km / 45-60 Min. Fahrtzeit
Wittlich: ca. 55-60 km / 40-50 Min. Fahrtzeit
Koblenz: ca. 120-130 km / 90-105 Min. Fahrtzeit
Mainz: ca. 140-150 km / 105-135 Min. Fahrzeit

Weitere Informationen

Sonstiges HAFTUNGSAUSSCHLUSS:
Alle Angaben und Informationen in diesem Exposé zum Objekt beruhen auf den Angaben des Eigentümers beziehungsweise Dritter. Für deren Richtigkeit, Vollständigkeit und Aktualität übernehmen wir daher keine Haftung. Irrtümer, Zwischenverkauf oder Vermietung bleiben vorbehalten. Auch weisen wir darauf hin, dass telefonische und schriftliche Auskünfte unverbindlich sind. Eine Haftung jeglicher Art wird ausdrücklich ausgeschlossen.

HINWEIS AUF MÖGLICHE SCHADSTOFFE:
Wir weisen unsere Interessenten darauf hin, dass bei Immobilien bestimmter Baujahre oder Bauweisen die Verwendung gesundheitsgefährdender Baustoffe (z. B. Asbest, künstliche Mineralfasern, PCB, Formaldehyd oder vergleichbare Materialien) nicht ausgeschlossen werden kann. Eine Prüfung hierauf wurde durch uns nicht vorgenommen. Interessenten wird daher empfohlen im Bedarfsfall eigene sachverständige Untersuchungen vornehmen zu lassen.

PROVISIONSHINWEIS:
Die Gilbers & Baasch Immobilien GmbH ist als Makler gewerbsmäßig tätig. Im Falle eines Abschluss eines wirksamen Mietvertrages über die angebotene Immobilie ist vom Mieter eine Provision in Höhe von 3,57 Monatsnettokaltmieten (inkl. der gesetzlichen Umsatzsteuer in Höhe von aktuell 19 %) an den Makler zu zahlen. Der Interessent erkennt durch Kontaktaufnahme mit dem Makler und Anforderung von Unterlagen den Provisionsanspruch ausdrücklich an. Es gelten unsere allgemeinen Geschäftsbedingungen.

ALLGEMEINE HINWEISE:
Aus Gründen der Vertraulichkeit von Objektdaten können wir nur Anfragen mit vollständiger Angabe Ihrer Kontaktdaten bearbeiten. Bitte geben Sie daher bei Ihrer Online- oder E-Mail-Anfrage Ihre Anschrift und eine Telefonnummer an, unter der wir Sie bei eventuellen Rückfragen erreichen können. Alle Informationen zum Objekt sind vertraulich zu behandeln und nur für den Empfänger persönlich bestimmt. Eine Weitergabe der Daten an Dritte ist nicht gestattet.

Weitere Informationen sowie aktuelle Immobilienangebote für die Großregion Trier, Mosel, Eifel, Hunsrück, Saar und Luxemburg finden Sie unter www.gilbers-baasch.de .

Ausführliches Exposé lesen: - https://www.gilbers-baasch.de/immobilien/renovierte-und-vollstaendig-moeblierte-bueroeinheit-in-attraktiver-lage-in-nonnweiler Stichworte Gesamtfläche: 840,00 m², Bundesland: Saarland

Weitere Services

Lust auf eine Besichtigung?
Eine Frage zur Immobilie?
Mit einer persönlichen Nachricht hast du bessere Chancen auf eine Antwort.
Mit der Nutzung der oben angegebenen Telefonnummer oder durch Klicken auf „Kontaktieren“ akzeptierst Du die Allgemeinen Nutzungsbedingungen, denen Du jederzeit widersprechen kannst. Weitere Informationen zum Datenschutz

Über den Anbieter

Bruchhausenstr. 23, 54290 Trier
partner badge
Partnerschaft
Herr Markus Maas
Herr Markus MaasDein Kontakt
Online-ID: 266M6Q8VEAX5
Referenznummer: 8401
Gilbers & Baasch Immobilien GmbH | Trier
title
Gilbers & Baasch Immobilien GmbH | Trier
Bewertung: 4,9 von 5 Sternen
Mit einer persönlichen Nachricht hast du bessere Chancen auf eine Antwort.
Mit der Nutzung der oben angegebenen Telefonnummer oder durch Klicken auf „Kontaktieren“ akzeptierst Du die Allgemeinen Nutzungsbedingungen, denen Du jederzeit widersprechen kannst. Weitere Informationen zum Datenschutz
Wie zufrieden bist du mit dieser Seite (nicht mit der Immobilie selbst)?