Version: 8.24.1Navigation überspringen
301.300 €
2 Zimmer  •  41,3 m²  •  frei ab 01.09.2028
Immowelt logo

Wohnung zum Kauf
301300 €
6.323 €/m²
2 Zimmer  •  41,3 m²  •  frei ab 01.09.2028

U6 Burggasse: Perfekt geplante 2 Zimmer Wohnung, WOHNEN AM PARK - Urban & Grün

WOHNEN AM PARK - Urbanes Leben mit Grünblick

In ruhiger Lage, eingebettet in eine verkehrsberuhigte Sackgasse direkt am idyllischen Arik-Brauer-Park, entsteht ein exklusives Wohnprojekt mit rund 150 hochwertig ausgestatteten Eigentumswohnungen - ideal für alle, die urbanes Wohnen mit Naturnähe verbinden möchten. Die smart geplanten Wohnflächen von ca. 30?m² bis 130?m² bieten für jede Lebensphase das passende Zuhause.

Ob kompakte Apartments für Singles, Anleger und Vorsorgemodelle oder großzügige 3- bis 4-Zimmer-Wohnungen für Paare und Familien - hier trifft durchdachte Architektur auf zeitgemäßen Wohnkomfort. Fast alle Einheiten punkten mit privaten Freiflächen wie Balkon, Loggia, Terrasse oder Eigengarten - perfekt, um die grüne Umgebung in vollen Zügen zu genießen.

Ein gepflegter, begrünter Innenhof, ein Kleinkinderspielplatz sowie Fahrrad- und Kinderwagenräume bieten zusätzlichen Raum für Begegnung, Spiel und Erholung. Ein Gemeinschaftsraum lädt zu nachbarschaftlichem Miteinander ein. Für höchsten Komfort sorgt die hauseigene Tiefgarage - bequem und barrierefrei gelangen Sie mit dem Aufzug direkt in Ihr neues Zuhause.

Geplante Fertigstellung: 2028 - sichern Sie sich schon jetzt Ihren Platz im Grünen mitten in der Stadt!

NEBENKOSTEN
Der guten Ordnung halber halten wir fest, dass, sofern im Angebot nicht anders vermerkt, bei erfolgreichem Abschlussfall eine Provision anfällt, die den in der Immobilienmaklerverordnung BGBI. 262 und 297/1996 festgelegten Sätzen entspricht - das sind 3 % des Kaufpreises zzgl. 20 % USt. Diese Provisionspflicht besteht auch dann, wenn Sie die Ihnen überlassenen Informationen an Dritte weitergeben. Es besteht ein wirtschaftliches Naheverhältnis zum Verkäufer. Wir weisen darauf hin, dass wir als Doppelmakler tätig sind. Die Vertragserrichtung und Treuhandabwicklung ist gebunden an ARNOLD Rechtsanwälte GmbH, Stoß im Himmel 1, 1010 Wien. Die Kosten betragen 1,5 % des Kaufpreises zzgl. 20 % USt. sowie Barauslagen und Beglaubigung.

Wir weisen darauf hin, dass zwischen dem Vermittler und dem zu vermittelnden Dritten ein familiäres oder wirtschaftliches Naheverhältnis besteht.

Der Vermittler ist als Doppelmakler tätig.

Infrastruktur / Entfernungen

Gesundheit
Arzt <500m
Apotheke <500m
Klinik <500m
Krankenhaus <1.500m

Kinder & Schulen
Schule <500m
Kindergarten <500m
Universität <1.000m
Höhere Schule <1.000m

Nahversorgung
Supermarkt <500m
Bäckerei <500m
Einkaufszentrum <500m

Sonstige
Geldautomat <500m
Bank <500m
Post <500m
Polizei <500m

Verkehr
Bus <500m
U-Bahn <500m
Straßenbahn <500m
Bahnhof <500m
Autobahnanschluss <4.500m

Angaben Entfernung Luftlinie / Quelle: OpenStreetMap

Merkmale

  • frei ab 01.09.2028
  • offene Küche
  • Personenaufzug
  • Balkon
  • Barrierefrei

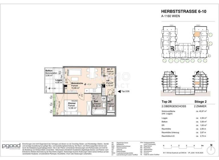
Grundrisse

Grundrisse
1 / 1

Realisiere Dein Projekt

Bausubstanz und Energie

Heizwärmebedarf (HWB)

B

Gesamtenergieeffizienz (fGEE)

A
  • Baujahr1972
  • Zustand der ImmobilieNeubau, renoviert / saniert
  • EnergieträgerFernwärme
Immowelt logo

Preisdetails

Kaufpreis
301300 €
6.323,19 €/m²
Provision für Käufer
3% zzgl. 20% USt.

Lage

address-icon
Wien (1160)
Perfekte Infrastruktur & urbaner Lifestyle

Die Lage überzeugt mit ausgezeichneter öffentlicher Anbindung: Die U6-Station Burggasse-Stadthalle sowie die Straßenbahnlinien 6, 9, 18, 49 und 52 sorgen für eine schnelle Verbindung in alle Richtungen. Der Autobus 48A bringt Sie in wenigen Minuten direkt zum Ring - ideal für den schnellen Weg ins Zentrum.

Auch die Nahversorgung lässt keine Wünsche offen: Sämtliche Geschäfte des täglichen Bedarfs befinden sich in unmittelbarer Nähe. Die beliebte Lugner City mit vielfältigen Shops, Gastronomie und Kino ist fußläufig erreichbar. Ergänzt wird das Angebot durch die Westbahnhof-City, die nicht nur durch ihre Vielzahl an Geschäften punktet, sondern auch mit einem Supermarkt, der an Sonn- und Feiertagen geöffnet hat - ein echter Pluspunkt. In direkter Umgebung liegt zudem die Mariahilfer Straße, eine der beliebtesten Einkaufsmeilen Wiens mit zahlreichen Flagship-Stores, Boutiquen und Cafés.

Kulinarik und urbanes Flair bieten der trendige Brunnenmarkt und der Yppenplatz, während der angrenzende 7. und 8. Bezirk mit seiner vielfältigen Lokalszene zum Genießen und Verweilen einlädt. Für Erholung im Grünen sorgen der direkt vor der Haustür gelegene Arik-Brauer-Park sowie die schnell erreichbaren Naherholungsgebiete Wilhelminenberg und Schönbrunn. Wer mit dem Auto unterwegs ist, profitiert von der schnellen Anbindung an die Stadtausfahrten über den nahegelegenen Gürtel.

Weitere Informationen

Stichworte Fahrradraum, Anzahl der Badezimmer: 1, Anzahl der separaten WCs: 1, Anzahl Balkone: 1, Anzahl Loggias: 1, Balkon-Terrassen-Fläche: 8,12 m², Bundesland: Wien, 7 Etagen

Weitere Services

Lust auf eine Besichtigung?
Eine Frage zur Immobilie?
Nachricht hinzufügen
Mit der Nutzung der oben angegebenen Telefonnummer oder durch Klicken auf „Kontaktieren“ akzeptierst Du die Allgemeinen Nutzungsbedingungen, denen Du jederzeit widersprechen kannst. Weitere Informationen zum Datenschutz

Über den Anbieter

Schnirchgasse 17, 1030 WIEN
Frau Tsvetilena GalabinovaDein Kontakt
Online-ID: 26J3R5R5EF3W
Referenznummer: OBGC20250826161800618b24b4b8e99
IMMOcontract Immobilien Vermittlung GmbH
IMMOcontract Immobilien Vermittlung GmbH
Bewertung: 3,5 von 5 Sternen
Nachricht hinzufügen
Mit der Nutzung der oben angegebenen Telefonnummer oder durch Klicken auf „Kontaktieren“ akzeptierst Du die Allgemeinen Nutzungsbedingungen, denen Du jederzeit widersprechen kannst. Weitere Informationen zum Datenschutz
Wie zufrieden bist du mit dieser Seite (nicht mit der Immobilie selbst)?