Version: 8.24.0Navigation überspringen
1.738 €
397 m² Bürofläche
Immowelt logo

Praxisfläche zum Kauf
1738,04 Euro pro Quadratmeter
397 m² Bürofläche

VIELSEITIG: Attraktive Gewerbefläche Karlsruhe Neureut zur Nutzung als Büro, Ladenfläche oder Praxis

Die zum Verkauf stehende Gewerbefläche befindet sich im Erdgeschoss eines im Jahr 1973 erbauten und laufend gepflegten Wohn- und Geschäftshauses in verkehrsgünstiger Lage von Karlsruhe-Neureut. Das Gebäude überzeugt durch seine solide Bauweise, die gute Erreichbarkeit sowie ein gemischt genutztes Umfeld aus Wohn- und Gewerbenutzung. Die Fläche ist ebenerdig zugänglich und barrierefrei gestaltet, wodurch sie sich ideal für Kunden- und Publikumsverkehr eignet.

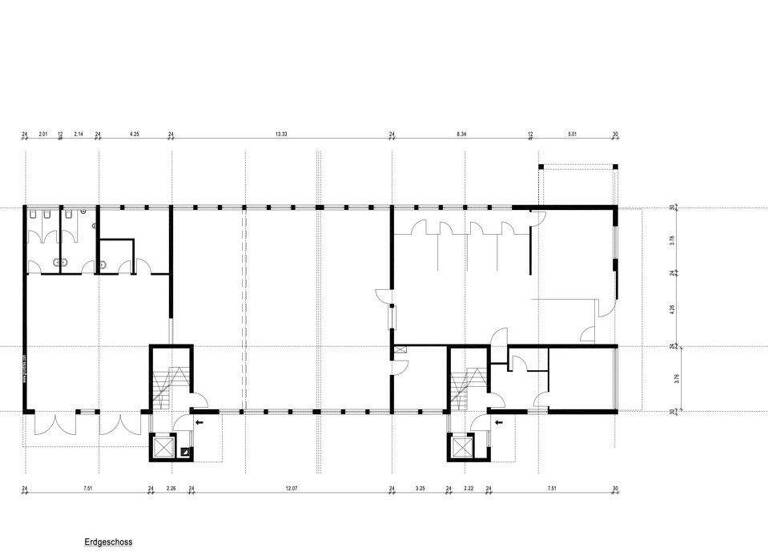
Die Gesamtfläche umfasst rund 397 m² und ist in zwei Einheiten aufgeteilt. Die kleinere Einheit mit etwa 27 m² ist langfristig vermietet und wird aktuell als Reisebüro genutzt. Sie verfügt über einen eigenen Nebenraum mit WC und Teeküche und bietet dadurch stabile und verlässliche Mieteinnahmen.

Die größere Einheit mit rund 270 m² Nutzfläche sowie zusätzlich etwa 100 m² Lager- und Nebenflächen einschließlich Sanitäranlagen ist seit dem 01.02.2026 frei. Damit eröffnet sich für einen Käufer die Möglichkeit, diese großzügige Fläche ganz nach eigenen Vorstellungen zu gestalten - sei es zur Eigennutzung oder für eine Neuvermietung nach individuellen Anforderungen. Die flexible Raumstruktur bietet vielfältige Nutzungsmöglichkeiten, beispielsweise für Büro- oder Praxisräume, ein Ladenlokal, einen Showroom oder kombinierte Konzepte.

Beide Einheiten bildeten ursprünglich eine zusammenhängende Fläche und können bei Bedarf mit überschaubarem Aufwand wieder zusammengeführt werden. Dies erhöht die Nutzungsvarianten zusätzlich und schafft attraktive Perspektiven für unterschiedliche Gewerbekonzepte.

Zwei zugehörige Kellerräume, die jeweils für 40 € monatlich vermietet sind, sorgen für zusätzlichen Stauraum. Beheizt wird das Objekt über Fernwärme. Doppelverglaste Holzfenster gewährleisten angenehme Lichtverhältnisse und ein ausgewogenes Raumklima.

Insgesamt präsentiert sich die Gewerbefläche als gepflegte, solide und vielseitig nutzbare Einheit in gefragter Lage von Karlsruhe-Neureut. Sie eignet sich sowohl für Eigennutzer, die eine repräsentative Fläche suchen, als auch für Kapitalanleger, die eine langfristig stabile und gleichzeitig entwicklungsfähige Immobilie erwerben möchten.

Interesse geweckt?
Wir freuen uns auf Ihre Anfrage.

Merkmale

  • Bezug: nach Vereinbarung
  • vermietet
  • Erdgeschoss
  • Keller
- Baujahr 1973
- Gesamtfläche ca. 397m²
- die kleine Teilfläche ist derzeit an ein Reisebüro vermietet, der größere Teil steht derzeit leer
- Aufgeteilt in zwei Teilflächen ca. 27m² und ca. 270m² sowie ca. 100m² Lagerfläche/Sanitäranlagen
- zwei Kellerräume inkl. / derzeit vermietet für jeweils 40€
- Fernwärme Zentralheizung
- doppelverglaste Holzfenster

Grundrisse

Grundrisse
1 / 1

Realisiere Dein Projekt

Bausubstanz und Energie

Energieausweis

Endenergiebedarf (Wärme)

  • Baujahr1973
  • Zustand der ImmobilieGepflegt
  • EnergieträgerFernwärme
Immowelt logo

Preisdetails

Kaufpreis
690000 €
1.738,04 €/m²
Provision für Käufer
2,38% inkl. der gesetzlichen MwSt. zzgl. MwSt.
Wir arbeiten ausschließlich auf Basis eines Erfolgshonorars von 2,38% der Kaufsumme inkl. der gesetzl. MwSt., freibleibend einer Provision der anderen Vertragsseite.
Geschätzte Gesamtkosten
706.422 €1
Kaufpreis
690.000 €
Provision für Käufer (2,38%)
16.422 €
1Der angezeigte Wert ist eine automatisch berechnete Schätzung von immowelt.
2Bei den Angaben handelt es sich um ortsübliche Werte. Individuelle Kosten können abweichen.

Lage

address-icon
NeureutKarlsruhe (76149)
Der Anbieter hat die genaue Adresse nicht freigegeben
Die Gewerbefläche befindet sich im Karlsruher Stadtteil Neureut, einem etablierten und stetig wachsenden Wirtschaftsstandort im Norden der Fächerstadt. Die Lage überzeugt durch gute Erreichbarkeit, solide Infrastruktur und ein attraktives Unternehmensumfeld.

Über die B36 besteht eine direkte Anbindung an die Karlsruher Innenstadt sowie an die Autobahn A5, wodurch Kunden und Lieferanten den Standort schnell erreichen. Eine Straßenbahnhaltestelle (Linie S2) liegt nur wenige Gehminuten entfernt und sorgt für eine optimale ÖPNV-Anbindung.

Das Umfeld ist geprägt von kleineren Gewerbeeinheiten, Handwerksbetrieben und Dienstleistungsunternehmen, ergänzt durch Einzelhandel, Gastronomie und Nahversorgung - ideal für Betriebe, die von einer guten Erreichbarkeit und gewachsenen Infrastruktur profitieren möchten.

Ausreichende Stellplätze und Zufahrtsmöglichkeiten für Pkw und Lkw sind vorhanden, was die Fläche auch für logistische oder handwerksnahe Nutzungen interessant macht.

Weitere Informationen

Sonstiges Wir arbeiten bei diesem Objekt ausschließlich auf Basis eines Erfolgshonorars, das sich wie folgt zusammensetzt: Der Käufer zahlt im Erfolgsfall an die Firma Pell-Rich Immobilien eine Maklerprovision in Höhe von 2,38% inkl. der gesetzl. Mehrwertsteuer der Kaufsumme.
Wir weisen daraufhin, dass wir mit einem qualifizierten Makleralleinauftrag arbeiten, in dem die Auftraggeberseite (Verkäuferseite) uns nach Abschluss des Kaufvertrages dieselbe Provisionshöhe schuldig ist.
Die Provision ist fällig bei notarieller Beurkundung des Kaufobjektes.

Es gelten die angehängten Geschäftsbedingungen, die Sie sich auch von unserer Homepage entnehmen können.

Ein Zwischenverkauf bleibt vorbehalten.

Für die Richtigkeit der gemachten Angaben können wir keine Gewähr übernehmen.
Die Informationen in der vorliegenden Form haben wir vom Eigentümer /Auftraggeber bzw. Hausverwalter erhalten und in diesem Angebot weitergegeben, ohne Haftung für die Richtigkeit und Vollständigkeit.

Finanzierungsfragen? - Für Ihre individuelle und nach Ihren Bedürfnissen ausgerichtete Immobilienfinanzierung können wir Ihnen gerne behilflich sein, da Pell-Rich Immobilien Partner von Ka-Finanz ist.
Alle weiteren Infos zu aktuellen Konditionen oder zur Beantragung eines Finanzierungspasses und Terminvereinbarung mit Ihrem Finanzierungsexperten Herrn Eschbacher, finden Sie hier:
https://www.pell-rich.de/immobilienfinanzierung/

Weitere Angebote unserer Firma finden Sie unter: www.pell-rich.de/wohnen Stichworte Gesamtfläche: 397,00 m², Verkaufsfläche: 397,00 m², Anzahl der separaten WCs: 2

Weitere Services

Lust auf eine Besichtigung?
Eine Frage zur Immobilie?
Nachricht hinzufügen
Mit der Nutzung der oben angegebenen Telefonnummer oder durch Klicken auf „Kontaktieren“ akzeptierst Du die Allgemeinen Nutzungsbedingungen, denen Du jederzeit widersprechen kannst. Weitere Informationen zum Datenschutz

Über den Anbieter

Am Sandfeld 13a, 76149 Karlsruhe
Herr Christopher Doll
Herr Christopher DollDein Kontakt
Online-ID: 2nr9p5n
Referenznummer: 972_1
Pell-Rich Immobilien Michael Pellinghoff & Thomas Gierich GbR
title
Pell-Rich Immobilien Michael Pellinghoff & Thomas Gierich GbR
Bewertung: 4,6 von 5 Sternen
Nachricht hinzufügen
Mit der Nutzung der oben angegebenen Telefonnummer oder durch Klicken auf „Kontaktieren“ akzeptierst Du die Allgemeinen Nutzungsbedingungen, denen Du jederzeit widersprechen kannst. Weitere Informationen zum Datenschutz
Wie zufrieden bist du mit dieser Seite (nicht mit der Immobilie selbst)?