




Gewerbeobjekt zum Kauf • als Kapitalanlage geeignet599000 €288 €/m²8 Zimmer • 568 m² • 1.513 m² Grundstück
599000 €
288 €/m²
8 Zimmer • 568 m² • 1.513 m² Grundstück
Charmantes Bauernhaus mit großem Grundstück, langgezogenem Hof, 2 Wohnungen und einem Swimmingpool
Merkmale
- 1.513 m² Grundstück
- Balkon
- Terrasse
- Garten
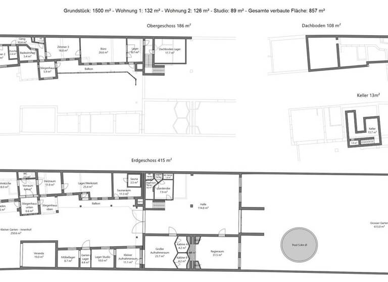
Grundrisse
Grundrisse
1 / 1
Realisiere Dein Projekt
Bausubstanz und Energie
Heizwärmebedarf (HWB)
E
Gesamtenergieeffizienz (fGEE)
D
- Baujahr1959
- Zustand der ImmobilieGepflegt
Preisdetails
Kaufpreis
599000 €
287,84 €/m²
Provision für Käufer
Bitte beachte, das Angebot kann bei Vertragsabschluss die Zahlung einer Provision beinhalten. Weitere Informationen erhältst Du vom Anbieter.
Lage

Franzensdorf 63, Groß-Enzersdorf (2301)
Weitere Informationen
Weitere Services
Lust auf eine Besichtigung?
Eine Frage zur Immobilie?
Über den Anbieter
Groß-Enzersdorfer Str. 52/1/01, 1220 WIEN

Frau Katharina KlasanDein Kontakt
Online-ID: 265J4IRVUMZC
Referenznummer: 26/12680


KLASAN & Partner Immobilien GmbH & Co KG
Wie zufrieden bist du mit dieser Seite (nicht mit der Immobilie selbst)?

