




Bürofläche zur Miete • provisionsfrei24 €/m²261 m² Bürofläche • teilbar ab 261 m²
24 €
/m²
261 m² Bürofläche • teilbar ab 261 m²
Attraktive Büroflächen im Frankfurter Westend
Merkmale
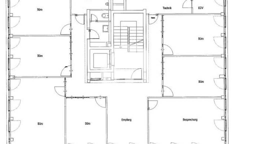
Grundrisse
Verschaffe dir einen genauen Überblick über die Raumaufteilung.

Realisiere Dein Projekt
Bausubstanz und Energie
Energieausweis
Endenergieverbrauch (Wärme)
Endenergieverbrauch (Strom)
- Baujahr1969
Mietkosten
Monatliche Miete
24 €/m²
Nebenkosten
4 €
Provision für Mieter
provisionsfrei
Kaution
keine Angabe
Lage

Westend-Süd, Frankfurt am Main (60325)
Der Anbieter hat die genaue Adresse nicht freigegeben
Weitere Informationen
Weitere Services
Lust auf eine Besichtigung?
Eine Frage zur Immobilie?
Über den Anbieter
Guiollettstraße 48, 60325 Frankfurt
Partnerschaft + Diamond Partner

Herr Ron KlotschDein Kontakt
Online-ID: 231XZXIK28MU
Referenznummer: 11538@13@41323
Wie zufrieden bist du mit dieser Seite (nicht mit der Immobilie selbst)?




