




Sonstiges zum Kauf • als Kapitalanlage geeignet9 Zimmer • 238 m² • 5.800,3 m² Grundstück
9 Zimmer • 238 m² • 5.800,3 m² Grundstück
Resthof mit Feldrandlage - werden Sie tätig
Merkmale
- Bezug: ab sofort
- 5.800,3 m² Grundstück
- Einbauküche
- Keller
- 2 Stellplätze
- Gäste-WC
- Garten
- Terrasse
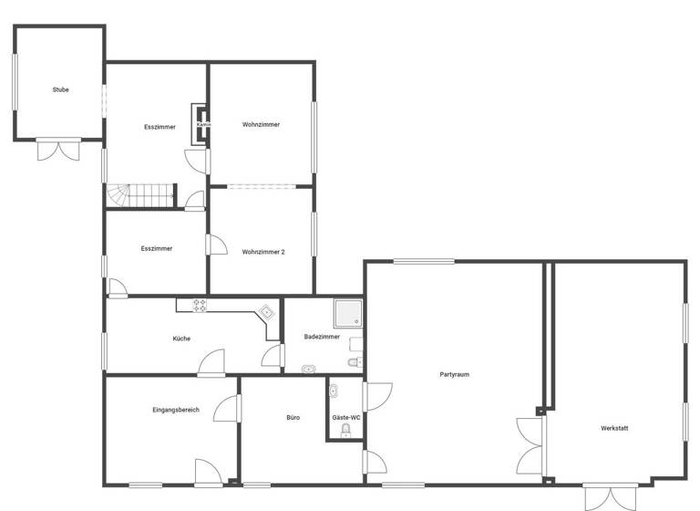
Grundrisse
Grundrisse
1 / 2
Virtueller Rundgang
3D tour

Realisiere Dein Projekt
Bausubstanz und Energie
Energieausweis
D
- Baujahr1929
- Zustand der Immobilierenovierungsbedürftig / sanierungsbedürftig
- HeizungsartZentralheizung
- EnergieträgerGas
Preisdetails
Provision für Käufer
Die Provision i.H.v. 2,98 % inkl. MwSt. ist mit Kaufvertragsbeurkundung fällig, sofern der Verkaufspreis über 83.000,00 € liegt.
Liegt der Verkaufspreis dagegen bei/unter 83. Weitere Informationen siehe Provisionshinweis.
Liegt der Verkaufspreis dagegen bei/unter 83. Weitere Informationen siehe Provisionshinweis.
Lage

Scholen (27251)
Der Anbieter hat die genaue Adresse nicht freigegeben
Weitere Informationen
Weitere Services
Lust auf eine Besichtigung?
Eine Frage zur Immobilie?
Über den Anbieter
Online-ID: 26AETIDEI821
Referenznummer: fbf7d0bded
Wie zufrieden bist du mit dieser Seite (nicht mit der Immobilie selbst)?




