Doppelhaushälfte mit großem Balkon in ruhiger Lage (Freiburg-Hochdorf)
Zum Kauf steht eine charmante Doppelhaushälfte in der lebenswerten Stadt Freiburg, die im Jahr 1978 erbaut wurde. Die Immobilie hebt sich durch eine großzügige Grundstücksgröße von 262 m² hervor und bietet mit einer Wohnfläche von 100 m², sowie einer zusätzlichen Nutzfläche von ebenfalls 100 m² vielfältige Entfaltungsmöglichkeiten.
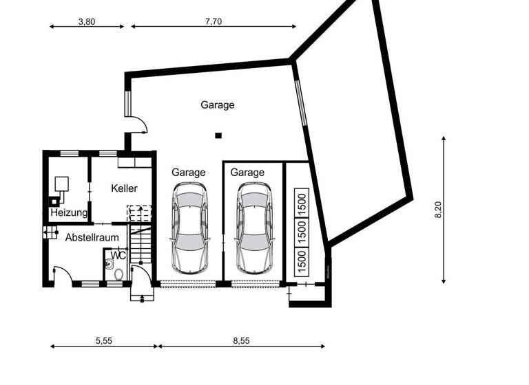
Im Erdgeschoss befinden sich zwei Garagen, ein Werkraum, ein Heizungsraum und ein Badezimmer. Der Wohnbereich ist im Obergeschoss angesiedelt. Hier finden Sie drei einladende Zimmer, darunter zwei gemütliche Schlafzimmer und ein gut ausgestattetes Badezimmer. Das einladende Wohnzimmer bietet direkten Zugang zur sonnigen Terrasse, die einen herrlichen Blick in den gepflegten Garten ermöglicht und ausreichend Platz, um Gäste zu empfangen. Zwei Balkone erweitern den Wohnraum im Freien und bieten zusätzliche Möglichkeiten zur Entspannung und Erholung.
Der Garten, inklusive einer gemütlichen Garten-Laube, kann bei Regen- und Sonnenstunden zur Entspannung dienen. Zusätzlich wird Ihnen Platz zum Pflanzen von Blumen oder Gemüse geboten, oder auch für Gartenmöbel.
Eine herausragende Eigenschaft dieser Immobilie ist das Ausbaupotential des Dachs, welches zusätzlichen Wohnraum für Ihre individuellen Bedürfnisse schaffen kann.
Durch die Kombination von urbaner Nähe und ruhiger Wohnlage bietet diese Doppelhaushälfte den perfekten Rückzugsort für Paare oder junge Familien, die das Leben in Freiburg in vollen Zügen genießen möchten.
Zögern Sie nicht, dieses einzigartige Angebot näher in Betracht zu ziehen. Vereinbaren Sie noch heute einen Besichtigungstermin und lassen Sie sich von der besonderen Atmosphäre dieser Immobilie begeistern.
Merkmale
262 m² Grundstück
Balkon
Terrasse
2 Stellplätze: 2 Garagen
Ausbaureserve im Dachgeschoss
Grundrisse
Grundrisse
1 / 2
Realisiere Dein Projekt
Bausubstanz und Energie
Möchtest du Details zum Energieverbrauch?
Baujahr1978
EnergieträgerGas
Preisdetails
Kaufpreis
550000 €550.000 €
5.500 €/m²
Provision für Käufer
3,57 % inkl. gesetzl. MwSt. (19%) inkl. MwSt.
Weitere Preisinformationen
2 Garagenstellplätze
Geschätzte Gesamtkosten
608.135 €1
Kaufpreis
550.000 €
Kaufnebenkosten
58.135 €
2
Notarkosten (1,5%)
8.250 €
Grunderwerbsteuer (5%)
27.500 €
Provision für Käufer (3,57%)
19.635 €
Grundbucheintrag (0,5%)
2.750 €
1Der angezeigte Wert ist eine automatisch berechnete Schätzung von immowelt.
2Bei den Angaben handelt es sich um ortsübliche Werte. Individuelle Kosten können abweichen.
Lage
Hochdorf, Freiburg (79108)
Der Anbieter hat die genaue Adresse nicht freigegeben
Dieses charmante Doppelhaushälfte befindet sich in einer der begehrtesten Wohngegenden von Freiburg, im grünen Stadtteil Hochdorf. Die Umgebung zeichnet sich durch eine harmonische Mischung aus städtischem Komfort und ländlichem Flair aus. Einrichtungen des täglichen Bedarfs, medizinische Einrichtungen, Einkaufsmöglichkeiten, Kitas sowie Schulen befinden sich in unmittelbarer Nähe und können zu Fuß innerhalb von 5 Minuten erreicht werden. Familien schätzen die freundliche Nachbarschaft sowie die gute Infrastruktur sehr.
Die idyllische Lage bietet zahlreiche Freizeitmöglichkeiten, darunter Spaziergänge und Radtouren in den nahegelegenen Naturgebieten. Öffentliche Verkehrsmittel sind bequem zu erreichen und ermöglichen schnelle Verbindungen ins Stadtzentrum von Freiburg und darüber hinaus. Familien schätzen die freundliche Nachbarschaft sowie die gute Infrastruktur mit Kitas und Schulen in unmittelbarer Nähe.
Die Wohngegend kombiniert auf perfekte Weise die Vorzüge des modernen Stadtlebens mit der Ruhe und Beschaulichkeit eines ländlichen Umfelds, wodurch sie zu einem idealen Ort für alle wird, die ein harmonisches und komfortables Zuhause suchen.
Weitere Informationen
Sonstiges
Kontaktieren Sie uns noch heute, um weitere Informationen zu erhalten oder einen Besichtigungstermin zu vereinbaren.
Kaufnebenkosten - 5% Grunderwerbssteuer - ca. 1,5 % Notarkosten/ Grundbuch - 3,57 % Käuferprovision (inkl. 19% MwSt.)
Stichworte
Garage vorhanden, Nutzfläche: 100,00 m², Anzahl der Schlafzimmer: 2, Anzahl der Badezimmer: 1, Anzahl der separaten WCs: 2, Anzahl Balkone: 1, Anzahl Terrassen: 1, Anzahl der Wohneinheiten: 1, Bundesland: Baden-Württemberg
Sonstiges/Wohnen: Dachboden