Version: 8.22.4Navigation überspringen
349.000 €
1 Zimmer  •  31,8 m²  •  2. Geschoss
Immowelt logo

Studio zum Kauf
349000 €
10.971 €/m²
1 Zimmer  •  31,8 m²  •  2. Geschoss

Lerchenfelderstraße 58: Stilvolle Stadtwohnung mit Balkon in bester Lage

Geschätzte InteressentInnen!

Sofern Sie eine Besichtigung wünschen, freuen wir uns über Ihre Kontaktaufnahme mit konkreten Terminvorschlägen zur vereinfachten Abstimmung.

Herzlichen Dank!

******************************

Zum Verkauf steht eine charmante und revitalisierte Wohnung in der Lerchenfelderstraße 58, 1080 Wien. Das um 1888 erbaute Haus wurde zwischen 2011 und 2014 von J. Brandstetter Bauträger saniert und modernisiert.

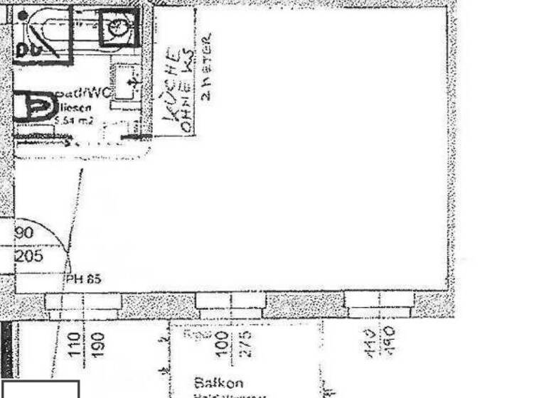
Die Wohnung (Top 3-05) befindet sich im 2. Liftstock und bietet eine Wohnfläche von ca. 31,81 m2. Sie verfügt über einen kombinierten Wohn- und Schlafbereich mit einer integrierten Küchenzeile, ein Badezimmer und ein separates WC. Ein Highlight der Wohnung ist der ca. 6,92 m2 große Balkon, der zum ruhigen Innenhof ausgerichtet ist und einen angenehmen Rückzugsort ins Grüne bietet. Zusätzlich gehört zur Wohnung ein Kellerabteil mit ca. 5,49 m2.

Ausstattung und Besonderheiten:

* Modernes Badezimmer mit Dusche und Waschmaschinenanschluss.
* Praktische Küchenzeile.
* Hohe Decken schaffen ein großzügiges Raumgefühl.
* Schlafbereich auf einer erhöhten Ebene.
* Blick in den begrünten Innenhof vom Balkon aus.

Lagebeschreibung und Infrastruktur:

Die Lerchenfelderstraße 58 befindet sich im 8. Wiener Gemeindebezirk, Josefstadt, an der Grenze zum 7. Bezirk, Neubau. Die Lage zeichnet sich durch eine hervorragende Infrastruktur und eine hohe Lebensqualität aus:

* Öffentliche Verkehrsmittel: Exzellente Anbindung durch die Straßenbahnlinien 2, 46 und die Buslinie 13A, die in unmittelbarer Nähe verkehren. Auch die U-Bahn-Station Thaliastraße (U6) und Volkstheater (U2/U3) sind gut erreichbar und gewährleisten eine schnelle Verbindung in alle Teile der Stadt.
* Nahversorgung: Zahlreiche Supermärkte, Bäckereien und diverse Geschäfte für den täglichen Bedarf befinden sich in Gehweite.
* Gastronomie und Kultur: Die Umgebung bietet eine vielfältige Auswahl an Restaurants, Cafés und Bars. Kulturelle Einrichtungen wie das Theater in der Josefstadt oder das Volkstheater sind ebenfalls schnell zu erreichen.
* Erholung: Diverse Parks und Grünflächen in der Nähe laden zu Spaziergängen und Erholung ein.

Diese Wohnung eignet sich ideal für Singles oder als stilvolles City-Apartment und bietet eine attraktive Kombination aus zentraler Lage und ruhigem Wohnen.

*************************************

Sollten Sie nach Durchsicht des Inserats eine Besichtigung wünschen, bitten wir um Anfrage über das Kontaktformular [http://www.sulek.immobilien/besichtigung] und Nennung ein paar konkreter Terminvorschläge.

*************************************

_FÜR DIE RICHTIGKEIT UND VOLLSTÄNDIGKEIT DER ANGABEN KANN KEINE GEWÄHR BZW. HAFTUNG ÜBERNOMMEN WERDEN. WEITERES WEISEN WIR AUF EIN WIRTSCHAFTLICHES UND/ODER FAMILIÄRES NAHEVERHÄLTNIS HIN. FESTGEHALTEN WIRD, DASS UNSER MAKLERUNTERNEHMEN GEM. §17 MAKLERG EINSEITIG NUR FÜR DEN VERMIETER TÄTIG WIRD, NICHT FÜR DEN MIETER!_

_BITTE BEACHTEN SIE, DASS UNSER UNTERNEHMEN KEINE REISEKOSTEN ÜBERNIMMT, DIE IM ZUSAMMENHANG MIT DER BESICHTIGUNG VON IMMOBILIEN ANFALLEN. ALLE ANFALLENDEN KOSTEN FÜR ANREISE, UNTERKUNFT UND VERPFLEGUNG MÜSSEN VON DEN INTERESSENTEN SELBST GETRAGEN WERDEN. DES WEITEREN ÜBERNEHMEN WIR KEINE HAFTUNG FÜR KOSTEN, DIE DURCH KURZFRISTIGE STORNIERUNGEN ODER ÄNDERUNGEN VON BESICHTIGUNGSTERMINEN ENTSTEHEN KÖNNEN. WIR DANKEN IHNEN FÜR IHR VERSTÄNDNIS._
 

************************************

Noch nichts gefunden? Wir informieren Sie über geeignete Immobilienangebote noch vor allen anderen.
Legen Sie jetzt Ihren individuellen Suchagenten unter folgendem Link an. Wir schicken Ihnen passende Immobilien exklusiv vorab zu.
Suchagent anlegen [https://sulek-immobilien.service.immo/registrieren/de] - https://sulek-immobilien.service.immo/registrieren/de

Der Vermittler ist als Doppelmakler tätig.

Infrastruktur / Entfernungen

Gesundheit
Arzt <500m
Apotheke <500m
Klinik <1.000m
Krankenhaus <1.500m

Kinder & Schulen
Schule <500m
Kindergarten <500m
Universität <500m
Höhere Schule <500m

Nahversorgung
Supermarkt <500m
Bäckerei <500m
Einkaufszentrum <1.000m

Sonstige
Geldautomat <500m
Bank <500m
Post <500m
Polizei <500m

Verkehr
Bus <500m
U-Bahn <1.000m
Straßenbahn <500m
Bahnhof <1.000m
Autobahnanschluss <4.000m

Angaben Entfernung Luftlinie / Quelle: OpenStreetMap

Merkmale

  • Bezug: sofort
  • 2. Geschoss
  • Einbauküche
  • Personenaufzug
  • Balkon
  • möbliert

Grundrisse

Grundrisse
1 / 1

Realisiere Dein Projekt

Bausubstanz und Energie

Heizwärmebedarf (HWB)

D

Gesamtenergieeffizienz (fGEE)

D
  • Baujahr1888
  • Zustand der ImmobilieAltbau (bis 1945), Gepflegt
Immowelt logo

Preisdetails

Kaufpreis
349000 €
10.971,39 €/m²
Provision für Käufer
12.564,00 € inkl. 20% USt.

Lage

address-icon
Wien,Josefstadt (1080)

Weitere Informationen

Stichworte Anzahl der Badezimmer: 1, Anzahl der separaten WCs: 1, Anzahl Balkone: 1, Balkon-Terrassen-Fläche: 6,92 m², Kellerfläche: 5,49 m², Bundesland: Wien, modernisiert: 2014

Weitere Services

Lust auf eine Besichtigung?
Eine Frage zur Immobilie?
Nachricht hinzufügen
Mit der Nutzung der oben angegebenen Telefonnummer oder durch Klicken auf „Kontaktieren“ akzeptierst Du die Allgemeinen Nutzungsbedingungen, denen Du jederzeit widersprechen kannst. Weitere Informationen zum Datenschutz

Über den Anbieter

Fasangasse 30/10, 1030 WIEN
partner badge
6 Jahre Partnerschaft
Herr Philipp SulekDein Kontakt
Online-ID: 2kur35g
Referenznummer: OBGC2025061813320426256c2eee6ca
Mittelsmann Philipp Sulek GmbH
Mittelsmann Philipp Sulek GmbH
Nachricht hinzufügen
Mit der Nutzung der oben angegebenen Telefonnummer oder durch Klicken auf „Kontaktieren“ akzeptierst Du die Allgemeinen Nutzungsbedingungen, denen Du jederzeit widersprechen kannst. Weitere Informationen zum Datenschutz
Wie zufrieden bist du mit dieser Seite (nicht mit der Immobilie selbst)?