CHARMANTE 1.5 ZIMMER WOHNUNG IN BEGEHRTER LAGE VON BERLIN-WILMERSDORF I PROVISIONSFREI
Diese charmante 1.5 Zimmer Wohnung befindet sich in einem klassischen Altbau in der begehrten Holsteinische Str 13, im Herzen von Berlin-Wilmersdorf. Die Wohnung besticht durch ihren typischen Altbaucharme, wie hohe Decken und große Holz-Doppelkastenfenster, die für viel Tageslicht sorgen.
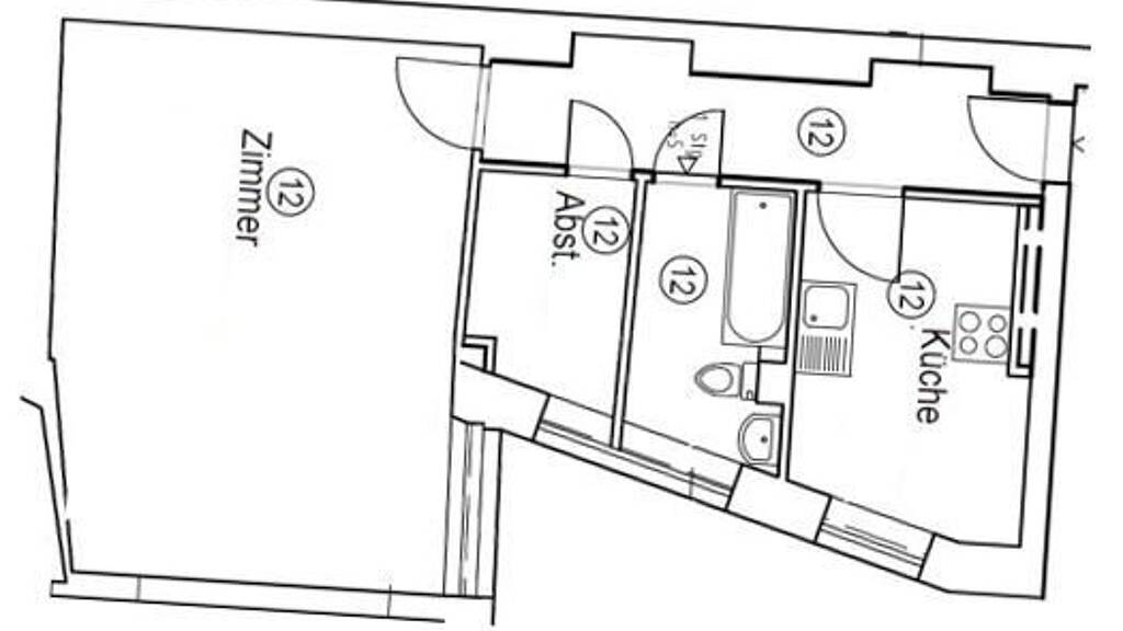
Auf ca. 51m² bietet diese Wohnung ein geräumiges Zimmer, ein separates halbes Zimmer, das ideal als Büro genutzt werden kann, sowie eine Küche und ein Badezimmer mit Badewanne. Die Wohnung befindet sich in einem renovierungsbedürftigen Zustand und bietet daher die ideale Gelegenheit, Ihren persönlichen Wohntraum zu verwirklichen.
Das Gebäude ist gepflegt und die Nachbarschaft zeichnet sich durch eine ruhige und dennoch zentrale Lage aus. In unmittelbarer Nähe finden sich zahlreiche Einkaufsmöglichkeiten, Cafés, Restaurants sowie gute Verkehrsanbindungen, die Ihnen eine schnelle Erreichbarkeit der Berliner Innenstadt ermöglichen.
Diese Wohnung ist Provisionsfrei!
Merkmale
Erdgeschoss
*Altbau mit hohen Decken *große Fenster mit viel Tageslicht *geräumiges Zimmer *separates halbes Zimmer (ideal als Büro) *Badezimmer mit Badewanne *Renovierungsbedarf *gute Verkehrsanbindung *ruhige und zentrale Lage *provisionsfrei
Grundrisse
Verschaffe dir einen genauen Überblick über die Raumaufteilung.
Realisiere Dein Projekt
Bausubstanz und Energie
Energieausweis
F
Baujahr1905
Zustand der ImmobilieGepflegt
HeizungsartEtagenheizung
EnergieträgerGas
Preisdetails
Kaufpreis
260000 €260.000 €
5.078,13 €/m²
Hausgeld
159.65 €159,65 €
Provision für Käufer
provisionsfrei
Geschätzte Gesamtkosten
280.800 €1
Kaufpreis
260.000 €
Kaufnebenkosten
20.800 €
2
Notarkosten (1,5%)
3.900 €
Grunderwerbsteuer (6%)
15.600 €
Grundbucheintrag (0,5%)
1.300 €
1Der angezeigte Wert ist eine automatisch berechnete Schätzung von immowelt.
2Bei den Angaben handelt es sich um ortsübliche Werte. Individuelle Kosten können abweichen.
Lage
Holsteinische Straße 13, Wilmersdorf, Berlin (10717)
Die Wohnung befindet sich in der Holsteinische Str 13, einer ruhigen und dennoch zentralen Lage im beliebten Berliner Stadtteil Wilmersdorf. Diese Gegend zeichnet sich durch ihre charmante Altbebauung und eine grüne Umgebung aus, die zu entspannten Spaziergängen einlädt.
In unmittelbarer Nähe finden sich zahlreiche Einkaufsmöglichkeiten, Cafés und Restaurants, die den täglichen Bedarf abdecken und kulinarische Vielfalt bieten. Die Anbindung an den öffentlichen Nahverkehr ist hervorragend: Der U-Bahnhof Blissestraße (U7) und verschiedene Buslinien sind fußläufig erreichbar und ermöglichen eine schnelle Verbindung in die Berliner Innenstadt sowie zu anderen wichtigen Stadtteilen.
Für Erholung im Grüner sorgen der nahegelegene Volkspark Wilmersdorf und der Fennsee, die sich ideal für Freizeitaktivitäten im Freien eignen. Schulen, Kitas und medizinische Einrichtungen sind ebenfalls in der Umgebung vorhanden, was die Lage besonders attraktiv für Singles und Paare macht, die sowohl die urbane Infrastruktur als auch die Ruhe schätzen.
Weitere Informationen
Sonstiges
Bei Erwerb der Immobilie fällt keine zusätzliche Provision für den Käufer an!
Dieses Angebot ist freibleibend, sämtliche Angaben dieses Angebots basieren auf Angaben des Eigentümers.
Eine Haftung für Richtigkeit und Vollständigkeit kann daher nicht übernommen werden.
Wir freuen uns von Ihnen zu hören und stehen für weitere Fragen und einen Besichtigungstermin selbstverständlich gern zur Verfügung!
Stichworte
Anzahl der Badezimmer: 1, Wohnungsnr.: 12