

Büro zum Kauf - Erstbezug5689,49 Euro pro Quadratmeter4 Zimmer • 95,2 m² Bürofläche
5689,49 Euro pro Quadratmeter
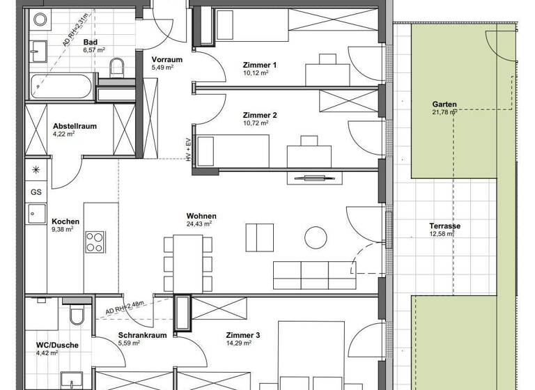
4 Zimmer • 95,2 m² Bürofläche
DAVID 59: Für Ihren Erfolg! erstklassige Büro- / Praxisräume mit Top Verkehrsanbindung und Gartenfläche
Merkmale
- Bezug: 3. Quartal 2027
- Erdgeschoss
- offene Küche
- Personenaufzug
- 10 Stellplätze: 10 Tiefgaragenstellplätze
- Gäste-WC
Grundrisse
Grundrisse
1 / 1
Bausubstanz und Energie
Heizwärmebedarf (HWB)
B
Gesamtenergieeffizienz (fGEE)
A
- Baujahr2026
- Zustand der ImmobilieMassivhaus, Erstbezug
- HeizungsartFußbodenheizung
- EnergieträgerFernwärme
Preisdetails
Kaufpreis
541810 €
5.689,49 €/m²
Preis pro Stellplatz
28000 €
Provision für Käufer
3 % zzgl. 20% USt. inkl. MwSt.
Weitere Preisinformationen
10 Tiefgaragenstellplätze, Kaufpreis je: 28.000,00 EUR
Lage

Wien (1100)
Der Anbieter hat die genaue Adresse nicht freigegeben
Weitere Informationen
Weitere Services
Lust auf eine Besichtigung?
Eine Frage zur Immobilie?
Über den Anbieter
Weyrgasse 8/3, 1030 WIEN
Partnerschaft
Herr Markus KappelDein Kontakt
Online-ID: 25DQN9B272EV
Referenznummer: Etage 0/Top 1 _08
Wie zufrieden bist du mit dieser Seite (nicht mit der Immobilie selbst)?


