Version: 8.22.4Navigation überspringen
842 €
5 Zimmer  •  106,3 m²
Immowelt logo

Doppelhaushälfte zur Miete - Erstbezug
842.31 €
Nettokaltmiete
5 Zimmer  •  106,3 m²

Miete mit Kaufoption: Helle, moderne Doppelhaushälfte im Erstbezug in familienfreundlicher Lage

Sie lieben das Besondere,.....

.... schätzen die Natur und möchten doch modern wohnen mit viel Platz für die Familie? Genau hier können Sie all Ihre Wohnträume verwirklichen!

In ruhiger Lage von Stoob, direkt am Ufer des Stoober Bachs, warten diese 16 Doppelhaushälften, die in massiver, energieeffizienter Bauweise errichtet wurden, auf ihre Bewohner.
Alle Einheiten verfügen über 5 Zimmer, Terrassen und Eigengärten. Bei der Konzeptionierung wurde auf optimale Nutzbarkeit geachtet, was sich in praktischen und großzügigen Grundrissen widerspiegelt. Wohnkomfort und Qualität stehen im Vordergrund.

Helle Wohnräume, wohnliche Eichenparkettböden, elegantes Feinsteinzeug, hochwertige Sanitäranlagen und elektrische Außenjalousien repräsentieren die qualitätvolle Ausstattung.

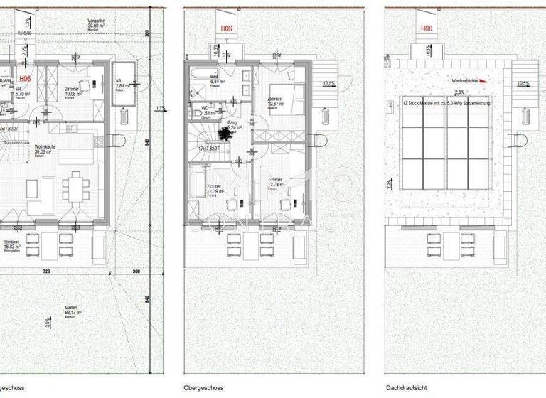
Das Erdgeschoß besteht aus einem großen Wohn-/Esszimmer mit integrierter Küche, Gäste-/Arbeitszimmer, Technikraum, Vorzimmer und WC. Die Küche ist nicht möbliert - so haben Sie die Möglichkeit, Ihre eigenen Einrichtungsideen umzusetzen.
Über eine offene Holztreppe gelangen Sie ins 1. Obergeschoß mit 3 großzügigen Schlafzimmern, geräumigem Bad mit Badewanne, Dusche, Doppelwaschbecken und Fenster, und einem separaten WC.

Geheizt wird mittels Luftwärmepumpe - eine Fußbodenheizung sorgt für Behaglichkeit, die zentrale Lüftungsanlage mit Wärmerückgewinnung garantiert frische Luft und ein gesundes Raumklima. Die Photovoltaikanlage sorgt für mehr Unabhängigkeit vom Stromanbieter und hält Ihre Energiekosten auf einem Niedrigstand.

Große Eigengärten laden zur Erholung vom Alltagsstress ein - eine Ruheoase für die ganze Familie!
Jeder Einheit sind 2 Pkw-Stellplätze zugeordnet - jeweils in einem Carport und einem Abstellplatz im Freien.

Haus 6
Dieses Haus hat eine Wohnfläche von 106,03 m2, der Garten ist 123,77 m2 groß und befindet sich in der hinteren Reihe der Anlage - familiär, gemütlich und mit Freiraum für die ganze Familie.

Es handelt sich hierbei um ein freifinanziertes Haus mit Kaufoption:
- Finanzierungsbeitrag € 51.455,30 - Miete € 926,54 (inkl. BK und Ust.)

Vereinbaren Sie noch heute einen unverbindlichen Besichtigungstermin. Ich freue mich, Ihnen dieses traumhafte Projekt näher bringen zu dürfen!

Frau Simone VASICEK 0676 / 841 420 605

Der Immobilienmakler erklärt, dass er - entgegen dem in der Immobilienwirtschaft üblichen Geschäftsgebrauch des Doppelmaklers - einseitig nur für den Vermieter tätig ist.

Infrastruktur / Entfernungen

Gesundheit
Arzt <4.000m
Apotheke <4.000m
Krankenhaus <3.500m

Kinder & Schulen
Schule <500m
Kindergarten <5.500m

Nahversorgung
Supermarkt <2.000m
Bäckerei <4.500m
Einkaufszentrum <2.000m

Sonstige
Bank <4.000m
Geldautomat <4.000m
Post <500m
Polizei <4.000m

Verkehr
Bus <500m
Bahnhof <500m
Autobahnanschluss <2.500m

Angaben Entfernung Luftlinie / Quelle: OpenStreetMap

Merkmale

  • Bezug: sofort
  • Gäste-WC
  • Badezimmer: Badewanne, Bad mit Dusche, Bad mit Fenster
  • Bodenbelag: Fliesen, Parkett

Grundrisse

Grundrisse
1 / 1

Realisiere Dein Projekt

Bausubstanz und Energie

Der Anbieter hat keine Informationen zum Energieverbrauch bereit gestellt.
  • Baujahr2025
  • Zustand der ImmobilieNeubau, Massivhaus, Erstbezug
  • HeizungsartFußbodenheizung
  • EnergieträgerLuft-/Wasser-Wärmepumpe
Immowelt logo

Mietkosten

Gesamtmiete
926,54 €
Nettokaltmiete zzgl. Betriebskosten
7,92 €/m²
842,31 €
Kaution
keine Angabe
Weitere Preisinformationen
Nettokaltmiete: 842,31 EUR

Lage

address-icon
Stoob (7344)
Die Marktgemeinde Stoob liegt im Bezirk Oberpullendorf, mitten im reizvollen Mittelburgenland. Die Umgebung ist ruhig, grün und ideal für Menschen, die naturnah wohnen, aber dennoch eine gute Grundversorgung erreichen möchten.

Weitere Informationen

Stichworte Süd-West-Balkon/Terrasse, Anzahl der Badezimmer: 1, Anzahl der separaten WCs: 2, Balkon-Terrassen-Fläche: 16,82 m², Gartenfläche: 123,77 m², Bundesland: Burgenland

Weitere Services

Lust auf eine Besichtigung?
Eine Frage zur Immobilie?
Nachricht hinzufügen
Mit der Nutzung der oben angegebenen Telefonnummer oder durch Klicken auf „Kontaktieren“ akzeptierst Du die Allgemeinen Nutzungsbedingungen, denen Du jederzeit widersprechen kannst. Weitere Informationen zum Datenschutz

Über den Anbieter

Schnirchgasse 17, 1030 WIEN
Frau Simone VasicekDein Kontakt
Online-ID: 2n4hl5b
Referenznummer: OBGC20260112204756124ad354f9dae
IMMOcontract Immobilien Vermittlung GmbH
IMMOcontract Immobilien Vermittlung GmbH
Bewertung: 3,5 von 5 Sternen
Nachricht hinzufügen
Mit der Nutzung der oben angegebenen Telefonnummer oder durch Klicken auf „Kontaktieren“ akzeptierst Du die Allgemeinen Nutzungsbedingungen, denen Du jederzeit widersprechen kannst. Weitere Informationen zum Datenschutz
Wie zufrieden bist du mit dieser Seite (nicht mit der Immobilie selbst)?