*Neubau* Traumhafte Maisonette Wohnung auf zwei Ebenen mit gehobener Ausstattung
Objektbeschreibung Diese großzügige Neubau-Maisonette-Wohnung mit ca. 143 m² Wohnfläche bietet modernes Wohnen auf zwei Ebenen und überzeugt durch eine durchdachte Raumaufteilung sowie helle, offene Wohnbereiche. Sie eignet sich ideal für Paare oder Familien, die Wert auf Platz, Komfort und ein angenehmes Wohnumfeld legen. Die Wohnung befindet sich in einer kleinen, gepflegten Wohnanlage mit nur vier Einheiten, was ein ruhiges und überschaubares Wohnumfeld garantiert. Der offene Wohn- und Essbereich bildet das Herzstück der Wohnung und wird durch große Fensterflächen mit viel Tageslicht versorgt. Die klare Architektur und die ruhige Gestaltung schaffen eine freundliche und einladende Wohnatmosphäre. Der Neubau überzeugt durch eine moderne, solide Bauweise. Bezugsfertig zum 01.04.26 Ein besonderer Vorteil: Das nachhaltige Energiekonzept mit Wärmepumpe und Photovoltaikanlage ermöglicht nahezu autarkes Wohnen. Dadurch sehr geringe kosten. Weitere Details erläutern wir gerne im persönlichen Gespräch.
Highlights der Immobilie: Großzügige Maisonette-Wohnung auf zwei Ebenen. Hochwertige, moderne Einbauküche, vollständig ausgestattet mit Miele und Siemens Geräten. Eigene Garage inklusive. Ruhige Wohnlage in gepflegtem Umfeld. Exklusive Materialien und hochwertige Böden. Großzügige Fensterflächen für optimale Lichtverhältnisse. Stilvolles Badezimmer mit Premium-Sanitäranlagen. Offener Wohn- und Essbereich mit bodentiefen Fenstern und idealem Grundriss. Attraktiver Außenbereich in Form einer überdachten Terrasse.
Merkmale
Terrasse
Garage
Die Wohnung verfügt über eine moderne und funktionale Ausstattung, die auf Komfort und Alltagstauglichkeit ausgelegt ist: .Großzügiger Wohn- und Essbereich mit offener Gestaltung .Moderne Einbauküche mit Miele und Siemens Geräten .Mehrere Schlafzimmer mit flexiblen Nutzungsmöglichkeiten .Zwei modern ausgestattete Bäder .Fußbodenheizung in allen Wohnräumen .Parkettboden in den Wohn- und Schlafbereichen .Holz-Aluminium-Fenster .Überdachte Terrasse / Außenbereich .Garage sowie zusätzlicher Stellplatz .Wärmepumpe und Photovoltaikanlage
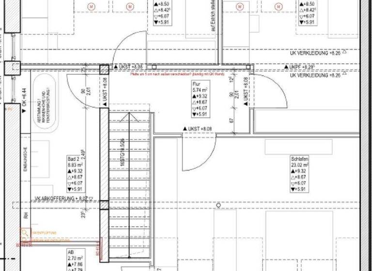
Grundrisse
Grundrisse
1 / 2
Realisiere Dein Projekt
Bausubstanz und Energie
Energieausweis
A+
Baujahr2026
Zustand der ImmobilieErstbezug
HeizungsartFußbodenheizung
EnergieträgerLuft-/Wasser-Wärmepumpe
Preisdetails
Kaufpreis
965000 €965.000 €
6.748,25 €/m²
Hausgeld
200 €200 €
Provision für Käufer
2,38 % incl. 19 % MwSt.
Weitere Preisinformationen
1 Garagenstellplatz
Geschätzte Gesamtkosten
1.041.042 €1
Kaufpreis
965.000 €
Kaufnebenkosten
76.042 €
2
Notarkosten (1,5%)
14.475 €
Grunderwerbsteuer (3,5%)
33.775 €
Provision für Käufer (2,38%)
22.967 €
Grundbucheintrag (0,5%)
4.825 €
1Der angezeigte Wert ist eine automatisch berechnete Schätzung von immowelt.
2Bei den Angaben handelt es sich um ortsübliche Werte. Individuelle Kosten können abweichen.
Lage
Nagelstraße 5, Pfaffenhofen a d Ilm, Pfaffenhofen (85276)
Die Wohnung liegt in einer ruhigen und gewachsenen Wohngegend von Pfaffenhofen an der Ilm. Einkaufsmöglichkeiten, Schulen, Kindergärten sowie Ärzte und weitere Einrichtungen des täglichen Bedarfs sind gut erreichbar. Durch die gute Anbindung an den öffentlichen Nahverkehr sowie an das regionale Straßennetz sind sowohl das Stadtzentrum als auch umliegende Orte bequem er-reichbar. Die Umgebung verbindet ruhiges Wohnen mit einer gut ausgebauten Infra-struktur und vielfältigen Freizeitmöglichkeiten.
Weitere Informationen
Sonstiges
Vom Käufer sind nach Abschluss eines notariellen Kaufvertrages aufgrund unserer Vermittlungs- oder Nachweistätigkeit 2,38 % inkl. 19% Mehrwertsteuer Maklercourtage, errechnet aus dem tatsächlichen Kaufpreis, zur Zahlung fällig.
Alle Angaben über dieses Objekt beruhen auf Informationen des Verkäufers. Eine Haftung für deren Richtigkeit und Vollständigkeit können wir nicht übernehmen. Hinweis: Mit diesem Exposé werden ausschließlich Angaben und Unterlagen der Eigentümer bzw. eines Dritten weitergegeben.
Stichworte
Gesamtfläche: 143,00 m², Anzahl der Schlafzimmer: 3, Anzahl der Badezimmer: 2, Anzahl Terrassen: 1