Version: 8.25.1Navigation überspringen
189.000 €
4 Zimmer  •  85 m²  •  4. Geschoss
Immowelt logo

Wohnung zum Kauf
189000 €
2.224 €/m²
4 Zimmer  •  85 m²  •  4. Geschoss

Attraktive Altbauwohnung mit Balkon + Dachgeschossrohling zur Erweiterung - ab Sommer frei!

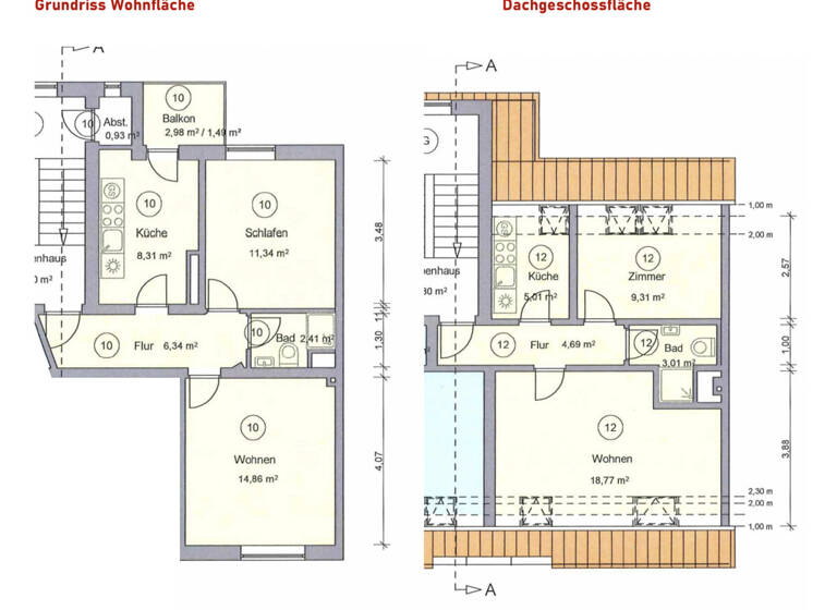
Diese gut geschnittene 2-Zimmer-Wohnung befindet sich in einem gepflegten MFH aus dem Baujahr 1920 mit insgesamt 12 Wohneinheiten. Das Gebäude überzeugt durch seinen klassischen Altbaucharme sowie sehr gepflegten Zustand. Beheizt wird das Haus über Fernwärme.

Die Wohnung verfügt über eine Wohnfläche von ca. 44,75 m² und bietet eine praktische sowie gut nutzbare Raumaufteilung. Sie befindet sich in einem sehr gepflegten Zustand und vermittelt eine angenehme Wohnatmosphäre.

Aktuell ist die Wohnung noch vermietet und erzielt eine monatliche Kaltmiete von 415,00 €. Die Wohnung wird zum Sommer frei, wodurch sich für den zukünftigen Eigentümer flexible Nutzungsmöglichkeiten ergeben - sowohl zur Eigennutzung als auch zur Neuvermietung.

Zur Wohnung gehört außerdem ein praktischer Abstellraum auf halber Etage, der derzeit als Waschplatz für die Waschmaschine genutzt wird und zusätzlichen Stauraum sowie eine komfortable Nutzungsmöglichkeit bietet.

Ein besonderes Merkmal dieses Angebots ist die direkt darüberliegende Dachgeschossfläche, die Bestandteil des Verkaufs ist und gemeinsam mit der Wohnung veräußert wird. Ein separater Erwerb der Fläche ist somit nicht
vorgesehen.

Die Dachgeschossfläche verfügt über ca. 40,79 m² und wurde in der Vergangenheit bereits ausgebaut, ist jedoch offiziell nicht als Wohnfläche genehmigt. Dadurch eröffnet sich für Käufer - vorbehaltlich einer möglichen behördlichen Genehmigung - perspektivisch die Möglichkeit, zusätzlichen Wohnraum zu schaffen.

Bei einer möglichen Verbindung der Wohnung mit der darüberliegenden Fläche könnte eine attraktive Maisonette-Wohnung entstehen. Diese Entwicklungsperspektive bietet viel Gestaltungsspielraum und macht das Objekt besonders interessant für Käufer, die langfristig zusätzlichen Wohnraum schaffen möchten - in direkter Nähe zur Kieler Innenstadt.

Das Hausgeld für beide Flächen zusammen beträgt monatlich 418 € (248,00 € für die Wohnung sowie 170,00 € für die Dachgeschossfläche) inkl. Heizung.

Merkmale

  • 4. Geschoss
  • Keller
  • Balkon

Grundrisse

Grundrisse
1 / 1

Realisiere Dein Projekt

Bausubstanz und Energie

Energieausweis

D
  • Baujahr1920
  • Zustand der ImmobilieGepflegt
  • EnergieträgerFernwärme
Immowelt logo

Preisdetails

Kaufpreis
189000 €
2.223,53 €/m²
Hausgeld
418 €
Provision für Käufer
3,57% inkl. MwSt.
Geschätzte Gesamtkosten
211.812 €1
Kaufpreis
189.000 €
Notarkosten (1,5%)
2.835 €
Grunderwerbsteuer (6,5%)
12.285 €
Provision für Käufer (3,57%)
6.747 €
Grundbucheintrag (0,5%)
945 €
1Der angezeigte Wert ist eine automatisch berechnete Schätzung von immowelt.
2Bei den Angaben handelt es sich um ortsübliche Werte. Individuelle Kosten können abweichen.

Lage

address-icon
SüdfriedhofKiel (24114)
Der Anbieter hat die genaue Adresse nicht freigegeben
Als Landeshauptstadt Schleswig-Holsteins überzeugt Kiel mit rund 250.000 Einwohnern durch seine Bedeutung als Universitäts-, Wirtschafts- und Hafenstadt. Die Nähe zur Kieler Förde, der Hafen als Marinestützpunkt und Kreuzfahrtstandort sowie das maritime Stadtbild machen Kiel zu einem attraktiven Wohn- und Arbeitsort.

Die Immobilie liegt im begehrten Stadtteil Südfriedhof, einem ruhigen, grünen Wohnquartier mit hoher Lebensqualität. Die Straßen sind von gepflegten Wohnhäusern, Baumreihen und nahegelegenen Grünflächen geprägt, die ein entspanntes Wohnumfeld schaffen.

Die Lage überzeugt durch kurze Wege zu zentralen Zielen: Der Kieler Hauptbahnhof ist etwa 15 Minuten zu Fuß erreichbar, die beliebte Holtenauer Straße - eine der lebendigsten Einkaufs- und Flaniermeilen Kiels - in nur 10 Minuten mit dem Fahrrad. Die Christian-Albrechts-Universität zu Kiel liegt ebenfalls in gut 15 Minuten mit dem Rad und ist damit sehr komfortabel für Studierende und Universitätsangehörige erreichbar.

Die Nahversorgung ist hervorragend: Supermärkte wie Rewe, Lidl und weitere Einkaufsmöglichkeiten sind fußläufig erreichbar, ebenso wie Bäckereien, Apotheken, Banken und andere Dienstleister. Ergänzt wird die hohe Lebensqualität durch nahegelegene Parks, Grünflächen und Freizeitmöglichkeiten, die Erholung direkt vor der Haustür bieten.

Die Anbindung an den öffentlichen Personennahverkehr ist gut: Mehrere Buslinien sorgen für schnelle Verbindungen in die Innenstadt, zum Hauptbahnhof und in andere Stadtteile. Auch für Autofahrer sind wichtige Verkehrsachsen zügig erreichbar, wodurch das Stadtgebiet, das Umland und die Ostsee bequem angebunden sind.

Der Stadtfeldkamp im Südfriedhof verbindet somit ruhiges, grünes Wohnen mit exzellenter Infrastruktur, kurzen Wegen zu Universität, Bahnhof, Holtenauer Straße sowie hervorragender Nahversorgung - ein idealer Standort für Familien, Berufstätige, Studierende und Kapitalanleger.

Weitere Informationen

Stichworte Energieversorgung mit alternativen Energien, Anzahl der Schlafzimmer: 2, Anzahl der Badezimmer: 2, Anzahl Balkone: 1, 5 Etagen

Weitere Services

Lust auf eine Besichtigung?
Eine Frage zur Immobilie?
Nachricht hinzufügen
Mit der Nutzung der oben angegebenen Telefonnummer oder durch Klicken auf „Kontaktieren“ akzeptierst Du die Allgemeinen Nutzungsbedingungen, denen Du jederzeit widersprechen kannst. Weitere Informationen zum Datenschutz

Über den Anbieter

Theodorstraße 31, 22761 Hamburg
Herr Louis HeitschDein Kontakt
Online-ID: 261FRK5QVV3W
Referenznummer: 26-LH-0522
Heitsch & CIE. Management eG
Heitsch & CIE. Management eG
Nachricht hinzufügen
Mit der Nutzung der oben angegebenen Telefonnummer oder durch Klicken auf „Kontaktieren“ akzeptierst Du die Allgemeinen Nutzungsbedingungen, denen Du jederzeit widersprechen kannst. Weitere Informationen zum Datenschutz
Wie zufrieden bist du mit dieser Seite (nicht mit der Immobilie selbst)?