Version: 8.24.0Navigation überspringen
599.000 €
5 Zimmer  •  142,4 m²  •  516 m² Grundstück
Immowelt logo

Einfamilienhaus zum Kauf • provisionsfrei
599000 €
4.206 €/m²
5 Zimmer  •  142,4 m²  •  516 m² Grundstück

Die erste Frühlingssonne im eigenen Garten genießen.

Der Anbieter hat keine weitere Beschreibung hinterlegt. Brauchst du weitere Informationen?

Merkmale

  • Bezug: Frühjahr 2026
  • 516 m² Grundstück
Der Grundriss kann noch nach Ihren individuellen Wünschen angepasst werden, das Haus kann auch kleiner und dadurch auch günstiger gebaut werden.

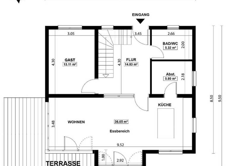
Durch die Hauseingangstür gelangen Sie in den großzügigen Eingangsbereich. Hinter der zweiflügeligen Tür erwartet Sie der offene, helle Wohn-/Essbereich mit knapp 40 m². Ob die Küche durch eine Wand separiert werden soll, können Sie selbst entscheiden. Die gewaltige Terrasse verspricht durch Südausrichtung den ganzen Tag über viel Sonne. Ein Technikraum mit Anschlüssen für Waschmaschine und Trockner, bietet auch als Abstellraum viel Staufläche für Haushaltsgeräte, Nahrungsmittel und weiteres. Das Gäste-WC rundet das durch die vielen bodentiefen Fenster lichtdurchflutete Erdgeschoss ab.

Im Obergeschoss sind alle Räume vom Flur aus begehbar, es gibt keine Durchgangszimmer. Das Schlafzimmer der Eltern bietet Platz für einen großen Kleiderschrank. Die, in etwa gleich großen, Kinderzimmer sind ebenso praktisch geschnitten, sodass einfach möbliert werden kann. Das exklusive Tageslichtbad wird mit Badewanne, bodentiefer Dusche, Toilette und Waschbecken ausgestattet. Ein Abstellraum ist zusätzlich vorhanden.

Der Spitzboden kann als zusätzliche Abstellfläche genutzt werden. Durch eine Bodeneinschubtreppe ist dieser begehbar.

Das Haus wird in KfW40-Standard erstellt und durch eine moderne Luft-Wärme-Pumpe mit Wärme versorgt. Kunststofffenster mit Dreifachverglasung sorgen für geringe Heizkosten. Die Fenster werden mit elektrisch gesteuerten Rollläden versehen.
Eine Garage für 19.800 und/oder ein Carport für 12.000,- und/oder einStellplatz für 6.000,- EUR miterworben werden.

Grundrisse

Grundrisse
1 / 4

Realisiere Dein Projekt

Bausubstanz und Energie

Der Anbieter hat keine Informationen zum Energieverbrauch bereit gestellt.
  • Baujahr2026
Immowelt logo

Preisdetails

Kaufpreis
599000 €
4.205,57 €/m²
Provision für Käufer
provisionsfrei; Ohne zusätzliche Maklerprovision für den Käufer.
Geschätzte Gesamtkosten
631.945 €1
Kaufpreis
599.000 €
Notarkosten (1,5%)
8.985 €
Grunderwerbsteuer (3,5%)
20.965 €
Grundbucheintrag (0,5%)
2.995 €
1Der angezeigte Wert ist eine automatisch berechnete Schätzung von immowelt.
2Bei den Angaben handelt es sich um ortsübliche Werte. Individuelle Kosten können abweichen.

Lage

address-icon
Simmelsdorf (91245)
Der Anbieter hat die genaue Adresse nicht freigegeben
Simmelsdorf ist ein ruhig gelegenes Wohngebiet, welches von wunderschöner Natur umgeben ist. Der Schnaittach und der Gundelbach umfließen das schnuckelige Dorf. Die Geschäfte für den täglichen Bedarf wie Edeka, Netto und Lidl befinden sich im nahegelegenen Ort Schnaittach. Kindergärten und eine Grundschule liegen sich direkt in Simmelsdorf, weiterführende Schulen sind in den Nachbarorten anzutreffen. Die ca. 3km entfernte Autobahn A9 gewährleistet mit dem Auto eine schnelle Anbindung (ca. 20 Minuten) zur Metropole Nürnberg oder in die entgegengesetzte Richtung nach Pegnitz.

Weitere Services

Lust auf eine Besichtigung?
Eine Frage zur Immobilie?
Nachricht hinzufügen
Mit der Nutzung der oben angegebenen Telefonnummer oder durch Klicken auf „Kontaktieren“ akzeptierst Du die Allgemeinen Nutzungsbedingungen, denen Du jederzeit widersprechen kannst. Weitere Informationen zum Datenschutz

Über den Anbieter

Entensteig 11, 90768 Fürth
partner badge
Partnerschaft
Frau Gisela MunkDein Kontakt
Online-ID: 2l78p5e
Referenznummer: 5730
Peter Munk Immobilien inh. Gisela Munk
Peter Munk Immobilien inh. Gisela Munk
Nachricht hinzufügen
Mit der Nutzung der oben angegebenen Telefonnummer oder durch Klicken auf „Kontaktieren“ akzeptierst Du die Allgemeinen Nutzungsbedingungen, denen Du jederzeit widersprechen kannst. Weitere Informationen zum Datenschutz
Wie zufrieden bist du mit dieser Seite (nicht mit der Immobilie selbst)?