Dieses moderne, nach Süden ausgerichtete Apartment mit 2 Schlafzimmern und 2 Bädern befindet sich in Villamartin Gardens an Orihuela Costa und bietet ein sorgenfreies Wohnen in einer idealen Umgebung. Die Wohnung wurde 2017 erbaut und befindet sich im zweiten Stock des Hauses, das mit dem Aufzug transportiert wird. Darüber hinaus gibt es eine große verglaste Südterrasse von etwa 20 m2 mit Blick auf den Pool und den Garten der Wohnanlage. Die Wohnung hat eine Luftwärmepumpe zum Kühlen und Heizen, Fußbodenheizung im Badezimmer, Tiefgaragenstellplatz, Abstellraum und gebrauchsfertige Möbel. Der Komplex eignet sich gut für Ihre eigene Nutzung, Winterresidenz und Investition. Die öffentlichen Bereiche der Wohnungsgesellschaft erhöhen deutlich den Wohnkomfort: Es gibt einen beheizten Innenpool, zwei Außenpools, einen Whirlpool, ein Fitnessstudio im Freien, einen Kinderspielplatz und fertige Gartenbereiche. Die Gated Company bringt auch zusätzliche Sicherheit und Ruhe in den Alltag.
Merkmale
möbliert
2. Geschoss
Bad mit Dusche
Bodenbelag: Fliesen
Balkon
Swimmingpool
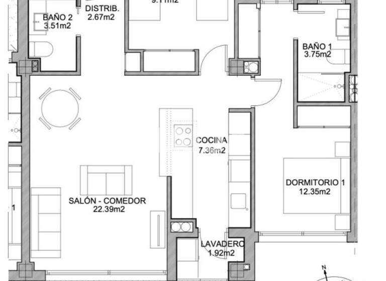
Grundrisse
Grundrisse
1 / 1
Realisiere Dein Projekt
Bausubstanz und Energie
Möchtest du Details zum Energieverbrauch?
Baujahr2017
Preisdetails
Kaufpreis
245000 €245.000 €
3.888,89 €/m²
Provision für Käufer
Bitte beachte, das Angebot beinhaltet bei Vertragsabschluss die Zahlung einer Provision. Weitere Informationen erhältst Du vom Anbieter.
Lage
Calle Comino, 3-1, Orihuela Costa (03189)
Weitere Informationen
Stichworte
Gesamtfläche: 83,00 m², Anzahl der Schlafzimmer: 2, Anzahl der Badezimmer: 2, Anzahl Balkone: 1, Flurstück: Villamartin, Bundesland: Alacant/Alicante, 4 Etagen, Distanz zum Flughafen: 53, Distanz zur nächsten Einkaufsmöglichkeit: 0.5, Distanz zur nächsten Gaststätte: 0.5, Distanz zur nächsten Einkaufsmöglichkeit: 2.8, Distanz zum Strand: 3.5